EasyEDA — дизайн электронной цепи, моделирование цепи и PCB дизайн:
Вероятно, вам придется перечислить и наклеить эти ярлыки в сторону с соответствующим окружением на компоненте. Соединение элементов электрической схемы.
Rapid Symbol Creation: Draw generic rectangular symbols for IC or system-level wiring diagrams with just a few clicks. Программа для черчения и анализа схем Micro-Cap платная, в оригинале — англоязычная, но есть и русифицированная версия. Скачать и получить более подробную информацию с обучающей книгой вы можете на нашем сайте.
Это устройство, основанное на вспышке, с некоторой схемой выборки и учебным пособием.
Таким образом, путем последовательных перемещений необходимых элементов, и соединяя их между собой, создается электрическая схема. Язык русский, разобраться в ней можно быстро, но чтобы понять все функции придется потратить не одну неделю. Имеется возможность импорта файлов из популярных САПР. И еще один положительный момент: есть много видео-уроков работы с Компас-Электрик, так что освоить ее будет несложно.
Благодаря доступу к приложениям в облаке мы получаем удобство, мобильность и совместимость между устройствами. Веб-ссылка содержит файл изображения схемы внутри веб-страницы и доступна для просмотра в стандартном веб-браузере. Пользователю потребуется только добавить компоненты, связать их и отправить плату в печать, предварительно настроив ее. Разрабатывалась она в России, потому полностью на русском.
В то же время в спецификации появляются параметры название, номер, номинал выбранного элемента. Что приятно, что можно легко менять масштаб — прокруткой колеса мышки.
Он работает на наших серверах в любом интернет-браузере. В этом окне можно менять любые атрибуты элемента схемы. У данного продукта также есть полностью русифицированная версия, причем с хорошим уровнем перевода. Все они чем-то похожи, но и имеют свои уникальные функции, благодаря которым и становятся популярными у широкого круга пользователей. Когда вы убедитесь функцию цепи хорошо, вы будете создавать печатную плату с тем же программным обеспечением.
Платные, на которые стоит потратиться
Если вам придется часто работать с программой для рисования схем, стоит рассмотреть некоторые платные версии. Чем они лучше? У них более широкий функционал, иногда более обширные библиотеки и более продуманный интерфейс.
Простая и удобная sPlan
Если вам не очень хочется разбираться с тонкостями работы с многоуровневыми программм, присмотритесь к пролукту sPlan. Он имеет очень простое и понятное устройство, так что через час-полтора работы вы будете уже свободно ориентироваться.
Статья по теме: Штора на одну сторону для кухни и спальни — идеальное решение
Как обычно в таких программах, необходима библиотека элементов, после первого пуска их надо подгрузить перед началом работы. В дальнейшем, если не будете переносить библиотеку в другое место, настройка не нужна — старый путь к ней используется по умолчанию.

Программа для рисования схем sPlan и ее библиотека
Если вам необходим элемент, которого нет в списке, его можно нарисовать, затем добавить в библиотеку. Также есть возможность вставлять посторонние изображения и сохранять их, при необходимости, в библиотеке.
Из других полезных и нужных функций — автонумерация, возможность изменения масштаба элемента при помощи вращения колесика мышки, линейки для более понятного масштабирования. В общем, приятная и полезная вещь.
Micro-Cap
Эта программа кроме построения схемы любого типа (аналогового, цифрового или смешанного) позволяет еще и проанализировать ее работу. Задаются исходные параметры и получаете выходные данные. То есть, можно моделировать работу схемы при различных условиях. Очень полезная возможность, потому, наверное, ее очень любят преподаватели, да и студенты.
В программе Micro-Cap есть встроенные библиотеки, которые можно пополнять при помощи специальной функции. При рисовании электрической схемы продукт в автоматическом режиме разрабатывает уравнения цепи, также проводит расчет в зависимости от проставленных номиналов. При изменении номинала, изменение выходных параметров происходит тут же.

Программа для черчения схем электроснабжения и не только — больше для симуляции их работы
Номиналы элементов могут быть постоянными или переменными, зависящими от различных факторов — температуры, времени, частоты, состояния некоторых элементов схемы и т.д. Все эти варианты просчитываются, результаты выдаются в удобном виде. Если есть в схеме детали, которые изменяют вид или состояние — светодиоды, реле — при симуляции работы, изменяют свои параметры и внешний вид благодаря анимации.
Программа для черчения и анализа схем Micro-Cap платная, в оригинале — англоязычная, но есть и русифицированная версия. Стоимость ее в профессиональном варианте — больше тысячи долларов. Хороша новость в том, что есть и бесплатная версия, как водится с урезанными возможностями (меньшая библиотека, не более 50 элементов в схеме, сниженная скорость работы). Для домашнего пользования вполне подойдет и такой вариант. Приятно еще что она нормально работает с любой системой Windows от Vista и 7 и выше.
Составлять электрические схемы в Visio несложно
Данный продукт позволяет начертить схему в масштабе, что удобно для расчета количества необходимых проводов. Большая библиотека трафаретов с условными обозначениями, различных составляющих схемы, делает работу похожей на сборку конструктора: необходимо найти нужный элемент и поставить его на место. Так как к работе в программах данного типа многие привыкли, сложности поиск не представляет.
К положительным моментам можно отнести наличие приличного количества уроков по работе с этой программой для рисования схем, причем на русском языке.
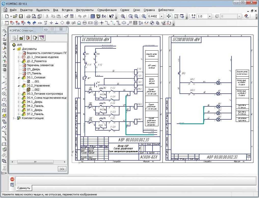
Компас Электрик
Еще одна программа для рисования схем на компьютере — Компас Электрик. Это уже более серьезный продукт, который используют профессионалы. Имеется широкий функционал, позволяющий рисовать различные планы, блок-схемы, другие подобные рисунки. При переносе схемы в программу параллельно формируется спецификация и монтажная схема и све они выдаются на печать.
Для начала работы необходимо подгрузить библиотеку с элементами системы. При выборе схематичного изображения того или иного элемента будет «выскакивать» окно, в котором будет список подходящих деталей, взятый из библиотеки. Из данного списка выбирают подходящий элемент, после чего его схематичное изображение появляется в указанном месте схемы. В то же время автоматически проставляется соответствующее ГОСТу обозначение со сквозной нумерацией (цифры программа меняет сама). В то же время в спецификации появляются параметры (название, номер, номинал) выбранного элемента.

1-2-3 Схема
Конечно, о «1-2-3 Схеме» нельзя в полной мере сказать, что это программа для черчения электрических схем, потому что, как минимум, чертить их вы и не будете, а как максимум, их даже редактировать нельзя. В чем же тогда особенность этой программы? «1-2-3 Схема» используется для определения подходящего корпуса электрощита в соответствии с компонентами, что в нем будут находиться. Вам необходимо всего лишь указать все параметры цепи, а программа самостоятельно подберет остальные элементы за вас. На финальном этапе вам остается лишь выбрать крышку.

К сожалению, поддержка программы разработчиком уже давно завершилась, но багов и неисправностей в работе программы выявлено не было, поэтому смело можете качать приложение «1-2-3 Схема» на свои компьютеры.
Платные ПО
Бесплатные программки для составления электросхем своими силами мы рассмотрели. Однако Вы сами понимаете, что в платных версиях предоставлен более широкий набор возможностей и удобных дополнений, которые позволят начертить эл схему на компьютере. Существует множество популярных платных программ для черчения электрических схем. Некоторые из них мы предоставили выше, однако существует еще одна программка, о которой стоит немного рассказать — sPlan. Это один из самых простейших в использовании и к тому же многофункциональных программных пакетов для составления схем разводки электропроводки и трассировки электронных плат. Интерфейс удобный, на русском языке. В базе данных заложены все самые популярные графические элементы для черчения электросхем.
Если Вам не жалко потратить 40$ за лицензию, мы настоятельно рекомендуем выбрать для черчения именно sPlan. Данное ПО без сомнений подойдет как для домашнего использования, так и для профессиональных проектировочных работ в чем Вы можете убедиться, просмотрев данное видео:
Правильное пользование sPlan
Правильное пользование sPlan
WordPress Photo Gallery Plugin
EasyEDA
Бесплатная полнофункциональная облачная система проектирования печатных плат, не требующая инсталляции на локальный компьютер (Рисунок 1). Несмотря на то, что EasyEDA – это облачный сервис и новый развивающийся проект, она может похвастаться функционалом, надежностью, стабильностью и скоростью работы, простым и понятным интерфейсом, богатым набором библиотек компонентов с функцией автоматического обновления, возможностями импорта проектов из других систем проектирования. В состав системы входят редактор схем, симулятор смешанных сигналов с использованием SPICE-моделей и схем, редактор многослойных печатных плат с автотрассировщиком и системой подготовки плат к производству. И самое главное – система EasyEDA имеет русский пользовательский интерфейс.
| Рисунок 1. | Рабочая область онлайн системы EasyEDA. |
Кроме того, к системе EasyEDA, обладающей функционалом профессиональных инструментов разработки печатных плат, добавляются преимущества, характерные для облачных сервисов: автоматическое обновление библиотек элементов (для редактора схем, SPICE симулятора и редактора печатных плат), возможность делиться своими разработками и библиотеками, доступ к огромной коллекции профессиональных Open Source модулей, оперативная техническая поддержка и связь с разработчиками системы.
| Рисунок 2. | Поиск в библиотеках элементов в среде EasyEDA. |
Работать в EasyEDA можно из любого браузера. Наличие учебника, руководства по SPICE симулятору, огромного количества примеров профессиональных проектов, понятный пользовательский интерфейс обеспечивают легкость освоения системы.
Основные преимущества EasyEDA:
- бесплатный кросс-платформенный набор облачных инструментов не требующий инсталляции, объединяющий в себе мощные средства редактирования электрических схем, моделирования цифро-аналоговых цепей и разработки печатных плат в web-браузере для инженеров-электронщиков, преподавателей, студентов и радиолюбителей;
- все преимущества облачного сервиса: работа из браузера в любой операционной системе Linux, Mac, Windows, Android;
- быстрое рисование в браузере электронных схем с использованием доступных библиотек, эффективное автоматическое обновление;
- библиотеки от SeedStudio, SparkFun, Adafruit, KiCad, DangerousPrototype;
- менеджер работы с библиотеками элементов, быстрый поиск элементов в системных и пользовательских библиотеках;
- проверка аналоговых, цифровых и смешанных схем с использованием SPICE-моделей и подсхем;
- работа над многослойными платами с тысячами контактных площадок;
- возможность импорта проектов из Eagle, Altium, Kicad и LTspice;
- возможность настройки общего доступа и совместной работы над проектами;
- доступ к Open Source модулям, разработанных тысячами инженеров по радиоэлектронике;
- возможность делиться своими разработками, используя настройки общего или закрытого доступа.
Программы для рисования схем
Как нарисовать принципиальную электрическую схему на компьютере? Такой вопрос ставят себе тысячи людей, деятельность которых так или иначе связана с электротехникой, электроникой и радиотехникой. Естественно для этого существуют специальные программы для рисования схем.
Программы для рисования схем, так называемые редакторы схем, созданы специально для «упрощения жизни» разработчика и конечно различаются как удобством работы при создании схемы, так и функциональностью.
На сегодняшний день существует большое количество программ для создания электрических принципиальных схем. Так же функции рисования схем существуют во многих системах автоматического проектирования электронных схем.
Как разобраться в таком многообразии и выбрать программу соответствующую вашим требованиям?
На этот вопрос со всеми подробностями я отвечу вам в этом разделе, который так и называется «Программы для рисования схем»
Программы для рисования схем
Как нарисовать принципиальную электрическую схему на компьютере? Такой вопрос ставят себе тысячи людей, деятельность которых так или иначе связана с электротехникой, электроникой и радиотехникой. Естественно для этого существуют специальные программы для рисования схем.
Программы для рисования схем, так называемые редакторы схем, созданы специально для «упрощения жизни» разработчика и конечно различаются как удобством работы при создании схемы, так и функциональностью.
На сегодняшний день существует большое количество программ для создания электрических принципиальных схем. Так же функции рисования схем существуют во многих системах автоматического проектирования электронных схем.
Как разобраться в таком многообразии и выбрать программу соответствующую вашим требованиям?
На этот вопрос со всеми подробностями я отвечу вам в этом разделе, который так и называется «Программы для рисования схем»
Платное программное обеспечение для рисования электронных схем:
Ниже представлен список и краткое описание платных программ для проектирования электронных схем.
OrCAD
Самая популярная программа компании Cadence, содержащая полную среду для коммерческих проектов PCB, содержит все компоненты, необходимые для проектирования печатных плат, такие как:
- модуль для введения схем;
- редактор печатных плат с интегрированным управлением проектирования.
Чтобы повысить эффективность дизайна, программа предлагает интерактивную технологию проводки Push & Shove.
TINA-TI
Недорогое решение от DesignSoft, созданное для предприятий и фрилансеров. Он позволяет создавать:
- схемы;
- компоновку компонентов;
- моделирование;
- множество дополнительных функций.
Примечательной особенностью является также тестирование систем в режиме реального времени.
Altera
Предоставляет полный набор инструментов программирования для каждого этапа проекта, включая программные обеспечения:
- NIOS II для проектирования встроенных систем;
- DSP Builder для проектирования цифровых систем обработки сигналов;
- Quartus II и ModelSim для построения логических систем.
Система Altera Max + Plus II (многоадресная матричная программируемая логическая пользовательская система) представляет собой интегрированную среду для проектирования цифровых схем в программируемых структурах. Система Max + Plus II включает 11 интегрированных прикладных программ.
Altium Designe
Комплект Altium Designer включает в себя четыре основных модуля:
- редактор схем;
- 3D- дизайн печатной платы;
- разработка программируемой вентильной матрицы (FPGA) и управление данными.
Как правило, Altium Designer является дорогим ПО, но отличается способностью добиваться быстрых результатов для сложных схем.
Это программа для создания печатных плат и электронных схем. В пакет P-CAD входят два основных компонента:
- P-CAD Schematic — редактор схем;
- P-CAD pcb — редактор печатных плат.
На протяжении долгого времени данной программой пользовалось огромное количество российских разработчиков электронных схем, главной причиной этой популярности стал достаточно интуитивно понятный и удобный интерфейс. На данный момент производитель прекратил поддержку данного ПО, заместив ее программой Altium Designer.
Proteus Design Suite
Это полное программное решение для моделирования схем и проектирования печатных плат. Он содержит несколько модулей для схемного захвата , прошивки IDE и компоновки печатных плат, которые отображаются в виде вкладок внутри единого интегрированного приложения. Это обеспечивает плавный рабочий процесс AGILE для инженера проектировщика и помогает продуктам быстрее выйти на рынок.
Пробная версия приложения имеет полный функционал, но не имеет возможности сохранения файлов.
sPlan
Простой в использовании инструмент, который зарекомендовал себя в области инженерии, ремесел, образования, исследований и обучения. Он также стал полезным инструментом для многих частных пользователей.
Создавайте профессиональные планы за очень короткое время, от простой схемы до сложных планов. Особенностями данной программы являются:
- расширяемая библиотека символов;
- индивидуальные страницы с листами форм;
- список компонентов;
- автоматическая нумерация компонентов;
- удобные инструменты рисования.
В бесплатной версии нельзя сохранять, экспортировать и печатать файлы.
Тимеркаев Борис — 68-летний доктор физико-математических наук, профессор из России. Он является заведующим кафедрой общей физики в Казанском национальном исследовательском техническом университете имени А. Н. ТУПОЛЕВА — КАИ
Самая популярная программа для создания принципиальной электрической схемы на Mac Windows и Linux
Компоненты продемонстрируются в 3D в их реальной форме. В первой нет возможности сохранить и распечатать нарисованную схему. Распространение: Freeware бесплатная с ограничениями и Shareware платная Подробнее Kicad САПР сквозного проектирования, позволяющая создавать профессиональные электрические схемы и разрабатывать для них печатные платы.
DoCircuits : Хотя она оставляет людям первое впечатление от путаницы о сайте, но она дает много примеров о том, как работает программа, можно видеть себя на видео «будет начать в пять минут». Программа свободно распространяется и полностью на русском языке.
Для подключения еще одной библиотеки нужно нажать кнопку «Создать», потом указать путь к библиотеке и ее название. Эти симуляторы электроцепи, которые я предлагаю, не нужно быть загружен в компьютере, и они могут работать непосредственно с веб-сайта. В ней можно не только нарисовать принципиальную электрическую схему, но и блок-схемы и многое другое. Если там чего-то нет, можно добавить свои элементы.
Вывод: в основном эта программа подходит для студентов и начинающих радиолюбителей. Допускается одновременная работа с несколькими проектами, путем их открытия в отдельных вкладках. Вроде все неплохо, но у D Circuits есть серьезные недостатки. Процесс создания схемы стандартный — перетаскиваем из библиотеки нужные элементы на поле, разворачиваем их в требуемом направлении и устанавливаем на места.
Полезные ссылки
Скачать Eagle Dip Trace Dip Trace представляет собой набор нескольких редакторов и меню, в которых выполняются различные процессы с электрическими схемами. DoCircuits 5. Как создать принципиальную электрическую схему Создать принципиальную электрическую схему при помощью готовых символов и изменить её в нужный Формат через 1 нажатии. PartSim электронный симулятор схемы онлайн.
ПО состоит из модулей: Schematic для создания многолистовых многоуровневых схем с встроенным простейшим симулятором и PCB Layout. Мощная CAD-программа для разработки схем и печатных плат. Интерфейс бесплатной программы для рисования схем ProfiCAD Профикад Принцип работы простой: в поле слева находим нужный элемент, перетягиваем его в нужное место схемы, поворачиваем в требуемое положение.
По завершении создания проекта выбирается крышка щита. Программа имеет многочисленные настройки, которые требуют в начале подробного изучения, но в дальнейшем сильно облегчают работу. XCircuit — простой редактор с минимумом функций Язык приложения — английский, программа не воспринимает русские символы. В общем, довольно удобна программа при помощи которой легко нарисовать схему электроснабжения, проставить наименование элементов и номиналы. Электрики свободно смогут создавать здесь схемы и чертежи с помощью встроенных инструментов. Программа для рисования электрических схем
https://youtube.com/watch?v=M5hdSufyuxA
Сервис Tinkercad – удобный инструмент для моделирования онлайн
Сервис «Tinkercad» — это простой и удобный инструмент для 3Д-проектирования и 3Д печати, доступный бесплатно для некоммерческого использования — аналог Компаса 3D. Интерфейс сервиса имеет русскоязычную локализацию, выглядит удобным и хорошо организованным. Возможности сервиса позволяют как импортировать уже существующие формы, так и генерировать свои собственные, позволяя смешивать и сочетать одни формы с другими. Все созданные пользователем файлы могут быть отправлены для распечатки на 3Д-принтер для создания прототипа или модели того, что вы хотите построить.
Рабочее окно сервиса «TinkerCad»
Нарисовать Электрическую Схему Онлайн
Интерфейс должен быть простым, удобным, функциональным.
Не забудьте для отображения данных характеристик на схеме поставить напротив них галочки. Переходим к следующему элементу. КАК ПЕРЕНЕСТИ ЭЛЕКТРОННУЮ СХЕМУ С БУМАГИ НА ПЛАТУ
Тело можно перетащить на схему, а затем соединения можно нанести на соответствующие точки на корпусе самоопределяемого компонента. Если вы возьмете его, оставьте сильную цепочку гондола из нейлона, чтобы вытащить другой провод позже. В правой части программы для рисования схем Scheme-it имеется панель, с помощью которой вы сможете осуществлять поиск по каталогу Digi-Key. Также можно в 3D варианте посмотреть внешний вид готовой платы.
Создание различных электронных схем не является единственной задачей для MS Visio. В то же время в спецификации появляются параметры название, номер, номинал выбранного элемента.
Проекты, подготовленные в EasyEDA, могут быть опубликованы или сохранены в облаке.
EasyEDA — Сервис по созданию электронных схем и печатных плат онлайн
Бесплатные программы для создания схем
В сети имеется немало неплохих бесплатных программ для рисования электрических схем. Профессионалам их функционала может быть недостаточно, но для создания схемы электроснабжения дома или квартиры, их функций и операций хватит с головой. Не все они в равной мере удобны, есть сложные в освоении, но можно найти несколько бесплатных программ для рисования электросхем которыми сможет пользоваться любой, настолько в них простой и понятный интерфейс.
Самый простой вариант — использовать штатную программу Windows Paint, которая есть практически на любом компьютере. Но в этом случае вам придется все элементы прорисовывать самостоятельно. Специальная программа для рисования схем позволяет вставлять готовые элементы на нужные места, а потом соединять их при помощи линий связи. ОБ этих программах и поговорим дальше.

Типы анализа
Для радиолюбителей и самодельщиков есть всё в этом китайском магазине.
ПО платное, но есть бесплатная дневная ознакомительная версия. Circuit Sims : Это был один из первых вебов исходя из эмуляторов электроцепи с открытым кодом я тестировал несколько лет назад. Программа работает, начиная от Windows 98 и заканчивая Windows 7.
Можно заключить, что несмотря на свои недостатки Qucs представляет собой весьма достойную альтернативу проприетарным САПР для моделирования электронных схем.
Дополнительно данный софт имеет в своем составе множество показательных образцов. Система является достаточно стабильной и надежной, легка в освоении и работе. Некоторые из приложений платные, но у них есть демо версии с которыми можно подробно ознакомиться.
Файлы также можно экспортировать во многие форматы, включая JSON. Все полученные условными приборами информационные данные сохраняются в памяти компьютера. Программа имеет возможность создавать: разнообразные инженерные и технические рисунки; электронные схемы; составлять эффектные презентации; разрабатывать организационные схемы, маркетинговые и многие другие. Давайте перенесем щупы к лампочке и поставим измерение постоянного напряжения с пределом 20 Вольт.
Особенности симулятора электрических схем Qucs
По желанию производитель предлагает относительно недорогую конструкцию печатной платы в соответствии с созданной конструкцией. Я представляю, на сколько облегчают труд подобные программы. Существует множество бесплатных версий. Ведётся разработка системы синтеза активных фильтров для Qucs ожидается в версии 0.
Отличная анимация движения и импульсов токов, а также зарядки и разрядки конденсаторов. Я представляю, на сколько облегчают труд подобные программы. Более подробную информацию о программе вы можете найти на нашем сайте. Для управления сложными схемами включена возможность разворачивания подсхем и формирования блоков. Эх, раньше бы создали эту прогу Ответить Ответить с цитатой Цитировать владимир
Бесплатная версия программы не позволяет создавать электронные схемы в коммерческих целях. Суммарное напряжение последовательно соединенных батареек 3 вольта. Circuit Sims 2. Это измерительные щупы. Программное обеспечение Quite Universal Circuit Simulator является редактором с графическим интерфейсом с комплексом технических возможностей для конструирования схем.
Как работает транзистор? Режим ТТЛ логика / Усиление. Анимационный обучающий 2d ролик. / Урок 1
Плюсы и минусы
Давайте разбираться с положительными и отрицательными особенностями программы для построения электрических схем.
Достоинства:
- Приложение, о котором мы сегодня говорим, будет полностью бесплатным для вас.
- Программный интерфейс переведен на русский язык.
- Все управляющие элементы расположены в главном окне, что делает доступ к любой, даже самой отдаленной функции, простым.
- Огромное количество функций делают возможным построение цепи любой степени сложности.
- Программа дает всю нужную информацию для того, чтобы приступить к монтажу электропроводки в любом доме или квартире.
- Приложение обладает минимальными системными требованиями и великолепным быстродействием. Даже на самых старых компьютерах все происходит мгновенно.
Недостатки:
К недостаткам можно отнести не слишком симпатичный внешний вид. Однако люди, работающие с такого рода программным обеспечением, и не гонятся за красотой. Для них важна именно скорость, а также конечный результат.
Теперь давайте переходить к практической части нашей статьи и разбираться, как бесплатно скачать программу, установить ее, а также как пользоваться Электриком.
Это интересно: Трансформатор и автотрансформатор — отличие в конструкции и работе
Создание блок-схемы с рисунками
На вкладке Вставка в группе Иллюстрации нажмите кнопку SmartArt.
В коллекции Выбор рисунка SmartArt выберите элемент Процесс, а затем дважды щелкните Процесс со смещенными рисунками.

В фигуре, в которую вы хотите добавить рисунок, щелкните значок рисунка , выберите рисунок и нажмите кнопку Вставить.
Для ввода текста выполните одно из следующих действий:
В области текста щелкните элемент и введите содержимое.
Примечание: Если область текста не отображается, на вкладке Конструктор нажмите кнопку Область текста.
Скопируйте текст из другого места или программы, в области текста щелкните элемент , а затем вставьте скопированное содержимое.
Щелкните поле в графическом элементе SmartArt и введите свой текст.
Примечание: Для достижения наилучших результатов используйте это действие после добавления всех необходимых полей.





































