Как выбрать сарай для дачи: рассматриваем варианты
Зачастую вместе со строительством сарая начинается освоение участка, поэтому к этому времени необходимо уже иметь детальный план-схему, на котором будет обозначено расположение всех планируемых построек: жилой дом, баня, беседка, гараж, сарай и т.д.
Поскольку дачный участок обычно не отличается большой площадью, все хозпостройки, для экономии места, лучше объединить – построить сарай, который будет совмещать функции кладовой, туалета и душевой. Такое решение особенно оправдано на начальном этапе застройки участка.
Сарай можно разместить, например, рядом с границей участка, за домом, чтобы скрыть хозблок от посторонних взглядов. Кроме дома, дополнительную маскировку сараю можно обеспечить с помощью вертикального озеленения участка. Другой вариант – разместить сарай вблизи дома, чтобы не приходилось за каждой мелочью бегать через весь участок. Очень часто под сарай отводят место, которое по разным причинам (затененность, северная сторона, плохая почва) хуже всего подходит для посадки деревьев или выращивания садовых культур.
Рассмотрим несколько самых популярных вариантов сараев для дачи.
Пиломатериал для постройки сарая
Зная, как сделать без фундамента сарай из досок своими руками, нужно правильно подобрать исходные пиломатериалы. Основным материалом для возведения постройки являются брус и доска.
Брус
Для лёгкой постройки применяют брус сечением 50х50, 40х50 и 50х90 мм. Деревянные элементы изготавливают из хвойных пород деревьев.
Так как брус является основным несущим элементом конструкции сарая, то при отборе пиломатериала надо обращать внимание на отсутствие крупных дефектов в структуре дерева. Неправильно просушенный брус может оказаться с большим изгибом
Такой материал нельзя применять в виде несущих вертикальных стоек
Неправильно просушенный брус может оказаться с большим изгибом. Такой материал нельзя применять в виде несущих вертикальных стоек.
Доска
Доска бывает обрезной и необрезной. Облицовочная доска делается также с устройством вдоль торцов замковой системы – «шип – паз».
От качества обработки зависит стоимость пиломатериала. Для возведения лёгких построек обычно применяют доску шириной 100 – 150 мм, толщиной 15 – 25 мм.
Так же как и брус, доску надо брать из сухого помещения. Выбор вида доски зависит, насколько сооружение нуждается в дорогом или дешёвом исполнении.
Весь пиломатериал перед началом работ обязательно обрабатывают антисептиком. Некоторые специалисты предлагают самый дешёвый способ обработки – это пропитка дерева отработанным машинным маслом.
Необходимый инструмент
- Для обрезки досок вам понадобится на выбор: ножовка, цепная пила, дисковая пила (циркулярка) или небольшой деревообрабатывающий станок.
- Для соединения всех деталей с использованием гвоздей, нужен молоток. Когда вы заколачиваете доски на весу, может понадобиться второй молоток побольше, или чугунная чушка.
- В качестве основного крепежа можно использовать саморезы и уголки – в этом случае вам понадобиться шуруповерт с емким аккумулятором или с проводом, возможно дрель.
- Чтобы сделать простейшие пазы, понадобиться топор, стамеска. Для некоторых элементов пригодится рубанок.
- Для фундамента нужна лопата и бур, емкость для раствора или бетономешалка.
- Самое главное – хороший измерительный инструмент: рулетка, отвес, жидкий уровень, уголок. Используйте специальный строительный карандаш или маркер.
Преимущества и недостатки конструкции из досок без фундамента
Опытные фермеры советуют создавать сараи из деревянных досок, а устанавливать их прямо на землю, без возведения фундамента. Преимущества подобных сооружений заключаются в следующем:
- экономия времени — их можно возвести быстро (всего за несколько дней);
- экономия денежных средств — без фундамента конструкция обойдётся дешевле в 2 раза;
- экономия сил — очевидно, что возведение строения без основания требует меньших усилий со стороны строителя.
Кроме того, сам сарай получается довольно лёгким и устойчивым.

Чтобы построить сарай без фундамента выбирают деревянные доски — они довольно лёгкие, но прочные
Однако у подобных строений есть и недостатки:
- необходимость в обязательном дополнительном утеплении пола, чтобы животные внутри не мёрзли;
- потребность в наружной и внутренней гидроизоляции стен и пола, чтобы вода из почвы не разрушила деревянные доски;
- недолговечность конструкции (сарай прослужит лет 20, тогда как с фундаментом — около 50);
- необходимость в тщательной подготовке территории, на которой установят сарай.
Деревянные доски являются прочным и надёжным материалом и стоят относительно недорого. Вот почему они не теряют своей популярности и актуальности, несмотря на обилие современных инновационных материалов.

Деревянный сарай без фундамента прослужит максимум лет 20, затем начнёт быстро разрушаться
В каких случаях рационально использование
Когда строят сарай на века, в обязательном порядке его устанавливают на фундамент. Если необходимости в длительной эксплуатации здания нет или предполагается перенос сооружения с одного места на другое, то основание не заливают.
В фундаменте нет необходимости, если вы проживаете в тёплых краях, где нет суровых зим, выпадает мало осадков в течение года.

Строительство сарая без фундамента могут себе позволить жители тёплых краёв с небольшим количеством среднегодовых осадков
Дешевизна — ещё одна немаловажная особенность сарая без фундамента. В условиях ограниченности денежных средств можно построить конструкцию без основания и установить её прямо на земле.
Основание
Временный сарай без фундамента ставят на щебневую подушку толщиной 25-40 см. ее насыпают вровень с поверхностью грунта, сняв гумус. Однако сараю длительного пользования все-таки нужен фундамент достаточно надежный для данного типа строения, недорогой и не очень трудоемкий.
На плитных фундаментах сараи возводят редко: для обычного они слишком трудоемки и дороги, а в коровнике или свинарнике на плите сложно устроить стойла и навозную яму. Большие скотные сараи из кирпича возводят на ленточном или столбчато-ленточном фундаменте, но для мелкого частного хозяйства и это, пожалуй, излишне.

Столбчатый фундамент сарая
Оптимальный фундамент сарая – столбчатый, см. рис. Технология его заложения (так называется процесс постройки фундамента) описана ранее; мы здесь разберем, облегчить и упростить эту работу для сарая. Пошагово обустройство столбчатого фундамента под сарай выглядит так:
- Для бетона закупаем у дорожников (не строителей!) песчано-гравийную смесь (ПГС), она намного дешевле строительного песка и гравия по отдельности. Бетон на ПГС под жилое здание непригоден, но для сарая пойдет;
- Также закупаем цемент М400 из расчета 1 мешок на 9 мешков ПГС. Бетон получится М150, для сарая хватит;
- На участке делаем обноску из 1-го (да, именно одного) шнура на колышках;
- Проверяем ее как обычно, сравнением диагоналей и промерами сторон;
- По шланговому гидроуровню находим наивысший угол и ставим отступ шнура от поверхности грунта в 10 см;
- Тем же уровнем выставляем обноску в горизонталь;
- В наинизшем углу бурим 200-мм ручным буром скважину на расчетное заглубление плюс 15-25 см на песчано-щебневую подушку;
- На штанге бура делаем отметку;
- Бурим остальные скважины до совпадения отметки на буре со шнуром;
- Засыпаем в скважины равные слои песка и щебня с трамбовкой каждого слоя. Использовать здесь ПГС нельзя, т.к. заливаемый раствор должен немного проникнуть в щебенку;
- Сворачиваем из 2-х слоев рубероида гильзы свай диаметром 150 мм. Скрепляем их 2-мм мягкой проволокой. Чтобы гильзы не распёрло при заливке, надо 3-4 пояса обвязки на 1 м их длины;
- Ставим гильзы в скважины. Подкладывая камешки, выставляем вертикально;
- Обрезаем гильзы, ножницами по металлу или большими портновскими, вровень со шнуром;
- Готовим арматурные каркасы: по 3 (10-12)-мм рифленых прута на столб, перевязанных той же 2-мм проволокой. Шаг связки по вертикали – 200-250 мм. Расстояние от внутреннего края гильз и их верха обычное, 30-50 мм;
- Ставим каркасы в гильзы, выставляем, чтобы не касались стен;
- Замешиваем бетон на ПГС до густоты сметаны;
- Заливаем столбы послойно, слоями в 15-20 см, с перерывом 10-25 мин. между слоями. Это называется заливка с гидроуплотнением. На практике слои заливают по порядку, начиная с одного и того же столба;
- Перед заливкой последнего (предпоследнего) слоя ставим в столбы анкеры;
- На 3-и сутки производим обратную засыпку грунта с трамбовкой. Следите, чтобы не сбить столбы с вертикали!
- На 7-е сутки (бетон набрал 50% прочности) можно продолжать строительство. На 20-е сутки, при температуре 15-25 градусов, бетон наберет 75% прочности и строение на нем считается пригодным к эксплуатации.
Особенности
Дачная жизнь начинается не только с благоустройства жилых помещений, но и приусадебного участка. Поэтому, чтобы обеспечить удобное размещение вещей и содержать территорию в чистоте, понадобится садовый сарай. Перед тем как построить такую бытовку, дачник должен определиться с тем, какие функции она будет выполнять. Если планируется сарай для дачи, в котором только разместятся инструменты и садовый инвентарь, то можно воздвигнуть простое строение без фундамента с окнами и хорошей крышей. В том же случае, когда хозяева хотят хранить в нем сено, заготовленные на зиму овощи и фрукты, транспортные средства и содержать птицу, то понадобится более прочная конструкция.
Для строительства хозяйственных блоков закон предусматривает специальные нормативы, поэтому их нельзя возводить без получения разрешений от санитарно-эпидемиологических служб. Кроме этого, стоит учесть, что капитальные сооружения могут затенять грядки на соседнем участке, что приведет к конфликтным ситуациям. Чтобы этого избежать, нужно соблюдать нормы размещения сарая, по которым расстояние от его границ до проезда и границ со стороны улицы должно составлять не менее 5 м. Что же касается расстояний внутри участка, то хозяйственные строения можно устанавливать от домов не менее чем 3 м, других построек – от 1 м, и от деревьев – на 4 м.
Законодательство также гласит, что каждый владелец земельного участка не может ущемлять права соседей. Поэтому размещение сарая следует планировать таким образом, чтобы он никаким образом не мешал другим дачникам. Блоки без содержания птиц и животных рекомендуется устанавливать по бытовым и санитарным нормам на расстоянии 6 м от смежных территорий. До того как регистрировать сарай, нужно также получить разрешение от противопожарных служб. Для этого представители МЧС выедут на место и сделают оценку план-схемы и сделают заключение технической характеристики объекта.
После того как вся документация будет в порядке, можно смело приступать к строительству и обустройству сарая.


Как быстро и дешево построить сарай
Для возведения постройки понадобится совсем немного средств, если иметь полное представление о конечном результате. Если нужно сделать сарай для дачи, пошаговая инструкция поможет сэкономить.
Наиболее простой вариант, к тому же не требующий много времени, будет, предполагает использование каркасной конструкции. Основа может быть металлической или из дерева, а облицовка – из любого подходящего для этого материала. Сразу после того, как перекроете крышу, постройка будет готова.
Недорого построить хозблок можно из подручных материалов, которые за небольшую цену легко приобрести у соседей. Если при этом сделать сарай без фундамента, правильно рассчитав размеры и общую жесткость сооружения, можно дополнительно сократить издержки и избежать тяжелых бетонных работ.
Что сначала. Как быть с проектом
Постройка сарая, как и любое строительство, предполагает создание проекта. Процедура обустройства сарая несколько усложняется, если требуется сделать санузел иди душ. Нужно предусмотреть канализацию, водопровод, дополнительные двери и окна.
После того как определились с местом расположения и размерами, следует подумать, из чего сделать сарай. Если постройка рассчитывается на долгий срок, понадобится фундамент. Постоянную постройку лучше планировать из блоков или кирпича. Сарай из горбыля с крышей из старого шифера может быть только временной конструкцией.
Чертеж сарая понадобится максимально подробный. Дизайн долговременного помещения должен гармонировать с общим стилем и ландшафтом двора.
О временных сараях
При размышлении о том, из чего построить сарай, часто используют оставшийся после возведения дома материал.
Главное – сделать жесткий каркас конструкции. Для этого подойдет брус, а при наличии сварочного аппарата – трубы или уголок.
Если для стен используются неоднородные материалы, следует делать нахлест сверху вниз. Под крышей желательно проложить гидроизоляцию из полиэтиленовой пленки или толя.
Дверь можно приспособить б/у или сколотить самый простой вариант из досок и подвесить на внешние петли.
Выбор места для сарая
Особенности выбора:
- Деревянный сарай ставьте на возвышенности, чтобы конструкция была защищена от талых или дождевых вод.
- Красивые сараи можно расположить в любой части участка. Сооружения попроще лучше спрятать на заднем плане.
- Скат крыши нужно сделать так, чтобы сточные воды не заливались в помещение и не мешали ничему во дворе.
- Строительство сарая для подсобного хозяйства (утки, куры, животные) лучше начать в месте, где можно отгородить дополнительную территорию для выгула. Кроме того, нужно учитывать специфический запах.
Инструменты для работы
Материалы и инструменты, которые потребуются для того, чтобы построить сарай своими руками, зависят от выбранного типа конструкции.
Скорее всего понадобится:
- лопата;
- молоток;
- дрель;
- электролобзик или ножовка;
- угол;
- уровень;
- рулетка;
- отвес;
- шуруповерт или отвертка.
Если нужно делать фундамент из железобетона, то было бы неплохо иметь бетономешалку. Если правильно спланировать работу, то ее можно взять в аренду на полдня.
Кровельное покрытие
Покрыть крышу сарая вы можете любым материалом, какой у вас есть в наличии, или существует возможность достать по небольшой цене. Но пока одним из самых популярных материалов, несмотря на шум вокруг него в последнее время, остается шифер. И все ввиду своей дешевизны и долговечности.
Единственное, что мы вам рекомендуем, это придерживаться правил личной безопасности при монтаже такого кровельного покрытия, а именно при резке надевать средства индивидуальной защиты. И учитывайте что шифер сам по себе материал тяжелый, а потому под него следует делать достаточно плотную обрешетку.
Надеемся, что наша статья поможет во всем разобраться!
Список строительного материала
Для фундамента вам может понадобиться песчано-гравийная смесь или песок со щебнем, цемент, рубероид. Хороший вариант — винтовые сваи. Можно использовать просто антисептированные деревянные балки или шпалы – но деревянный фундамент долговечным не получится. Выбор фундамента зависит от того, какие у вас проекты.
Каркас удобней всего сделать из бруса сечением более 100 мм включительно и досок 100×40 мм. Еще лет 10-15 назад основным материалом деревянных каркасов были окоренные бревна диаметром 15-25 мм. По прочности и долговечности они не уступают пиломатериалам, но тут необходим опыт работы топором, потребуется больше времени, не получатся идеально ровные стены.
Чаще всего обшивку делают из досок. Можно использовать доски любых сортов, даже не обрезные. Для упрощения строительства, можно взять плиту ОСП или влагостойкую фанеру. Если сарай находится рядом с домом, и вы не хотите, чтобы он выделялся своей простотой, используйте для обшивки вагонку, блок-хаус, варианты сайдинга. Сколько их понадобиться, надо рассчитать исходя из площади стен.
Крыша, ее односкатный вариант, делается из недорогих материалов: металлопрофиль, волнистый лист (Ондулин), рубероид с защитным от УФ слоем. Односкатная кровля всегда способствует лучшей вентиляции.
Крыша
Сарай является простым хозяйственным сооружением. Вполне допустимо использование односкатной крыши, которая легка в исполнении. Преимущества такого варианта:
- легкий монтаж в сочетании с надежностью;
- дешевизна, ведь нужно немного материала;
- легко делать гидроизоляцию.
Важно подобрать материал для крыши и угол ската. Последнее важно, ведь если снег будет скапливаться, то может сломать покрытие. Обычно скат делают не меньше 25–30°
Обычно скат делают не меньше 25–30°.

Нюансы монтажа зависят от материала.
Волновой и плоский шифер. Вариант дешевый, но служит не более 3 лет. Также шифер отличается хрупкостью, может пострадать от падения крупных веток. Панели довольно тяжелые (около 20 кг) и создают дополнительную нагрузку на каркас. Шифер стыкуется внахлест на 30–35 см. Монтаж начинается с нижнего яруса, а для фиксации применяются специальные гвозди.




Этапы строительства
Одними из самых популярных подсобных помещений считаются каркасники. Их возведение занимает минимум времени и производится по стандартной схеме:
Сборка основания
- После того как земля утрамбована, чтобы грунт дал максимальную усадку, подготовлена песчано-щебеночная подушка, размечается периметр постройки.
- По углам и посередине длинных сторон устанавливаются блоки из бетона.
- На блоках собирается деревянная рама или металлический каркас.
- Собираются лаги для пола, укладывается теплоизолирующий слой и напольное покрытие, например, линолеум.
Каркас сарая с односкатной крышейИсточник bankfs.ru
Возведение стен
- На углах выставляются опорные столбы, а по периметру стойки.
- Монтируются дверные и оконные коробки.
- Выполняется наружная и внутренняя обшивка.
Строительство односкатной кровли
- Каркасные стойки соединяют с рамой обвязки.
- Укладывают гидроизолирующий слой, затем крепят обрешетку.
- Обрешетку укрывают рубероидом или мягкой кровлей.
- Монтируют гофролист, как вариант – металлочерепицу.
После выполнения всех монтажных работ переходят к внутренней отделке помещения.
Двускатный каркасник на столбчатом фундаментеИсточник sami-stroim.ru
Из чего построить сарай
Вы можете выбрать любые варианты, все определяется вашими навыками и финансовыми возможностями. Самый простой вариант – сделать из досок. Крыша тоже может быть сделана из дерева, методом так называемой дранки. Если у вас есть инструмент для металлообработки – можете сделать каркас из профилированной трубы и обшить его металлическими листами, крыша будет из того же материала. Самый долговечный сарай можно сделать из кирпичей или пеноблоков, но такие строения чаще используют для содержания животных. Крыша в таком случае может быть сделана, и из тяжелых кровельных материалов: асбоцементные листы или керамическая черепица.
Как построить сарай своими руками с односкатной крышей поэтапно
Подготовительные работы
Но перед подготовкой материала для стропил, соорудите фундамент и стены. От этого вы будете отталкиваться, насколько прочной и сложной вы сможете строить саму крышу.
Ведь этот элемент сарая также имеет свой вес, и нельзя, к примеру, сооружать тяжелую массивную кровлю для хлипких каркасных стен. Как и нет смысла бояться создать лишнюю нагрузку на стены, которые были построены из прочного и долговечного материала.
Строительство фундамента
Для небольшой садовой постройки вам вполне подойдет небольшой деревянный фундамент, который обработан антисептиками от гниения:
Для массивного сарая с тяжелыми стенами (например, из камня) придется строить основательный ленточный фундамент с разной глубиной углубления. А в качестве фундамента для сарая средних размеров идеально подойдет столбчатый:
Вычислять сложные точные нагрузки на такой фундамент не стоит, как это делается обычно для целого жилого дома, но интуитивно вы должны понимать, что от качества основания зависит долговечность постройки, но “деньги закапывать в землю”, как любят выражаться профессиональные строители, также не стоит.
Рассчитываем материал для стропил
А теперь перейдем непосредственно к строительству самой крыши. Стропила – это деревянные или металлические балки, которые служат несущим элементом крыши. Усилить стропильные фермы для крыши сарая вы можете специальными внутренними перегородками, которые имеют свои названия:
Вот хороший пример, как эти элементы реализуется в живом строительстве:
Готовые стропильные фермы двухскатной крыши представляет собой правильные треугольники, если вы строите симметричную крышу, и разносторонние, если асимметричную или несимметричную. Но, если в вашем сарае будет внутренняя стена, вам лучше построить двускатную крышу по системе наслонных стропил, которые дополнительно опираются на такую перегородку. Но все это нужно будет монтировать на высоте, а не заранее на земле.
Также хотим предложить вам наш онлайн-калькулятор для расчета такой крыши. Он абсолютно бесплатен.
Выбираем материал
В зависимости от того, насколько крыша вашего сарая будет тяжелой, решите, нужны вам деревянные стропила или металлические:
Единственный минус металлических стропил в том, что они обладают немалым весом и требуют сноровки при работе с ними. А, в частности, вам на высоте придется варить металл.
В качестве древесины берите хвойные породы, но не ниже первого сорта и влажностью ниже 18%. Обязательно обработайте будущие стропила антисептиком и примените антипирены для огнезащиты. Работать с таким материалом – одно удовольствие:
Только шаблон для них обязательно нужно изготовить заранее, если вы хотите получить в итоге ровную и красивую крышу. Найдите для этого время, и сам процесс дальше уже будет идти легче:
А как правильно соединить стропила в коньке, вам поможет подготовленная нами иллюстрация:
Варианты отделки снаружи
Отделку снаружи можно делать несколькими способами. Чтобы выбрать подходящий вариант, стоит рассмотреть все возможные.
Сайдинг
Наружная отделка сайдингом своими руками имеет подводные камни, когда начинают покрывать этим материалом дверь (это касается той, которая открывается наружу). Не следует забывать, что в расчет берется само крепление, на которое монтируется сайдинг, и толщина (чтобы дверь нормально открывалась).
Осуществляя монтаж сайдингом, нужно брать в расчет факторы:
- Монтаж нужно осуществлять в определенной последовательности. Сначала проводится установка начальной рейки, наличников для проемов, монтаж уголков. Затем проводят установку отделочных планок.
- Крепление сайдинга выполняется на обрешетке с шагом 30-50 см, которая обеспечивает поступление воздуха к фасаду.
- Установка этого отделочного материала проводится с нижней части наверх. Начало берет стартовая планка и установку проводят до завершающей.
Во время установки в расчет берут и изменение габаритов сайдинга при смене температуры окружающей среды. Панели будут расширяться и сжиматься примерно на 6 мм.
Профлист
Чтобы построить хозблок своими руками, не нужно тратить средства на кирпич или блоки. Не потребуется и возведение фундамента, если такие сооружения выполняют из профильного листа.
На потолке такого сооружения может скапливаться конденсат и капать на голову. Чтобы такого не произошло, необходимо постелить слой гидроизоляционного материала, который будет отводить конденсат.
Как это сделать самому? Крепление пленки для гидроизоляции выполняют на двухсторонний скотч. Начинают прокладку материала с нижней части и двигаются вверх. Нахлест между полосами составляет 10 см.
После этого профлисты монтируют на стены. По окончании монтажных работ внутреннюю сторону сарая покрывают утеплителем, в качестве которого используется минеральная вата. Внутренняя обшивка проводится с применением вагонки из дерева или пластика.
Обшивая стены, нужно провести ровную установку первого листа, по которому будут ориентироваться остальные, устанавливая их в волну и прикручивая к основанию на саморезы. Количество саморезов на один лист в среднем достигает 20 шт.
Дерево
Наружная часть сарая может быть обшита доской из дерева подобно кладке из кирпича. Чтобы не было щелей, на место зазора накладывают еще одну доску. Обшивку производят встык. Можно делать это и внахлест, но при таком способе расход материала увеличивается.
При обшивке сарая с помощью шифера монтаж производят так, как при закрытии крыши. Есть вариант обшивки сарая доской, начиная снизу. В верхней части крепят шифер, в нижней – пиломатериал.
На потолке производится подшивка, которая засыпается таким же материалом. Поверх стропил делается обрешетка из досок, на нее настилают рубероид, его прибивают с помощью деревянных реек с промежутком в 0,5 м. Нижняя часть сооружения может быть облицована шифером, что защитит от грызунов и мелких хищников.
На нижнюю часть сарая в качестве утеплителя насыпают грунт, слой которого должен быть меньше основного пола на 10 см. Затем укладывают раствор из глины и производят его трамбовку.
Изготовление двери проводят с применением доски, сбивая ее по диагонали. Между досками делается прослойка материалом, для которой служит рубероид, так сохраняют тепло. Зная, как правильно самому построить хозблок, можно своими руками соорудить добротный сарай.
Post Views: Статистика просмотров
1 162
Выбираем место и делаем фундамент
Если вы созрели для строительства деревянного сарая, тогда сначала надо определиться с местом, где он будет стоять на участке. Сарай желательно расположить за домом, там его не будет заметно с парадного входа. Не стройте его в низине, там обычно скапливается талая вода и ваше сооружение быстро придет в негодность.
Глинистая почва не самый лучший вариант, в этом случае, под фундамент насыпьте подушку из песка и щебня. Если на вашем участке грунт песчаный, значит вам повезло, его можно просто расчистить и разровнять.
Закладка фундамента
Снимаем верхний слой грунта по периметру будущего строения, глубиной — 0,5 м. Теперь всю площадку засыпаем гравием — песком, а сверху насыпаем слой щебня. Это будет подушка для фундамента.
Толщина такой подушки составляет не больше 10 см. После чего, на нее кладем сетку из арматуры, делаем опалубку и заливаем бетоном. Бетон, периодически необходимо поливать водой, делая его постоянно влажным.
Что сначала?
Ориентируемся на месте, разговариваем с соседями. Цель – найти наилучшее место для сарая: чтобы был не очень далеко, но и не торчал перед глазами и укладывался в санитарные нормы по расстояниям до источников водоснабжения и др. подверженных загрязнению объектов (жилые дома, посадки сельхозкультур, особенно корнеплодов);
Вдруг по п. 1 ясности нет, строим сарай либо передвижной, либо времянку из дешевого бросового материала. Тем не менее, сарай на даче из горбыля или досок б/у возможно построить достаточно долговечным, недорого и несложно облагородить до придания ему вполне приглядного вида, см. далее;
Если с местом под сарай определились сразу, выбираем тип верхнего строения с учетом возможности обзаведения домашними животными;
Подбираем к «коробке» крышу;
Определяем тип фундамента;
Проектируем сарай с привязкой на местности
Последнее особо важно, т.к. надзорные органы с источниками загрязнений не церемонятся;
Сводим (подбиваем) смету на строительство и оформление;
Возможно, корректируем проект, если сарай в бюджет не вписывается;
Также, возможно, рассматриваем вариант самостроя с последующим узакониванием
Если сарай заведомо укладывается в СанПиНы (Санитарные Правила и Нормы), то так выйдет дешевле и проще, чем строить изначально по проекту;
Закупаем материалы, строим.
Как быть с проектом?
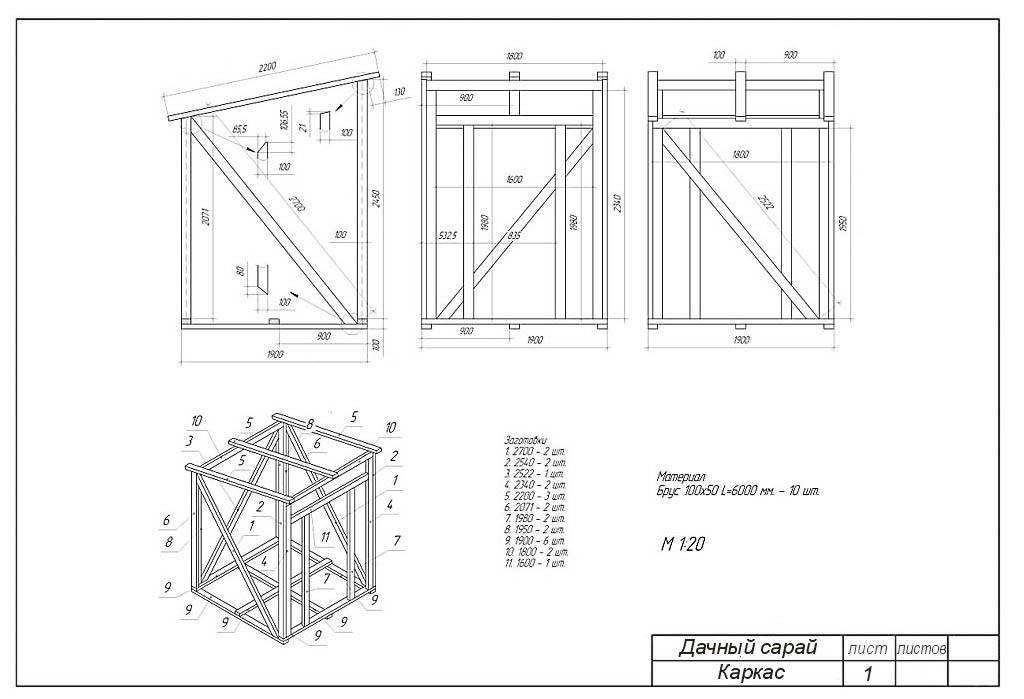
Сарай – легкое быстровозводимое не отапливаемое нежилое строение, из чего следуют важные облегчающие дело следствия. О них для строительства речь впереди, а пока нужно знать, что при оформлении/узаконивании наибольших придирок и сложностей следует ожидать по привязке на местности в соответствии с СанПиНами. Собственно проект сарая должен включать в себя листы с фасадами, план с разрезами, см. след 2 рис. и план-схему фундамента со спецификацией материалов на него, как на рис. с план-разрезами.

Лист фасадов из проекта сарая
Как правило, бесплатные проекты сараев из рунета утверждаются безо всякого и потом никто никогда не проверяет досконально, что там на самом деле построено. Похоже на проект, и ладно. Отклонения от проекта в строительстве допустимы, а в «мелкострое» для себя и без согласования можно обойтись. Но вот план-схему расположения на участке изучают очень внимательно, как и планы соседских участков и их согласия на строительство. Так что позаботьтесь собрать эти бумаги заранее, они действительны 3 года.

Лист план-разрезов из проекта сарая
Возможно, въедливый чинуша потребует еще лист с конструкцией каркаса, т.к. нежилое-то оно нежилое, но люди туда заходят. На такой случай для образца – чертежи на рис. Кстати, это совсем неплохая сарайка для 6-соточной дачи. На крайний случай там и спать можно, улегшись по диагонали.

Каркас мини-сарая для маленького участка
О временных сараях
Добротный деревянный сарай без фундамента весит до тонны; с односкатной крышей и если строить аккуратно, но не по-купечески, можно уложиться в полтонны. Передвигать его на катках по слегам, см. рис., подваживая ломом, можно вдвоем. Чтобы поднять и поставить на основание с помощью лямок (веревок), хватит 10-12 крепких мужиков. Хотя как знать, не обойдется ли последующее угощение для этой оравы дороже аренды автокрана…

Передвижение сарая на катках
К чему это, кроме того, что спервоначала строить можно где угодно? К тому, что в таком случае проект нужен не более, чем для собачьей будки, а для нее он не нужен вовсе. Если год простоит, то потом, на фундаменте, узаконят, лишь бы в СанПиНы вписывался.
Однако тут встает вопрос уже для себя: а как на фундамент ставить? Надо бы на анкеры посадить, но не разбирать же постройку, чтобы сквозь венец их протолкнуть? Есть способ, о нем см. далее.
Выбираем крышу
Какой крышей крыть сарай: двух- или односкатной? Первая имеет преимущество исключительно эстетическое. В сарае всегда выделяются миазмы. Будем откровенны, ведь и рабочую одежду не каждый день стирают. И даже не каждую неделю. А сладкие яблоки и разваристая картошка источают далеко не безвредный и безопасный в большой концентрации этилен. О курах-свинках и говорить не приходится.

Вентиляция сараев с одно- и двускатной крышей
Односкатная крыша обеспечит эффективную вентиляцию безо всяких дополнительных мер, слева на рис. Вдруг ветер задует в лоб, козырек станет воздухозаборником и выдавит ненужные испарения в щели. А под двухскатной крышей они будут довольно долго клубиться, прежде чем уйти в волоковое окошко, справа там же. Кроме того, односкатная крыша гораздо проще и дешевле. Поэтому сарай весьма желательно строить односкатный. Исключение – если на его чердаке будет сеновал.
Строим сарай своими руками – сборка каркаса
Под любое строение необходим фундамент. Это может быть и фундаментный кирпич, и керамзитобетонные полнотелые блоки, у нас же были дубовые шпалы 200Х200. Выкладываете фундамент. После этого приступаете к сборке каркаса.
Для устройства нижнего пояса, к которому будет крепиться вертикальный каркас и половые лаги, отмеряем на бруске 5 м и отпиливаем 1 лишний метр, таких брусков понадобится 2, для фасадной и задней стены. Затем на бруске отмечаем 2 метки по 2,5 м и также отпиливаем – это для нижнего пояса боковых стен.
Кладем на фундамент отпиленные части и скрепляем между собой гвоздями. К получившемуся поясу прибиваем 10 вертикальных брусков, с фасадной стороны 5 штук высотой 2,2 м с шагом в 1,2 м, к задней части прибиваем 5 брусков с шагом 1,2 м высотой 2 м.
Затем скрепляем прибитые друг напротив друга бруски нижними и верхними лагами. После того как все скреплено прибиваем верхний пояс, параллельно нижнему. Когда каркас готов прибиваем две горизонтальных доски, в тот проем, где по схеме должно быть окно.
Выбор места и планировка участка
Постройку можно сблокировать с уже имеющимися баней или гаражом либо установить отдельно. Основные требования при выборе места на участке:
- сооружение должно быть удобно расположено по отношению к дому и другим хозпостройкам;
- не занимать площадь под отведенные садово-огородные насаждения;
- гармонично вписываться в комплекс окружающих надворных построек;
- соответствовать пожарным и санитарным нормам безопасности.
Первые 3 пункта хозяин может разрешить самостоятельно. А вот по требованиям градостроительства и санитарных норм есть определенные ограничения. Если в сарае предполагается содержать птицу или мелких домашних животных, необходимо отступить:
- от соседнего владения не менее 4 м;
- от жилого дома на расстояние 15 м;
- от колодца для питьевой воды 30-50 м.

Место должно быть достаточно возвышенным, чтобы не затапливаться талыми или дождевыми водами. Для защиты участка от ветров можно расположить сарай с наветренной стороны.
Сооружение не должно мешать соседям и закрывать доступ солнечного света на их участок. В противном случае они могут подать жалобу, и суд заставит снести постройку или перенести в другое место.
Как итог – про экономическую целесообразность строительства сарая «под ключ»
Если нет опыта строительных работ или попросту не хватает времени заниматься постройкой сарая, то услуга «под ключ» это то, что вам нужно. При подписании договора вашей задачей будет только выбрать подходящую конструкцию, а все остальное сделают мастера строительной компании. Это значит, что вам не придется ломать голову, где достать инструмент, как и когда приобретать стройматериалы, искать рабочих и следить, чтобы они правильно выполняли свою работу.
Специалисты строительной компании подготовят стандартный или персональный проект и построят дачный сарай. Кроме того, они смогут выполнить полную внутреннюю отделку и оборудовать полками и стеллажами. В результате вы в течение нескольких дней получаете добротную постройку с удобно организованным пространством.
Примеры красивых проектов хозпостроек смотрите на видео:
Разобравшись, сколько стоит построить сарай, можно прийти к выводу, что затраты на качественную постройку для загородного участка сложно назвать копеечными, но если работа выполнена профессионально, вложенные средства с лихвой окупятся. Удобная подсобка послужит не только самому хозяину, но и его внукам.





































