Решение для нестандартных ситуаций
Требования к размерам гаражного проема для секционных ворот несложные, но не каждое конкретное помещение им отвечает.
Чтобы увеличить высоту притолоки используются профильные трубы, деревянные брусья и другие материалы. Чтобы не нарушать внешний дизайн стены, дополнительные надставки закрываются панелям или другим подходящим способом.
Секционные ворота в сборе: каркас ворот, полотно, направляющие и двигатель
В гаражах стандартной постройки, может возникнуть потребность увеличить высоту проема для секционных гаражных ворот. Решение, как увеличить высоту проема, выбирается исходя из конструкции его крыши. Если перемычка выполняет несущую функцию, понадобится использование временных опор, установка нового несущего контура из металла. Подобные работы следует выполнять после консультации со специалистом.
Гаражные секционные ворота выпускаются в широком размерном диапазоне. Минимальная ширина и высота – 2.25 и 2 метра. Максимальная – практически не ограничивается, можно заказать секционные ворота шириной в десятки метров, но для их размещения потребуется прочная основа, а также блок автоматики для управления.
Если плиты перекрытия уложены поперек потолка, и лежат на боковых стенах, то высоту можно увеличить простым вырезанием или выбиванием части проема. При удалении поперечной балки нужно учитывать, что в ней могут проходить линии проводки и вентиляция, их нужно аккуратно освободить, а затем проложить заново. После окончания работы новый контур нужно усилить фасонным металлическим профилем и заштукатурить.
Все работы по подготовке проема нужно выполнять с соблюдением правил техники безопасности, особенно это касается вырезки и выбивания излишков материала.
Монтаж секционных ворот в гараже — все тонкости установки
Секционно-подъемные ворота ставят в гаражах, хозблоках, других технических помещениях. Они удобны тем, что при открывании просто поднимаются вверх, не требуя свободного пространства перед полотном. Еще один плюс — есть утепленные модели, которые имеют такие же теплоизоляционные характеристики как кирпичная стена в полтора кирпича
И еще важное замечание — установка секционных ворот может производится самостоятельно, своими руками. Желательно — с помощником
В одни руки справиться будет тяжелее, но и это возможно
Только учтите: при самостоятельном монтаже потребуется не 4 часа, которые тратят профессиональные монтажники, а значительно больше…но за день справитесь точно
В одни руки справиться будет тяжелее, но и это возможно. Только учтите: при самостоятельном монтаже потребуется не 4 часа, которые тратят профессиональные монтажники, а значительно больше…но за день справитесь точно.
Этап 1. Подготовка оборудования
Инструменты
До того как приступить к работе, следует подготовить все необходимые инструменты.
- Лазерный уровень особенно необходим, если ширина ворот будет превышать 5 м. Дело в том, что обычные водяные уровни дают определенную погрешность (от 1,5 см до 3 см), что недопустимо при установке секционных ворот.
- Электродрель для крепления отдельных элементов на высоте.
- Перфоратор мощностью 1,5 кВт для проделывания отверстий в бетоне.
- Другие инструменты: отвертка, кусачки, плоскогубцы.
Также потребуются различные крепежные элементы вне зависимости от того, из бетона выполнены стены или из рыхлого песчаника.
Фурнитура
Правило 1. Все решает притолока.
Какая у вас притолока? Так начинается общение с человеком, решившим заказать секционные ворота. Дело в том, что для размещения конструкции ворот требуется место справа, слева, и больше всего, над проемом. И да, это место над проемом ворот и есть притолока.
Та самая пресловутая притолока.
Какая она должна быть, зависит от следующих параметров
У вас проем до 8м2
Для небольших бытовых гаражных ворот площадью до 8м2 устанавливаются пружины растяжения. Высота притолоки должна быть не меньше 100мм (для ручного подъема) и 125мм для ворот с приводом. Это в теории. А на практике, что бы не вылавливать миллиметры, делайте 150мм.

Пример ворот с пружинами растяжения. Видно как мало места ворота занимают над проемом.
У вас проем больше 8м2

Пример ворот с торсионными пружинами. Места над проемом требуется значительно больше.
Вы хотите встроить калитку
Для всех ворот с калиткой, независимо от размера, нужна притолока не меньше 210мм, (стандартный монтаж).
Ворота с калиткой всегда идут с торсионными пружинами.
Что делать, если у вас высокая (больше метра) притолока?
Если у вас притолока 500мм и больше, вам сказочно повезло, и вам доступен так называемый высокий монтаж, когда ворота сначала поднимаются максимально к потолку, а уже затем уезжают параллельно потолку. См. рисунок, так понятнее.

Высокий монтаж. Заводской чертеж.
- Преимущество: ворота не висят над головой, не нужны длинные подвесы.
Недостатки: высокий подъем доступен не во всех сериях, и за него нужно доплачивать 8% от стоимости ворот.
Что делать, если у вас низкая (меньше 210мм) притолока?
А если у вас притолока меньше 210мм, а нужны ворота больше 8м2, или нужна калитка? Вам поможет низкий монтаж!
Это когда вал с пружинами располагается сзади, в глубине гаража (см. рисунок). В этом случае минимальный размер притолоки будет 100-130мм, в зависимости от типа управления.
Недостаток: доплата 5%.

Низкий монтаж. Заводской чертеж.
Разновидности конструкции секционных ворот

Секционные ворота с калиткой Различают секционные модели по назначению:
- Гаражные – имеют небольшие размеры, так как рассчитаны на частные гаражи или стоянки в торговых центрах. Крепление потолочное. Секции изготавливаются из сэндвич-панелей разного вида, так как они обеспечивают теплоизоляцию бокса. Модели весьма привлекательны. Часто имитируют деревянную обшивку, могут иметь рельефную необычную фактуру. Управляются вручную или с помощью автоматики.
- Промышленные – рассчитаны на эксплуатацию в тяжелых условиях. Они не всегда утеплены, но обеспечивают максимальный уровень защиты от химически агрессивных веществ, обеспечивают высокую герметичность при закрывании и чаще всего выступают элементом шумоизоляции. Типоразмеры разнообразны. Промышленные ворота обязательно оборудуются электроприводом, а также усиленной цепной системой, что позволяет открыть тяжелую створку при отключении электричества.
- Модели с калиткой – дорогая разновидность. Калитка обустраивается прямо в полотне створки. Состоит из секций и изгибается, поэтому имеет сложную конструкцию. Однако для частного дома или небольшого предприятия такой вариант наиболее удобен.
Выпускает секционные ворота множество российских и зарубежных компаний.
Как сделать подъемного типа ворота для гаража: пошаговая инструкция
Ниже поэтапно разберем создание створок, обшитых профнастилом. Укажем наиболее важные моменты при монтаже.
Инструменты, материалы
Для работы понадобятся:
- Профнастил толщиной 0,7 мм для обшивки.
- Профильная труба размерами 20*40 мм, толщиной 2 мм для рамы.
- Металлический уголок 40*40 мм, толщиной 4 мм.
- 2 пружины диаметром 30 мм.
- 2 ролика для болтового крепления. Ширина зависит от размеров направляющих.
- Из крепежных элементов ‒ анкерные болты 30 см, саморезы ‒ 10 см.
- Стальной лист толщиной 4 мм.
- Швеллер ‒ 40*80 мм.
Из инструментов должны быть:
- набор гаечных ключей;
- шуруповерт;
- электродрель;
- молоток;
- отвертка;
- рулетка, уровень, маркер или карандаш;
- болгарка;
- сварочный аппарат.
Подготовка проема
До начала установки стоит учесть, что гаражный проем под ворота должен соответствовать таким требованиям:
- Наличие достаточного свободного пространства для крепежа направляющих.
- Ровность стен как по вертикали, так и по горизонтали.
- Соответствие несущей способности к будущей нагрузки от ворот.
Помещение, возведенное из бетонных блоков или полнотелого кирпича, достаточно надежное и не нуждается в усилении для крепежа направляющих. А вот конструкции, собранные из пустотелых пеноблоков, досок, газоблоков, потребуется усилить или просто отказаться от ворот с подъемником и выбрать другой тип.
С целью усиления на стены наносят в несколько слоев штукатурку или фиксируют по торцам дверного проема металлические уголки размерами 50*50 мм, 75*75 мм.
Создание коробки
Главной силовой деталью будущих ворот станет коробка, вмонтированная в проем, поскольку именно на нее будет приходиться основная нагрузка.
Сделать ее можно из бруса или металлического уголка. Рассмотрим второй вариант. Он более надежен.
Элементы монтируются в виде буквы П: два по бокам и один сверху.
Уголки скрепляем анкерными болтами. Нижнюю часть рекомендуется заглублять минимум на 2‒3 см в пол.
Сборка рамы, установка направляющих
Описание по изготовлению рамы выглядит так:
- Профильная труба режется болгаркой на нужные размеры в соответствии с чертежом.
- Готовые детали раскладываются на ровном столе или любой ровной плоскости. Проверяется соблюдение прямых углов.
- Места стыков прихвачиваются сваркой.
- Проверяется длина диагоналей. Если отклонений не обнаружено, то выполняется сплошное приваривание стыков.
- Для повышения жесткости рамки по углам допускается приварить косынки.
- Все швы зачищаются. Конструкцию покрывают антикоррозийной грунтовкой.
- Проводится пробная установка в проем. Проверяется соблюдение уровня.
Теперь нужно приступать к созданию другой рамы, которая будет под потолком:
- Делаются два направляющих под ролики. Проще всего сварить их из металлических уголков.
- Крепятся к опорным балкам болтами.
- Сюда же присоединяются сделанные из швеллера рычаги для открытия и закрытия створки.
- Пружины фиксируют к краям рычагов, на опоры, движущиеся кронштейны.
Все соединения проверяются на соблюдение вертикали, горизонтали.
Обшивка, фиксация створки
Порядок работ:
- Готовая рамка кладется на горизонтальную плоскость.
- К ней кровельными саморезами с резиновым уплотнителем прикручиваются листы профнастила. Шаг крепежа ‒ от 15 до 20 см.
- Болтами фиксируется ручка для открывания полотна.
- Створка выставляется в проеме. Проверяется крепление рычагов пружин.
- Проверяется работа ворот. Если створка движется плавно, то ее снимают и фиксируют болтами рычаги.
- Регулируется натяжение пружин.
При механическом управлении ставится запорное устройство, замок.
Утепление ворот
Для теплоизоляции лучше всего подойдут плиты пенопласта или пенополистирола. Минеральная вата также допустима, но со временем она дает усадку.
Пенополистирол нужно брать толщиной 4 см, плотностью 20 кг/ куб. м. Сначала проводятся замеры, обрезаются подходящие куски материала.
Крепятся плиты к профнастилу изнутри помещения жидкими гвоздями. Сверху саморезами со сверлом монтируется стальной лист.
Монтаж системы управления
Для повышения комфорта эксплуатации к ручному способу открытия добавляют автоматический с электроприводом.
В стандартный комплект входят:
- блок управления;
- приемник сигнала;
- пульт дистанционного управления.
Краткий порядок установки автоматики:
- Створка проверяется на наличие зазоров.
- По инструкции производителя выполняется сборка привода.
- По центру потолка фиксируется направляющая балка.
- В задней части балки крепятся кронштейны на дюбеля.
- Монтируется привод.
- Крепится рычаг. Одну его часть фиксируют к створке, вторую ‒ к тросу.
- Прокладывается электрическая проводка.
- Выполняется пробный запуск.
Этап 4. Установка секционных ворот
Основные точки крепления накладных вертикальных направляющих и крепления кронштейна под торсионный механизм
Шаг 1. Вначале удаляется или укрепляется все непрочное покрытие. Проверяется горизонтальность пола (допустимая погрешность в этом случае – всего 1 мм). Если все в порядке, можно начинать подготовку панелей к установке. Нужно помнить, что такие ворота стоят достаточно дорого, поэтому с полотном следует обращаться с предельной аккуратностью, чтобы случайно не повредить.
Шаг 2. Далее наносится разметка для крепления направляющих. Первыми фиксируются вертикальные профили – они крепятся на стене посредством монтажных саморезов (такие отличаются длинной ножкой). Затем, ориентируясь на вертикальные профили, фиксируются горизонтальные направляющие
Важно, чтобы «рельсы» располагались строго под прямым углом по отношению друг к другу, иначе полотно не сможет подняться
Крепеж горизонтальный направляющихКрепеж горизонтальный направляющихКрепеж горизонтальный направляющих
Шаг 3. Далее собираются панели (если не были приобретены готовые ворота). При этом нужно тщательно все замеривать, т. к. секционные ворота, как упоминалось выше, перекосов не терпят. Если таковые все же образовались, то для выравнивания нельзя использовать дощечки разного размера или монтажную пену, в противном случае размеры конструкции в дальнейшем будут нарушены.
Вместо них лучше использовать железные прокладки разной толщины.
Шаг 4. Затем крепятся элементы управления и подъемный механизм. Проверяется точность всех измерений.
Перед началом монтажных работ следует ознакомиться с инструкцией производителя. Многие фирмы (такие как «Алютех», «Хормане» или «Дорхан) пошагово описывают установку конструкции. Особенности монтажных работ могут отличаться в зависимости от производителя, но в целом это несложная процедура.
Монтаж полотна
Шаг 5. По окончании установки панелей фиксируются дополнительные элементы (замок, петли и ручки)
Замку следует уделить особое внимание – он обязательно должен быть качественным, т. к
предназначен для защиты имущества.
Улавливающее устройство секционных ворот HormannМонтаж дополнительных элементовРучки секционных ворот
Шаг 6. Устанавливаются пружины, которые отвечают за открывание/закрывание ворот. На финальном этапе работы фиксируются ограничители, необходимые для ограничения движения полотна.
ПружинаМеханическая система защиты от обрыва пружиныЭлектропривод воротУстановка автоматикиРазблокировка электропривода изнутри помещения
При должном подходе и правильных расчетах установка ворот занимает максимум один день.
Установка полотна
Этап 3. Подготовка проема
Подготовка проема
Замеры
После замеров и подготовки инструментов заказываются сами ворота. Обычно на изготовление уходит примерно две недели. За это время можно подготовить проем.
Шаг 1. В первую очередь оштукатуриваются стены и потолок (если это не было сделано ранее). Это объясняется достаточно просто: после монтажа воротных направляющих доступ к неподготовленным участкам будет недоступным.
Шаг 2. Проверяется плоскость каждой стены по отношению к соседним.
Подобные конструкции имеют правильную горизонтальную форму, поэтому недопустимы даже малейшие погрешности в строительстве гаража. Конечно, ворота можно поставить и на кривые поверхности (придется потрудиться), но в таком случае прочность крепежей и эстетичность будут под вопросом. Да и в зимнее время будет задувать снег и холодный воздух, что приведет к промерзанию помещения.
Шаг 3. Пристенки и притолока отделываются металлическим уголком.
Замеры и размеры
Секционные ворота называются еще подъемно-секционными. Такое название обусловлено строением и принципом действия. Полотно ворот состоит из отдельных секций, подвижно соединенных между собой. Отсюда в названии слово «секционные». При открывании секции движутся вверх по направляющим, плавно переходя на потолок. В открытом состоянии они удерживаются на потолке. А это — причина, по которой добавляют слово «подъемные» — они поднимаются вверх.
Общее устройство секционных ворот с торсионными пружинами
Секционные ворота состоят из двух частей — полотна и направляющих, по которым полотно движется при открывании/закрывании. Чтобы установка секционных ворот своими руками прошла без проблем, надо тщательно провести замеры проема. В этой части ничего особо сложного нет. Нужна только рулетка, отвес, если есть — лазерный уровень.
С терминологией все понятно, конструкция в общих чертах ясна, теперь более подробно о замерах и подготовке проема, без которых установка секционных ворот обойтись просто не может.
Что и зачем измерять
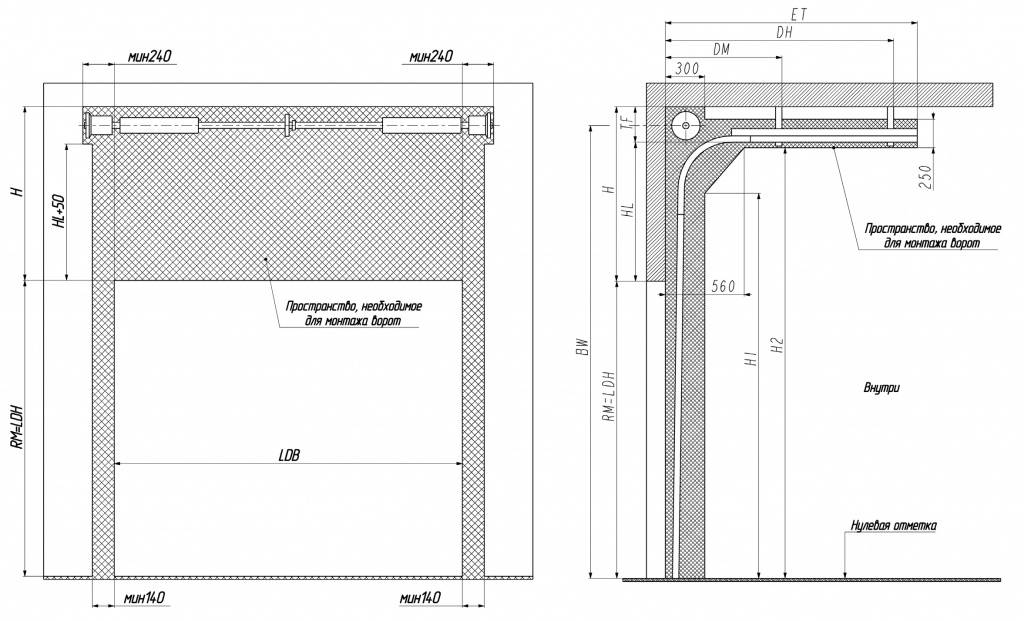
Чтобы заказать подъемно-секционные ворота, надо измерить следующие расстояния (показаны на рисунке):
Высота (H) и ширина (B) проема. Тут, вроде, все понятно, измерения простые. Но, для нормальной работы ворот, плоскости проема должны быть параллельны. Боковые стенки должны быть строго вертикальными, пол и перемычка — строго горизонтальными, без отклонений и провисаний. В вертикальности и горизонтальности можно убедиться при помощи уровня, отвеса. Также можно проконтролировать параметры проема, проведя изменения в нескольких точках. Если данные совпадают до миллиметра, все хорошо. Если нет, придется проем готовить — выравнивать и только после этого измерять и заказывать секционные ворота.
Какие параметры нужны и важны
- Высота притолоки (перемычки). Притолока — это расстояние от верха проема до потолочного перекрытия (h). Оптимальная высота притолоки — 400-600 мм. В этом случае можно установить самую дешевую и, одновременно, самую надежную стандартную систему подъема — стандартную.
- Расстояния от края проема до боковых стен (справа (b2) и слева(b1). Называется еще «заплечики». По бокам от проема монтируются направляющие и расстояние от проема до боковых стен влияет на выбор их конструкции и способа установки.
- Глубина вхождения (ГВ или L) внутрь помещения. Этот параметр важен, хотя часто его опускают. Это расчетная величина, которая зависит от высоты проема и типа устанавливаемой системы подъема. Считают ее по следующим правилам: к высоте проема ворот добавляют определенное число:
- площадь ворот до 8 м2, добавляют 400 мм.
- площадь ворот больше 8 м2, — увеличивают на 450 мм.
- низкий подъем (глубина вхождения) — прибавить надо 550 мм;
высокий подъем — прибавить надо 65 мм и 850 мм.
При стандартном монтаже установка секционных ворот не затрагивает проем
Еще раз обращаем ваше внимание: на последний параметр стоит обратить внимание — глубина помещения, в который устанавливаются секционные ворота, не может быть меньше этой величины
При установке привода
Если же планируется автоматическое открывание и привод обычный, потребуется место еще и для него (на рисунке ниже оно обозначено буквой W).
Пространство внутри помещения должно быть достаточно для монтажа системы направляющих и привода, если используется автоматизированная модификация
Чтобы вы могла ориентироваться, для установки привода на потолке, минимальная глубина помещения должна быть от 3290 мм до 4400 мм (для разных систем подъема). Для менее глубоких помещения есть другой выход — установка осевого привода. Он дороже, но мощнее и место для установки требует только сбоку от проема.
Про выбор высоты подъема читаем в этой статье.
Это все необходимые замеры. Как видите, все несложно
Но при этом очень важно, чтобы проем ворот был ровным, без значительных отклонений. Также важно состояние пола и потолка (в районе установки ворот)
Для потолка важно выровнять ту часть, на которой будут монтироваться потолочные направляющие
Пол должен тоже быть ровным чтобы раму не перекосило. Если есть неровности, придется проем ворот готовить, только потом проводить повторные измерения и заказывать ворота
Для потолка важно выровнять ту часть, на которой будут монтироваться потолочные направляющие. Пол должен тоже быть ровным чтобы раму не перекосило. Если есть неровности, придется проем ворот готовить, только потом проводить повторные измерения и заказывать ворота
Если есть неровности, придется проем ворот готовить, только потом проводить повторные измерения и заказывать ворота.
Технология установки секционных ворот
Когда проведены все подготовительные работы, можно приступать к монтажу:
- Наметить карандашом места закрепления основных элементов. В случае необходимости расширить проем.
- Собрать раму ворот.
- Поднять раму и установить в проем. Основательно закреплять только после регулировки уровня наклона.
- Собрать и скрепить направляющие с помощью болтов.
- Прикрепить их к потолку по нанесенной ранее разметке.
- Собрать полотно, скрепляя секции поочередно. Начинать следует снизу. Каждый элемент снабдить роликами.
- Собрать пружинный механизм, уравновешивающий конструкцию.
- Установить ручки для запуска работы механизма.
- Закрыть все важные узлы специальными кожухами, препятствующими попаданию пыли в механизм.
Если все сделано верно, плотно будет держаться на определенном уровне, не подниматься, и не падать. Для проверки следует его открыть и закрыть несколько раз.
Правильно подобранные секционные ворота будут удобны в использовании, а грамотная установка обеспечит длительный срок службы.
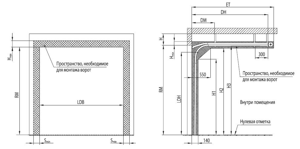
Какие замеры делать
Для точного выбора размера и конструкции секционных ворот необходимо выполнить следующие измерения:
- Высота и ширина проёма на просвет. Размер ворот, указываемый в каталогах и прайс-листах, отражает именно эти параметры, несмотря на то, что реальные габариты конструкции больше.
- Высота притолоки — разница между общей высотой гаража и высотой проёма на просвет (при взгляде изнутри).
- Ширина боковых расстояний, или заплечников, — расстояние от вертикальных краёв проёма до ближайшей стены. В зависимости от конструкции ворот заплечники должны быть не мене 140 или 250 мм.
- Глубина помещения влияет на возможность полного открытия ворот. Данный параметр должен быть больше высоты полотна ворот и габаритов расположения привода.
Что нужно знать о секционных воротах?
Перед тем как перейти к инструкции по сборке и установке гаражных ворот, мы более подробно расскажем о секционных воротах. Понимая принцип работы и особенности их механизма, вы сможете произвести установку без лишних сложностей.
Секционные ворота представляют собой подъемный механизм, который убирает гибкое полотно ворот вверх. Само полотно представляет собой цельную створку, собранную из нескольких панелей (как правило – 4-6), которые соединяются между собой специальными петлями на шарнирах. Когда ворота открываются секции поднимаются и складываются друг на друга. Подъем происходит за счет барабанов и тросов, которые уравновешиваются пружинным механизмом.
Стандартные размеры секционных ворот для гаража:
- высота – 2-6 м;
- длина – до 5 м;
- ширина секции – 35-61 мм.
Если есть возможность выбора, то лучше остановиться на минимально возможных для вас размерах. Ворота небольшого размера работают более стабильно и их легче устанавливать.
Преимущества секционных ворот:
- такой тип ворот позволяет значительно сэкономить место, ведь они не требуют дополнительного пространства ни перед гаражом, ни внутри его;
- секции из sandwich-панелей обладают высокой теплоизоляцией (0,5 Вт/кв.м) и звукоизоляцией (29 Дб);
- секционные ворота обеспечивают надежную и долговечную герметизацию дверного проема (при условии качественной сборки);
- универсальность ворот позволяет устанавливать их в проемах разных размеров, что делает их еще удобнее;
- современные системы секционных ворот изготавливаются из негорючих материалов, что позволяет обеспечить безопасность в гараже;
- на секции ворот можно нанести любой рисунок, что позволяет им вписаться в любой дизайн;
- секционные ворота имеют довольно долгий гарантийный срок – до 10 лет;
- для проведения ремонта достаточно будет заменить поврежденную секцию.
Недостатков у секционных ворот гораздо меньше, чем достоинств. К ним можно отнести относительно высокую стоимость и необходимость в перманентном обслуживании систем.
Многие автолюбители изготавливают секционные ворота своими руками. Это довольно трудоемкий процесс, требующий специальных материалов и навыков, так как самостоятельно спроектировать и создать систему таких ворот непросто. Довольно часто в попытках сэкономить, рукодельники только усложняют себе жизнь, ведь из-за несовершенства и сложности конструкций, такие самодельные ворота могут обойтись только дороже и работать нестабильно. Поэтому лучше довериться проверенным системам и купить уже готовые ворота, которые останется только установить.
Материалы для изготовления конструкции
Сэндвич панели хорошо удерживают тепло в помещении
Материалы выбирают в соответствии с механизмом открывания и типом ворот. Если дверь складывается из сэндвич-панелей, их стыкуют так, чтобы не завальцовывать одну с другой для исключения промерзания на соединениях. Сэндвич-панель — это соединенные стальные листы, между которыми укреплен теплоизолятор в виде вспененного пенополиуретана.
Толщина элементов колеблется от 9 до 45 мм. Выпускают одинарные плиты без утепляющей прокладки, но они не пользуются популярностью. Сэндвич-панели изготавливают с рисунком, имитирующим гофру, филенку, микроволну; с текстурой, напоминающей древесину вишни, дуба, березы, мрамор, апельсиновую корку.
Для панорамных полотен используют алюминиевые профили со вставками из сплошного поликарбоната с повышенными противоударными характеристиками. В подъемных секционных воротах в гараж панорамные плиты сочетают с установкой сэндвич-плит. Алюминиевый прокат и заполнение можно покрасить в разные цвета в соответствии с каталогом RAL.
Проем имеет значение
Первым этапом при заказе секционных ворот станет подготовка проема для них, только зная точные мерки, можно быть уверенным, что ворота подойдут лучшим образом и установятся без проблем. Если же будут допущены какие-то ошибки или неточности, то ворота не будут функционировать должным образом, и могут выйти из строя гораздо быстрее заявленного срока.
Размеры проема под секционные ворота включают такие замеры:
- Высота проема;
- Высота притолоки (перемычка над проемом);
- Ширина проема;
- Ширина левого и правого бокового пространства.
При подготовке проема для секционных ворот важно учитывать все типы замеров
Важно, чтобы высота перемычки составляла минимум 21-25 см – это значение, на которое рассчитан стандартный тип установки. Больше можно, а вот если меньше, то придется использовать низкую установку
Специально под малую высоту перемычки производятся секционные ворота, собранные на пружинах растяжения. Они предусматривают установку при минимальной высоте в 10 сантиметров. Стоимость изготовления ворот с нестандартной высотой установки всегда дороже.
Требования к ширине бокового пространства немного проще – не менее 12 см, а лучше – 15. Выполнив измерения стены, в которую будет выполняться установка, и убедившись, что они соответствуют требованиям, можно приступать к подготовке проема для секционных ворот.
Для установки дополнительного оборудования: цепных редукторов или осевых приводов, потребуется боковое расстояние от 24 см.
Общие требования к помещению
Хорошо, если стены кирпичные, из бетонных панелей или массива дерева – они ровные и лежат в одной плоскости, а это обязательное требование к проему под секционные ворота. Крепления в такой стене будет держаться очень надежно. Для остальных материалов потребуется укрепление металлическими уголками.
Случается, что ремонт в помещении еще не закончен, а ворота уже заказаны. Если полы еще не залиты, то лучше не спешить. Их точная высота поможет заказать ворота максимально точного размера, в противном случае возникнут проблемы с монтажом направляющих. Как вариант – можно добавить страховочную погрешность около 1 см.
Несущую функцию выполняет потолок и поперечная перемычка над проемом, поэтому легкая конструкция потолка не подойдет для секционных ворот. Его глубина должна быть больше высоты ворот:
- 0.5 м для механических ворот;
- 1 м для ворот с электроприводом.
Для секционных ворот с электроприводами обязательно предусматривается розетка для подключения к сети питания. Кабель должен отвечать требованиям производителя ворот, а разводку нужно доверять только специалисту.
Потолки из литых бетонных плит могут иметь неровности. В таком случае, высотой помещения считается минимальное значение расстояния от потолка до пола. По такому же принципу рассчитывают размеры проема под секционные ворота, если на потолке есть коммуникации, которые невозможно перенести, балки перекрытия или скосы.
Если притолока подходит под установку секционных ворот, но неравномерна по высоте, то ее выравнивают доступным способом: срезка болгаркой, закладка брусом, штукатурка.
Обобщив требования, можно вывести составляющие подготовки, чтобы установка была быстрой и качественной:
- Соблюдение требований по высоте и ширине;
- Прочные и ровные стены из кирпича или бетона;
- Предварительная корректировка размеров проема с отделочными работами;
- Заказ с учетом точной высоты пола.
Этап 5. Проверка
Главным показателем правильности монтажа является наличие или отсутствие просвета при опущенном полотне. В таком случае уплотнители будут исправно выполнять свои функции по герметизации и защите гаража от попадания атмосферных осадков. Стоит отметить, что снаружи уплотнители должны быть незаметными. Если их видно, то замеры были произведены неправильно.
Ворота
Далее осматривается нижняя панель. Зафиксированный снизу уплотнитель должен максимально плотно прилегать к полу. Если обнаружен зазор, конструкция проверяется по уровню. Для устранения дефекта не в уровне регулируется положение направляющих.
Последней проверяется балансировка (балансировочные пружины). Они могут располагаться по бокам профилей или же на торсионной балке – все зависит от площади полотна. Если поднять ворота на 1,5 метра, то пружины должны быть на месте, не опускаясь и не поднимаясь.
Достоинства
Изделия имеют ряд преимуществ:
– экономия пространства возле дверного проема гаражного помещения;
– имеется большая палитра цветов и возможность нанесения рисунка;
– монтаж секционных ворот производится оперативно, но требует особых навыков;
– защита от несанкционированного проникновения;
– поддержание комфортного температурного режима;
– удобное управление: открыть или закрыть ворота можно одним нажатием кнопки на дистанционном пульте управления, не покидая при этом автомобиль.
– запорное устройство, которое блокирует движущиеся элементы конструкции во избежание травматизма и защемления посторонних предметов;
– огнестойкость и надежность.
По перечисленным преимуществам, становится понятно, что автоматические секционные ворота намного лучше, практичней и надежней, чем обыкновенные металлические. Современные технологии предоставляют возможность управлять автоматическими гаражными воротами более комфортно и безопасно. Мы осуществляем продажу, доставку и установку автоматических гаражных ворот в Москве и Московкой области.
Перечень необходимых инструментов
Для установки ворот секционного типа требуются не только умения с навыками, но и строительные инструменты. Монтажные работы проводятся при помощи специальных инструментов, к которым относят:
- Строительный уровень. Незаменимая вещь, особенно если ворота устанавливаются в большой проем, ширина которого больше шести метров. Специалисты советуют пользоваться изделиями лазерного типа, так как они исключают любую погрешность.
- Электрическая дрель. Ею пользуются, чтобы прикреплять отдельные элементы к дверному проему.
- Перфоратор. Инструмент часто сравнивают с дрелью, так как он тоже позволяет просверливать отверстия. Однако перфоратор отличается от электродрели своей мощностью, которая позволяет ему работать с плотными бетонными поверхностями.
- Рулетка. Этот измерительный инструмент обязательно используется при проведении расчета размеров. Для выполнения работ пользуются обычными или улучшенными лазерными рулетками.
- Болгарка. Иногда габариты ворот не соответствуют дверному проему и приходится самостоятельно подгонять размеры. Для этого часто применяют болгарку, которая без проблем разрезает металлические изделия любой плотности.
- Сверла. При использовании электродрели обязательно понадобятся сверла, с помощью которых просверливаются отверстия в металлических изделиях. Для работы с железными конструкциями пользуются сверлами по металлу.
Подготовка к монтажу
Монтажные работы конструкции представленной фирмы должны осуществляться в тех гаражных помещениях, где проем подходит под принятые критерии:
- проем и стены должны быть кирпичными, металлическими, бетонными или выполненными из шлака;
- несущие сооружения должны отличаться повышенной прочностью и жесткостью. В дальнейшем на них будет оказываться нагрузка;
- стороны по бокам должны иметь строго вертикальное положение;
- потолок должен быть ровным.

Для установочных работ потребуется:
- перфоратор;
- дрель;
- ключи;
- молоток;
- рулетка, строительный уровень;
- ножницы, режущие металл;
- сверла и бур для металла;
- отвертки.





































