Фундамент под гараж из пеноблоков своими руками
Построить фундамент для гаража из пеноблоков самостоятельно может быть непростой задачей для новичка в этом деле. Но если следовать инструкциям и рекомендациям опытных строителей, то эта задача окажется совсем несложной.
Несмотря на то что существует несколько видов фундамента наиболее популярным для небольших построек был и остается ленточный фундамент. Поэтому именно о нем мы и поговорим ниже.
Видео:
1. Проектирование
Любое строительство начинается именно с планирования и создания проекта, гараж не исключение. Без четко продуманного систематизированного плана действий нет никакого смысла начинать строительство. Как раз на этапе планирования выбирается вид фундамента, а значит необходимо учитывать как раз те факторы, которые перечислены выше. Проект должен представлять собой не только план фундамента, но и всего строения. Так проще добиться точности и правильно рассчитать количество материалов.
Проект гаража можно разработать с помощью компьютерной программы. В ней вы сможете не только создать наглядную модель постройки, но и произвести расчет необходимых материалов.

2. Подготовка
Не стоит недооценивать важность подготовительных работ. Подготовка к возведению конструкции включает в себя следующие мероприятия:
- Снимается несколько сантиметров почвы и выравнивается площадка на которой будет происходить строительство.
- По углам будущей постройки вбиваются колышки.
- Между колышками натягивается веревка (строительная или капроновая). Угол между нитями должен составлять строго 90°. Если вы делаете это впервые, возможно выйдет не с первого раза, но нужно постараться и добиться идеального значения.
3. Земельные работы и заливка
После подготовительных работ наступает наиболее важная и ответственная часть: непосредственно процесс закладки фундамента. Для того чтоб было более понятно, мы по пунктам расскажем о каждом действии.
- По периметру будущей постройки, ориентируясь на натянутые нитки, выкапывается траншея нужной ширины и глубины (какие размеры наиболее подойдут выясняется еще на этапе строительства). Наиболее часто используются следующие размеры: глубина – 50-80 см, ширина – 40-50 см (ширина пеноблоков плюс 15 см).
- Укладывается песочно-гравийная подушка. Для этого земля в траншее утрамбовывается и сверху насыпается 10-15 см песка и 7-10 см щебня.
- Производится монтаж опалубки. Как правило, опалубка делается из подручных материалов: дерево, металл и пр.
- Следом производится армирование фундамента – укладывается арматурный каркас. Монтируется он из прутьев арматуры диаметром 14-16 мм, для связки подойдут прутья 8-10 мм. Такой каркас укладывается на песочно-гравийную подушку.
- После укладки арматуры можно готовить бетонную смесь. Для нее понадобятся: песок, вода, цементная смесь. Будьте внимательны, в некоторые магазинные смеси уже входит песок и их нужно только развести. Замешивать компоненты можно как в стационарной бетономешалке, так и вручную. Но учитывая то, что для фундамента нужно довольно большое количество цемента, то лучше обзавестись небольшой бетономешалкой, как альтернативный вариант – взять в прокат на время работ.
- Заключительным этапом является заливка бетонной смеси в траншею. Раствор должен быть залит равномерно, чтоб при возведении стен не возникало потом сложностей. После заливки следует оставить фундамент на несколько дней до полного высыхания. Только после этого можно разбирать опалубку и приступать к дальнейшим строительным работам.
Видео:
Ленточный фундамент – это наиболее распространенный тип фундамента под гараж из пеноблоков. Он довольно прочный и выдерживает нагрузки небольшого технического помещения. К тому же он легко закладывается своими руками. Именно возможность самостоятельной постройки довольно часто является решающим фактором для многих гаражников. Ведь при строительстве своими руками есть возможность не только сэкономить средства, но и сделать все на совесть и в соответствии со своими пожеланиями и планами.
Этапы устройства фундамента для гаража
Перед началом строительных работ стоит четко определить алгоритм необходимых действий. Основные этапы:
- Формирование проекта. Проект необходим для того, чтобы примерно знать внешний вид будущей постройки и количество необходимых действий.
- Разметка на местности. Этот этап необходим для того чтобы перенести на местность все те параметры, которые были указаны в проекте. Для проведения подобных работ вам придется выбрать точку отсчета – будущий угол постройки. После этого при помощи специальных строительных приспособлений или же обычных колышков определить размер и местоположение гаража. Между колышками нужно натянуть небольшой шнур.
- Работы в земле. Довольно часто подобные работы проводят вручную. Однако, если есть необходимость глубокой закладки фундамента, то не обойтись без использования экскаватора. Во время проведения таких работ формируется траншея необходимая для фундамента. Дно этой траншеи должно быть обязательно уплотнено песком и щебнем. Ее стенки должны быть вертикальными и ровными.
- Закладка фундамента. В подготовленную ранее траншею необходимо установить опалубку. Это позволит выровнять и ровно расположить стены. Кроме того, разместить в траншее прочную металлическую арматуру. Это позволит повысить прочность конструкции. Далее траншею с установленной опалубкой и арматурой нужно залить бетоном (при установке ленточного фундамента).
Подводя итог, можно сказать, что сформировать фундамент для гаража своими руками несложно. Для этого нужно знать только лишь основные аспекты его постройки. В первую очередь необходимо подобрать тип основы. Этот выбор стоит делать на основании учета таких факторов: вес конструкции, тип почвы, габариты конструкции, уровень прохождения грунтовых вод. Далее стоит определить необходимую глубину закладки.
При выборе этого параметра нужно ориентироваться на уровень промерзания почвы и глубину прохождения грунтовых вод. Ширина фундамента зависит от толщины стенок конструкции и типа грунта. Материал для основы стоит выбирать с учетом климатических особенностей места постройки.
Зная эти нехитрые правила постройки фундамента, вы довольно просто и быстро сможете возвести прочное основание. Построить фундамент самому можно довольно просто, при этом вы сможете сэкономить достаточно большое количество средств.
Сколько стоит устройство простого ленточного фундамента
Во сколько обойдется устройство обычного ленточного фундамента, если земляные и бетонные работы выполнять самостоятельно? Средняя цена, которая учитывает гидроизоляцию и утепление – до пяти тысяч рублей.
На чем не стоит экономить:
- приобретайте готовый наливной бетон с присадками. Переплата небольшая, а прочность и надежность смеси гарантирована;
- не экономьте на гидроизоляции и утеплении, экструдированный пеноплекс – недорогой материал.
Выбирая тип фундамента, рассчитайте все затраты. В некоторых случаях простая бетонная лента с утеплением и гидроизоляцией обойдется дороже, чем быстрая установка надежных винтовых свай.
Стандартная упаковка пеноблоков — по 30 или 40 штук на поддоне
Современные технологические линии позволяют выпускать блоки с высокой геометрической точностью – погрешность в размерах у качественной продукции не должна превышать 1 – 2 мм.
Некоторые разновидности пеноблоков снабжены на торцах замковой пазо-гребневой частью. Такой материал, безусловно, дороже, но процесс кладки значительно упрощается.
По технологическому предназначению пенобетонные блоки разделены на три категории:
- Термоизоляционный, марки D400 – D500 (число после буквы D обозначает плотность материала – кг/м³). Класс по прочности на сжатие невысок, а по морозостойкости – вообще не нормируется, так как для открытых работ такой материал не применяют, и для строительства гаража он не подойдет.
- Конструкционно-термоизоляционный пенобетон имеет значительно большую универсальность. Его марка по плотности – от D600 до D1000, по прочности – от М25 до М100 (число – способность выдержать механическую нагрузку в кг/см²), а класс морозоустойчивости 0 от F15 до F75 (количество гарантированных циклов глубокого промерзания и оттаивания безо всяких потерь прочностных качеств). При этом уровень его теплопроводности невелик. Так, один из самых применяемых в частном строительстве пенобетон D800 имеет показатель теплопроводности всего 0,18 Ккал/м³×ºС.
- Конструкционный пенобетон применяют исключительно для возведения элементов строения, так как термоизоляционные качества его уже не столь хороши. Тем не менее, и они превосходят, например, обычный кирпич практически вдвое. Плотность конструкционных блоков составляет 1100 – 1200 кг/м³, марка прочности доходит до М150 ÷ М170. Если термоизоляция стен не является определяющим фактором, то такой вид блоков отлично подойдет для возведения гаража.
Основные преимущества строительства я гаража из пеноблоков:
- Невысокая плотность материала значительно облегчает саму конструкцию гаража. Можно обойтись неглубоким ленточным фундаментом.
- Блоки удобен в работе из-за небольшой массы – не требуется подъемной техники или чрезмерных физических усилий. Вместе с тем, крупные их габариты ускоряют процесс возведения стен.
Информация по назначению калькулятора
Онлайн калькулятор газобетоных блоков предназначен для выполнения расчетов строительных материалов необходимых для постройки стен домов, гаражей, хозяйственных и других помещений. В расчетах могут быть учтены размеры фронтонов постройки, дверные и оконные проемы, а так же сопутствующие материалы, такие как строительный раствор и кладочная сетка
Будьте внимательны при заполнении данных, обращайте особое внимание на единицы измерения
Г азобетонные блоки являются одним из видов ячеистых бетонов, с равномерно распределенными по всему объему воздушными порами. Чем равномернее распределены такие поры, тем выше качество самого бетона.
П роизводство газобетона в заводских условиях является достаточно сложным процессом. Помимо цемента и песка при производстве используются химические газообразовательные добавки, количество которых необходимо рассчитать с очень высокой точностью. После того как все компоненты смешены, происходит заливка целого массива газобетона в специальные формы, в которых он увеличивается в объеме за счет выделения газов.
Г лавной особенность производства ячеистых бетонов является твердение залитого бетона под давлением, в специальных автоклавных камерах. Это необходимо для того, что бы воздушные поры были распределены равномерно по всему объему. Производство качественного газобетона без таких камер невозможно. После набора необходимой прочности весь массив разрезают на блоки необходимых размеров.
Т ак же как и другие виды блоков, газобетонные разделяют по плотности на:
- конструкционные — для возведения несущих стен
- конструкционно-теплоизоляционные — для возведения несущих стен малоэтажных построек
- теплоизоляционные — для возведения самонесущих стен
Б лагодаря своим характеристикам, таким как малый вес, хорошая теплоизоляция, легкость механической обработки, газобетонные блоки являются очень популярным строительным материалом, и продолжают стремительно набирать ее. Но не стоит забывать, что хорошая теплоизоляция данного материала достигается только при соблюдении всех правил строительства из газобетонных блоков, таких как кладка на специальный кладочный клей, дополнительная защита от осадков, хорошая гидро- и пароизоляция, а так же правильный расчет необходимой толщины стены, в зависимости от погодных условий каждого конкретного региона.
К минусам данного материала можно отнести:
- Высокая хрупкость
- Необходимость использования специальных приспособлений для креплений к стенам навесных предметов
- Высокое водопоглощение, вследствии чего увеличение заявленной теплопроводности
- Сильная зависимость теплоизоляционных характеристик от прочности блоков
- Использование относительных характеристик в рекламных целях
Д алее представлен полный список выполняемых расчетов с кратким описанием каждого пункта. Если вы не нашли ответа на свой вопрос, вы можете связаться с нами по обратной связи находящейся в правом блоке.
Онлайн калькулятор расчета газобетонных блоков предназначен для определения необходимого количества газобетонных блоков и дополнительных материалов для строительства дома. Так же при онлайн расчете газобетонных блоков вы можете учесть размеры фронтонов, оконных и дверных проемов. Правильно проведенные расчеты позволят избежать лишних расходов на закупку излишних стройматериалов и избежать проблем с их нехваткой в ходе строительства дома.
Пошаговая инструкция: как построить фундамент ленточного типа
Рекомендуемая схема действий:
1. Оценка состояния грунта, выбор типа основания.
2. Подготовка простейшего чертежа, расчет и закупка стройматериалов с учетом длины, ширины и глубины заложения ленты, расчистка участка.
3. Разметка постройки: с обязательной проверкой углов и отклонений по диагонали (не более 20-30 мм). Для ограничения внешнего и внутреннего периметров будущего гаража из пеноблоков используются веревки и колья.
4. Копка траншеи и смотровой ямы. Для предотвращения осыпания земли в процессе бетонирования предусматривается запас (10 см по бокам).
5. Настил геотекстиля (рекомендуемый, но необязательный этап). Засыпка и трамбовка не менее 10-15 см крупного песка и 10 щебня мелких фракций. Для упрощения процесса песок советуют смачивать.
6. Монтаж опалубки – деревянных щитов или несъемной (пенополистирол, ППСБ, арболит), к преимуществам последней относят дополнительную функцию утепления.

7. Вязка арматурного каркаса с обязательным отступом от краев на 5 см и шагом в 10-20 см. Чтобы фундамент для гаража прослужил долго, используются металлические прутья с сечением не менее 10-12 мм, игнорировать этот этап или заменять сталь пластиком не рекомендуется.
8. Замес или заливка готового бетона. Оптимальные пропорции при применении портландцемента М400 – 1:3:4 (цемент, песок, щебень, соответственно), для снижения доли воды на 1 м 3 раствора советуют добавить 75 г пластификатора. Бетон распределяют послойно, через каждые 20 см его трамбуют. Самому правильно залить фундамент (цельным монолитом в один день, без высыхания промежуточных слоев) сложно, на данном этапе нужны силы как минимум 2 человек.
9. Затвердевание бетона в опалубке (минимум 1 неделя) и еще 3 после снятия. Гидроизоляция фундамента обмазочными и рулонными стройматериалами.
10. Обустройство смотровой ямы (при наличии).

Данная инструкция подходит для возведения фундамента под гараж своими руками из бутового камня или готовых заводских блоков, к преимуществам последнего варианта относят хорошее качество бетона. Изделия укладывают по шахматной схеме с обязательным армированием рядов и смещением швов, для приготовления кладочного раствора используется только свежий цемент высшей марки. Но следует учесть, что монтаж тяжелых фундаментных блоков подразумевает задействование подъемной техники и увеличивает бюджет, из бутового камня сделать основание проще.
Для усиления защиты от влаги и потерь тепла проводится внешняя декоративная отделка выступающей части фундамента плиткой или штукатуркой. Технология исключает прерывание ленты или ростверка, что подразумевает возведения гаража с небольшим уклоном (около 15-25°). Рекомендуемая ширина пандуса – на 30 см больше ворот, длина – 5 м. Используется либо бетон с дополнительным армированием при превышении толщины слоя свыше 50 мм, либо асфальт. При выборе раствора залить пандус советуют в один прием, после затвердевания неровности снимаются шлифовальной машиной, для исключения скольжения шин поверхность покрывается битумными составами или сверху закладываются металлические полоски.

Советы, нюансы технологии
Существуют способы уплотнения грунта и усиления защиты основания гаража из шлакоблока от морозного пучения, в частности, недопущения образования замерзания льда вокруг ленточного монолита. К таким относят:
- Укладку дренажных труб по периметру фундамента: на расстоянии около 50 см от стен и уровня земли, обмотанных геотекстилем, с обязательным незначительным уклоном.
- Использование утепляющей несъемной опалубки (способ, рекомендуемый в первую очередь для пристраиваемых гаражей или рассчитанных на постоянное пребывание внутри).
- Увеличение площади опоры основания. В этом случае необходимо сделать более широкую и глубокую траншею и залить ее дно тощим бетоном. Полученная стяжка снизит нагрузку.
- Усиление ленточного монолита свайными опорами при строительстве гаража на склоне или неровных участках.
- Утепление вертикальных стен конструкции пенополистиролом.
- Обустройство отмостки, засыпка полученного фундамента не выбранным ранее грунтом, а смесью песка и щебня.
Вышеперечисленные способы не входят в стандартную схему действий при возведении фундамента гаража из пеноблоков своими руками и в той или иной степени увеличивают затраты, но они помогают снизить нагрузки и продлить срок службы конструкции. Крайней мерой считается полная замена почвы под основанием, ее используют при строительстве на торфяниках
К кладке стеновых блоков приступают не ранее, чем через месяц, важно рассчитать сроки правильно
Проекты
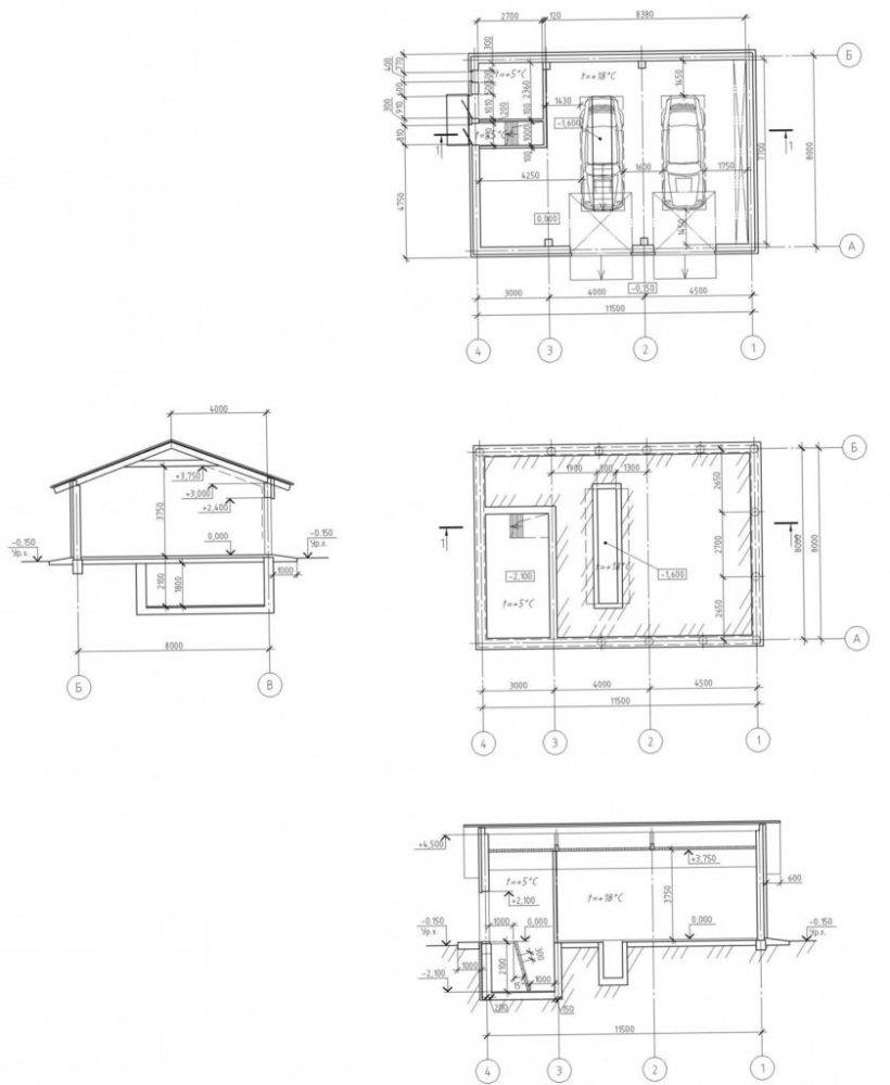
Как только было принято решение о строительстве гаража, первое, о чем нужно задуматься, это создание проекта. Этот вид работ можно сделать самостоятельно или воспользоваться услугами специалиста. В зависимости от наличия территории можно планировать размер будущей постройки и прилегающие к ней строения, если в них есть необходимость.
Если в семье два водителя и две машины, то и гараж возводится соответственный. Постройка на 2 машины должна быть просторной, чтобы в ней под одной крышей свободно умещались автомобили и было место для хранения инвентаря, шин и прочих мелочей. Когда же места катастрофически не хватает и на одну машину, можно сделать двухэтажный гараж, где на первом этаже будет стоять машина, а на втором разместится полноценная мастерская. Со вторым этажом появляется возможность оборудовать не только рабочую зону, но и место для хобби, у кого-то это музыка, у кого-то коллекционирование и прочее.
Наиболее удачными считаются размеры гаража 6 на 4, где получается и машину поставить, и дополнить постройку разнообразными хозяйственными мелочами и укомплектовать рабочей зоной. Если возникает желание сделать не только комфортный гараж, но и красивый, его можно укомплектовать мансардой, на которой можно производить часть работ или иметь возможность передохнуть после ремонтных работ. Любителям попариться можно организовать соответствующую пристройку
Баня может быть частью гаража, но в этом случае важно максимально изолировать оба помещения, чтобы вода и влага из одного не попадала во второе
Запланировав смотровую яму, важно, чтобы ее глубина была выдержана в рамках положенных для нее норм и составляла не более двух метров. Планируя строительство гаража, необходимо рассчитать количество материалов, которые будут нужны в работе. Если длина постройки будет составлять шесть метров, то для одного ряда потребуется 10 пеноблоков
Также высчитывается и количество их в высоту
Если длина постройки будет составлять шесть метров, то для одного ряда потребуется 10 пеноблоков. Также высчитывается и количество их в высоту.
Как только вопрос со стенами будет решен, можно переходить к крыше. Она может быть односкатной, строиться с уклоном в одну сторону или иметь стандартный вид крыши жилого дома, но невысоко поднятой от потолка гаража
Стоит уделить внимание и материалу, которым она будет накрываться. Для этого можно использовать шифер, черепицу, металлочерепицу или профнастил. У каждого из вышеуказанных вариантов есть свои преимущества и недостатки, но первое, на что стоит обращать внимание – это наличие каких-либо материалов, при помощи которых можно выполнить ряд работ
Выполнение основы под гараж
При выборе строительного материала в виде газобетона, следует знать, что эти элементы сильно впитывают влагу и подвержены быстрому разрушению. Поэтому стены гаража из газобетона еще можно выкладывать, а вот фундаментную основу лучше делать классическим вариантом, то есть ленточным видом.
Так как полученная конструкция строения будет иметь небольшой вес и не сильно большую нагрузку на почву, рыть глубокие траншеи не нужно. Вполне подойдет мелко заглубленное ленточное основание, которое по силам рассчитать и создать своими руками.
Время, для того чтобы сделать фундамент под гараж из пеноблоков, уйдет немного. Основной период ожидания придется на затвердение раствора после окончательной заливки.
Этапы работ выглядят следующим образом:
- расчеты нагрузки постройки из газобетона на грунт;
- разметки будущих траншей;
- выполнение ленты под фундамент;
- гидроизоляция, армирование и установка опалубочных щитов;
- заливка бетоном подготовленной основы здания.
Все работы, кроме первичного расчета основного проекта под застройку можно выполнять своими руками. А вот рассчитать нагрузку, когда для постройки применяются легкие материалы, стоит доверить специалистам.
Обустройство монолитного основания
Существует также и другое решение, которому вы можете отдать предпочтение при возведении фундамента под гараж. Оно заключается в установке монолитной плиты в качестве основания. Рассматриваемый материал отличается своей способностью к нагрузкам, которые будут оказывать стены, выполненные из пеноблока. Стоит также отметить и то, что разметить фундамент такого типа можно в качестве пола гаража. В таком случае, бетонная плита позволяет с лёгкостью её отделывать.
К применению доступны не только пеноблочные материалы, но и другие блоки. Так, к примеру, могут использоваться блоки, отличающиеся наличием ячеек, большей пористостью. Подобного рода материалы относятся к группе газобетонных. Этот вариант также является допустимым.
Гараж, выполняемый из пеноблоков, в ряде случаев нуждается в увеличении показателей жёсткости фундаментного основания. Это актуально также и тогда, когда имеет место невысокая несущая способность почвы. С целью осуществления работ, направленных на увеличение показателей жёсткости, необходимо прибегнуть к использованию рёбер монолитного типа, которые должны быть заложены в фундамент.
Глубина фундамента для гаража
Какой должна быть глубина фундамента под гараж? Глубина основания фундамента будет напрямую зависеть от показателя высоты промерзания и пролегания подземных вод. Если промерзание почвы не очень неглубоко, а грунтовые воды проходят далеко, то можно соорудить и фундамент с глубиной около 0,4 м плюс еще столько же под подушку из песка и гравия. Данный фундамент идеально подходит для песчаных почв, которые не подвергаются процессам пучения.
Глубину фундамента на этих почвах лучше всего углублять до 80 см. Фундамент на глинистых, суглинистых и болотистых почвах и при достаточно глубоком прохождении вод лучше всего углублять до 1-1,5 метров. Это должно предотвратить размывание, сжатие и разжатие грунта, а значит, и разрушение всего фундамента.
Для определения точной глубины фундамента, необходимо узнать глубину замерзания почв в вашем регионе и приплюсовать к ней примерно 20%. Например, если промерзание почвы будет один метр, то глубина фундамента равняется 1,2 метра.


































