Собираем каркасную основу
Нарезанные и подготовленные направляющие необходимо закрепить в рамках дверного проема. Расстояние между стенкой и профилями прокладывается лента для уплотнения.
















Последовательность действий для сборки каркаса:
- Вставляется по центру с обеих сторон коротенькая стойка, которую крепят «металл — металл» саморезами;
- Крепятся дуги, так чтобы они находились в одной плоскости;
- Проводится крепление еще дополнительных стоек. Всего их должно быть четыре. Края их подрезаются по направлению дуги;
- Надо вырезать и закрепить планки из стоечного профиля. Они будут поперечными связующими для основных дуг.

Как рассчитать
Когда стоит задача самостоятельно изготовить арку, после того, как выбрана форма и размер, мастеру нужно предварительно произвести расчет будущего изделия, чтобы определить точные размеры монтируемых деталей. Не стоит пугаться, так как расчеты данной конструкции основаны на простых школьных формулах. При проведении расчетов рекомендуется параллельно расчерчивать эскиз будущего изделия на миллиметровке, после чего проводят масштабирование проекта на заданные размеры изделия. В качестве трафаретов можно применить толстый картон или профильный лист из ДВП. Приложив шаблон к поверхности возведения изогнутого свода, можно более реально оценить верность ранее выполненных вычислений и при необходимости вовремя скорректировать его.

Основные 3 параметра, которые должны быть известны мастеру – это ширина проёма, высота будущей арки и глубина стены. Есть два основных метода расчета: эмпирический и математический. Мастер сам решает, какой из них будет для него более удобным. Расчет и чертеж окружности арки необходимо проводить на бумаге в масштабе, на 30% меньше от реального.

При эмпирическом расчёте необходимо для начала замерить проём двери и перенести его на лист бумаги. Проводят ось симметрии дверного проёма. После берут циркуль, ставят его ножку на точку оси и делают несколько разных окружностей. Выбирают наиболее подходящую, а оставшиеся удаляют с помощью резинки.
При математическом расчёте радиуса арки применяют теорему Пифагора:
R= L2 + (R2 – H2)
R= L2 + (R – H) 2


Преобразуя формулу, получают следующий вид:
R2 = L2 + R2 – 2HR + H2
Вычитая R получают:
L2 + H2 – 2HR = 0

После последующего преобразования получают:
2RH = L2 + H2
Радиус R в итоге:
R = (L2 + H2) / 2H



Ввиду того, что изготавливаемая арка будет включать в себя множество фрагментов (с целью их формирования следует брать доску с заданными габаритами), необходимо предварительно сделать расчет размеров элемента, сделанного из доски с выбранными габаритами. Расчет проводится от обратного. Нужно рассчитать максимум длины детали, которая будет сделана из имеющейся доски с определенной шириной, учитывая уже известный радиус. Пользуясь предыдущими формулами, где все соотношения уже известны, нужно вывести следующее равенство:
L2 = 2RH – H2

Разработка проекта арки
Пошаговая конструкция, как сделать арку из гипсокартона своими руками, в первую очередь рекомендует проект выбирать, исходя из особенностей помещений, между которыми она устанавливается. Например, если арку планируется смонтировать на входе в кухню из коридора, то следует учитывать, насколько выбранная форма арки будет сочетаться еще и со стилем отделки коридора. Также при разработке проекта не стоит забывать и о размерах дверного проема. Если по высоте он меньше 2 м, то дверная арка еще больше «отхватит» и от без того небольшого пространства. В таком случае нужно устанавливать полноценную арку, а лучше просто закруглить верхние углы в проеме. Арка будет органично смотреться только в том случае, если расстояние между притолокой проема и полом будет больше 2,5 м.
Кроме того, пошаговая инструкция, как сделать арку из гипсокартона, рекомендует во время разработки проекта не только определиться с высотой ее установки, но и рассчитать диаметр, ориентируясь на выбранный стиль.




Удобнее будет нарисовать дверной проем на листе бумаги в нужном масштабе, а затем на основе полученного рисунка вырезать из цельного или склеенного из нескольких кусков картона шаблон арки в натуральную величину. С помощью него не только можно увидеть, как будет выглядеть арка в деле, но также макет пригодится во время изготовления каркаса для гипсокартона.
Как сделать дверной проем аркой из гипсокартона: важные аспекты
Не все хозяева, перед тем как сделать дверной проем аркой из гипсокартона, учитывают важные аспекты данной работы. Так, например, нужно знать, что при установке сводчатой арки использовать в качестве основы дверной проем не получится. Высоту в любом случае необходимо увеличивать, а пропорционально ей следует расширить и сам проем. Существует два варианта: расширить уже имеющийся проем в стене или снести стену и возвести заново новую специальную декоративную стену из гипсокартона.
Если все-таки приходится расширять проем, то для начала нужно разметить его границы вокруг имеющегося проема. Ширина его должна составлять на 3–4 см больше предполагаемой ширины будущей арки. Высота проема должна быть равна высоте в верхней точке арки плюс также 3–4 см.
Сделав разметку, перфоратором нужно пробить по ней в стене сквозные отверстия на расстоянии около 10 см. Далее расширить проем можно с помощью кувалды или используя специальную дисковую пилу.
Основание для боковых панелей необходимо вырезать из гипсокартона, установив его на П-образный профиль. Затем можно переходить к монтажу свода.
Что касается создания декоративной стены из гипсокартона, то она монтируется следующим образом. На несущей стене, к которой будет примыкать стена из гипсокартона, под отвес следует нанести вертикальную разметку – ось торца будущей стены. С помощью прямой планки (например, обрезка профиля) разметку нужно перенести на противолежащую стену. По разметке к стене на дюбели необходимо смонтировать П-образный профиль. К полу от бокового профиля следует прикрутить отрезки профиля длиной, равной ширине будущей стены до проема. Аналогичным образом нужно укрепить профиль на полу и от противолежащей стены. По потолку профиль должен проходить от стены до стены. От профиля на потолке необходимо опустить две рейки к краям отрезков профиля, расположенных на полу. Это будут основания для боковых панелей арки.
Таким образом, получится рама, на которую нужно смонтировать поперечные профили с шагом около 20 см. Это требуется для того, чтобы гипсокартонные листы не проваливались. С двух сторон от проема арки следует смонтировать на каркас листы гипсокартона. Далее можно приступать непосредственно к установке свода арки.
Раздумывая о том, как сделать дверную арку из гипсокартона, лучше посмотреть видео, где подробно описан процесс данной работы и приводятся самые интересные идеи специалистов:
Чистовая обработка арки
После полного высыхания конструкции наступает время ее чистовой обработки. Чтобы убрать неровности и получить округлые выступы, обрабатываем все элементы арки мелкой наждачной бумагой.
Шлифовать арку следует предельно внимательно, чтобы не задеть головки саморезов и не повредить их антикоррозийный слой.
Все стыки замазываем шпаклевкой, одновременно проклеивая их армирующей лентой. Затем шпаклюем все неровности и накладываем перфорированные уголки. Когда шпаклевка высохнет, шлифуем арку мелкозернистой шкуркой, грунтуем, шпаклюем специальным финишным составом, снова шлифуем и все – теперь можно красить арку или оклеивать обоями.
И напоследок видео, как сделать криволинейную перегородку из гипсокартона с аркой, подсветкой и красивыми полочками.
1+
Поделиться ссылкой в соц.сетях:
Добавьте свой комментарий
Наборная арка без профиля
Как делается арка из гипсокартона в дверной проем без профиля? Такое вообще возможно? Да, это реально. И речь не идет о каких-то деревянных брусочках, к которым подшивают ГКЛ. Суть наборного метода заключается в том, что при помощи кусков ГКЛ создается необходимая кривизна в дверном проеме.
В выбранном углу на шпаклевку крепят самый длинный кусок ГКЛ. Потом к нему крепят кусок покороче. Потом еще короче и еще короче и так далее. Для большей надежности в шпаклевку добавляют ПВА и разбавляют водой по необходимости. Чтобы знать, какой длины должны быть куски, их моно раскладывать на столе и смотреть, достигается ли желаемая кривизна. Вот как собрать арку из гипсокартона без помощи профиля. Если нужно лишь немного закруглить углы, то метод идеальный. Для более сложных конструкций он не подойдет.
Под шляпки шурупов нужно будет подложить шайбы, чтобы не прорывался гипсокартон
Чтобы пластины наверняка не отпадали, их периодически прикрепляют саморезами. Таких кусков может быть более десяти на каждый угол. Когда вся конструкция высохнет, то она шпаклюется таким образом, чтобы сгладить все углы от пластин. Теперь вы знаете, как сделать арку из гкл без профиля.
С чего начать
Наиболее распространены арки простых форм — части окружности или овала. Именно они лучше всего подходят для большинства традиционных стилей интерьера, где приветствуются правильные формы и симметричность. К тому же их проще всего сделать своими руками.
1. Классическая округлая арка. 2. Модерн. 3. Романтика. 4. Эллипс. 5. Трапеция. 6. Полуарка
Но вначале надо определиться, достаточна ли будет высота свода. И если для ниши в стене размеры не играют особой роли, то для прохода между комнатами много значит соотношение ширины арки и расстояния от пола до точки сопряжения арки со стеной проёма.
Чем шире проём, в котором формируют арку, тем больше потребуется радиус изгиба, чтобы форма арки была соразмерная
Обычно руководствуются простым соотношением стандартной межкомнатной двери — 80–100 см ширины на 200 см высоты. То есть в плоскость проёма с учётом арки должен быть вписан в «чистом виде» прямоугольник таких размеров. Следуя этому правилу, можно определить, что ширине проёма:
- 100 см соответствует высота нижних точек арки около двух метров;
- 200 см — около 180 см;
- 300 см — около 160 см.
Из этого следует, что если арку делают там, где стояла стандартная межкомнатная дверь, то высоту проёма придётся увеличивать.
Проще всего устроить арку на новом месте при перепланировке, когда заново ставят межкомнатные перегородки. И здесь уже надо помнить о рекомендованном расстоянии от верхней точки арки до потолка — обычно оно равно 40–60 см. Часто высота потолков не позволяет «вписать» арку в соответствии с этим правилом, и эту точку поднимают немного выше. Но и в таком случае не стоит уменьшать просвет до уровня потолка меньше 30 см.
После того как ориентировочные значения для точек сопряжения с проёмом и для высоты свода установлены, арку в проёме можно смоделировать из подручных средств и убедиться, что она соответствует общему замыслу.
Удобно использовать специальный пластиковый уголок для арок, который в конечном счёте будет задействован при отделке проёма
Один из простых способов моделирования — это использование длинной полосы из гибкого материала в качестве лекала, например, пластикового плинтуса с твёрдыми краями. Плинтус прикладывают краями в нижних точках арочного проёма, выгибают на высоту свода, при необходимости изменяют форму свода, регулируя степень изгиба. Отмечают точки сопряжения арки с проёмом и ставят соответствующие метки на плинтусе.
Монтаж арки
Стенки арки крепят саморезами с расстоянием между точками крепления от 15 до 25 см, но не менее трёх точек на каждую сторону. Расстояние от угла до каждой крайней точки крепления должно быть в пределах 5–10 см, а линия крепления должна находиться на удалении в 15–20 мм от края стенки арки.

Если в арке предусмотрена встроенная подстветка, то провода следует проложить заранее, оставить выводы или петли длинной не менее 15 см
После того как закреплены обе стенки, к ним изнутри через гипсокартон прикручивают две полосы арочного профиля для крепления свода. Если арочного профиля нет, то его делают из CD профиля, симметрично вырезая по бокам клинья на расстоянии 4–5 см друг от друга.

Чтобы согнуть дугой полосу заготовки, её перед установкой с двух сторон смачивают губкой. Затем с одной стороны прокатывают игольчатым валиком (другой способ — наколоть шилом по всей поверхности на 1/3 толщины листа) и ещё раз смачивают уже только по перфорированной стороне. Ставят на пол под углом к нему и стене. Когда заготовка начинает гнуться под собственным весом, её прикручивают на место к арочным профилям.
Декорирование межкомнатной арки
Сделать арку из гипсокартона при помощи своих рук – это еще не конец, ведь потребуется облагородить конструкции и придать ей нужно вида, исходя из того в каком дизайне сделана квартира или ремонт в отдельной комнате, коридоре
Декорирование должно быть не только оригинальным и красивым, важно еще, чтобы арка оставалась практичной
Ведь время от времени арка из гипсокартона будет контактировать с человеческими руками, возможно, ногами, а также предметами, что будут переноситься. За счет этого декорация арки может пострадать или испачкаться и к отделке нужно подходить тщательно. Такое устройство как арка из гипсокартона можно задекорировать следующим видом материалов:
- Поклеить обои. Данный способ декорации часто используется для оформления арочного проема и метод относится к стандартным. За счет большого выбора обоев, с разными фактурами, цветами или рисунками, подобное оформление может быть очень оригинальным, эффектным и индивидуальным. Если говорить о практичности, то она будет зависеть от материала, из которого изготовлены обои. К примеру, для арок из гипсокартона лучше всего подойдет виниловое покрытие на флизелиновой основе. Они качественные и будут длительное время на арке, также их можно мыть. Отлично подойдут, если арка выходит в большой зал или арка соединяется часто спальни и коридора. Легче всего будет оформить прямоугольный или квадратный арочный проем.
- Окрашивание. В данном случае лучше использовать водоэмульсионную краску, такой вариант оформления арок из гипсокартона тоже часто используется и считается очень практичным выбором, ведь при необходимости окрасить поверхность можно много раз. Стоит отметить, что для арок из гипсокартона не нужно будет много краски, поэтому покупая ее лучше выбирать более дорогую, но зато качественную. Стоимость материала окупится, но арка будет красивее и надежнее, практичнее. Краска может использовать на любой арке, если она косая, при фигурной арке или с нишами. Кроме того, можно после окрашивания сделать рисунок или роспись по арке, но в этом случае надо не только фантазия, а также художественное мастерство.
- Обшивка тканями. Обшить арку тканью не очень практично, зато красиво, благородно и необычно. В данном случае ткань для арок может быть любой, но метод декорирования нужно подбирать под конкретный интерьер и в зависимости от габарит арки из гипсокартона.
- Оформление камнем. Арочный проем из гипсокартона в коридоре или на кухне часто оформляют камнем. Такой способ очень надежный и красивый, правда, цена камня будет высокой, а процесс декорирования усложняется. Но срок эксплуатации камня не ограничен.
Оформление арок каждый человек выбирает индивидуально, исходя из разных факторов.
Как определиться с выбором конструкции арки?
Перед тем как сделать полуарку, вам нужно определиться с типом конструкции. Гипсокартон позволяет создавать любые криволинейные системы. Именно благодаря своей универсальности данный материал нашел такое широкое применение в оформлении оконных и дверных проемов. Существует два основных типа конструкций, которые вы можете сделать из гипсокартона своими руками:
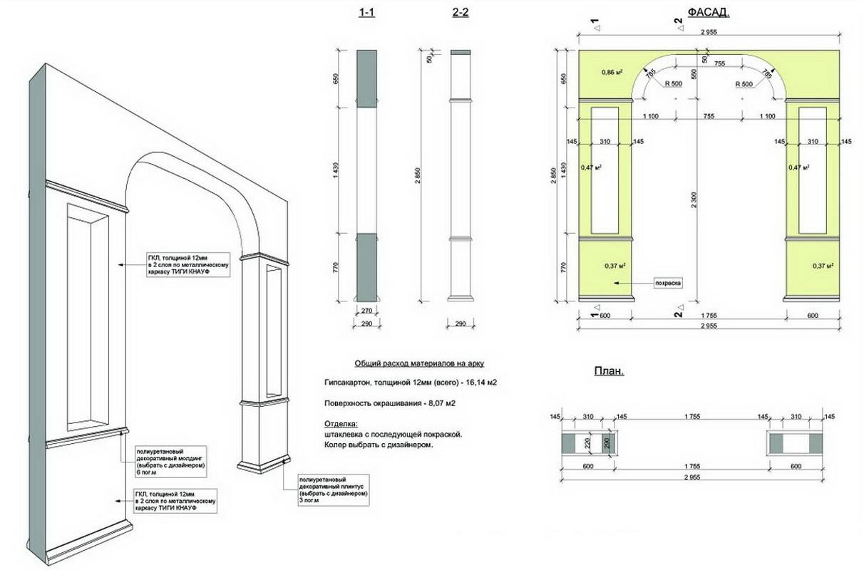
Схема проекта арки из гипсокартона с размерами.
- Конструкции, имеющие постоянный радиус искривления.
- Системы с переменным радиусом кривизны (наиболее популярный вариант — полуэллипс).
Первый тип лучше всего подходит для высоких дверных проемов (порядка 250-270 см). Может быть выполнен в классическом варианте и в стиле модерн. Классическое решение подходит практически для любых комнат. Лучше всего подобные полуарки вписываются в широкие проемы. Модерн более компактен, и лучше всего использовать подобную систему в межкомнатных перегородках.
Полуарка из гипсокартона является наиболее популярным архитектурным решением с переменным радиусом искривления. Арку довольно легко сделать самостоятельно. Она отлично впишется в любой интерьер и подчеркнет его индивидуальность. Многолетний опыт успешного использования является лучшим доказательством практичности таких конструкций.
Статья по теме: Септик своими руками для частного дома: устройство, как сделать правильно, видео
Установка листа гипсокартона
Изготовление арки из гипсокартона на этом этапе требует осторожности и концентрированности. И дело не в том, что тяжело будет закрепить гипсокартон на профилях, именно сейчас и будет происходить формирование дуги
Встречаются советчики, которые утверждают, что ГКЛ можно сразу закрепить, и отмерить нужную дугу. А выпиливание производить, не снимая его, так сказать, на весу. Возможно, в мире существуют такие искусные мастера, но если все работы проводятся самостоятельно, и нет желания, чтобы получилась кривая арка из гипсокартона, то лучше делать все так, как указанно ниже.
Принцип получения ровной дуги таков:
- Отрезают участок ГКЛ, который будет использоваться для формирования арки. Зачастую это прямоугольник, но может быть и квадрат.
- На нем находят середину, ставят отметку. Сразу делят лист наполовину. Отмечают две пересекающихся линии (крест)
- Его закрепляют на возведенном каркасе. Делается это в нескольких местах так, чтобы потом было удобно быстро снять.
- Есть два способа, как сформировать дугу нужного размера: • В середину вкручивают саморез, к нему привязывают нитку с закрепленным карандашом. Делая ее больше или меньше можно регулировать радиус. Но в данном случае – действуют согласно разметке. Итак, отмерив нужное расстояние (оно обуславливается высотой необходимого проема) – чертят дугу. • Второй способ похож на первый. Но вместо веревки используют металлический профиль. Его закрепляют на центральном отрезке, а на его конце устанавливают гвоздик. Получается устройство, которое похоже на циркуль.
- Теперь гипсокартон снимают. По сделанным отметкам выпиливают дугу. Если проем ровный, то второй участок отмеряют по месту. Если нет, то делают это так: • устанавливают выпиленный и целый фрагмент; • с помощью угольника и карандаша переносят кривизну на второй отрезок листа гипсокартона; • его снимают и выпиливают с помощью лобзика дугу.
- Оба фрагмента прикручиваются к возведенному каркасу. Правила тут действуют такие же, как и при возведении гипсокартонных стен: • саморезы нужно закручивать вровень с поверхностью, а не стараться их утопить; • расстояние между ними должно быть не более пятнадцати сантиметров.
- При необходимости проводят выравнивание скругленных участков. Это можно сделать, даже если обе стороны находятся на большом (от 20 см) расстоянии. Для этого прибегают к следующей хитрости: • берут рейку, которая будет больше ширины проема; • к ней прикручивают уровень (это можно сделать скотчем); • теперь рейку прикладывают к двум участкам гипсокартона, места соприкосновения помечают; • именно в участках разметки – прикручивают наждачную бумагу; • все, своеобразный инструмент для равномерного шлифования готов.
Ну что же, можно считать, что самое сложное позади. Уже видны очертания будущей арки.
Можно ли сделать в панельном доме своими руками
Квартира имеет несколько несущих стен. Чтобы сделать перепланировку необходимо обратиться к специалистам, чтобы узнать возможность использования стены. Панельные дома иногда требуют изменения размера проема, но выполнить эту работу сложно, так как придется разрезать железобетонную конструкцию.
Если нельзя полностью удалить стену, а расширить пространство хочется, тогда арка лучший вариант. Подходящим материалом считается гипсокартон. Он надежный, практичный, экономичный.
Чтобы сделать арку в несущей стене надо сначала проделать в ней портал, но оставить для устойчивости небольшой процент нетронутой поверхности. Отверстие выполняется перфоратором, и проход по ширине делается удобным и практичным
Также важно сделать укрепление проема
Виды арок из гипсокартона
Чтобы правильно сделать арку из гипсокартона своими руками, в первую очередь стоит разобраться, какие они вообще бывают.
- «Классик» или круглая. Радиус закругления конструкции равен половине ширины арочного проема. Данный тип арки выгодно использовать в классических интерьерах. Единственным существенным недостатком выделяют то, что она визуально сильно забирает высоту проема.
«Портал» является самым простым и дешевым решением. Такая межкомнатная арка из гипсокартона станет идеальным дополнением классического интерьера или стиля хай — тек. Также уместно устанавливать арку «Портал» в местах образования угла из стен.
- Ажурная арка. Отличительной чертой данной конструкции является наличие сквозных отверстий, которые расположены по линии проема.
Готическая арка. Наивысшая точка такой дверной арки из гипсокартона образуется за счет схождения под небольшим углом двух плоскостей.
- Арка «Романтика». Такая конструкция характеризуется наличием двух слегка закругленных частей и плоским элементом сверху. Преимуществом арки отмечают низкий расход гипсокартона.
- Арка со смещенным центром (ассиметричная). Относится к ряду экономичных конструкций. Ассиметричную арку зачастую используют в современных интерьерах, но при этом она смотрится не скучно и редко когда надоедает. Она может быть образована окружностью небольшого радиуса или вообще иметь только закругленный угол.
- Дизайнерская арка (многоуровневая). Изготовление такого типа арки непременно требует навыков обращения с гипсокартоном и фантазии.
Выбор материала
Несомненно, в создании арочной конструкции можно использовать самые различные материалы. Это могут быть как кирпич или камень, так и дерево, металл или пластик. Однако, недостатком первых является большой вес, а вторые довольно дороги. Наиболее популярным и приемлемым для семейного бюджета вариантом считается монтаж арки из гипсокартона – легкого, экологически чистого и практичного строительного материала.
Основными преимуществами такой конструкции являются простота, надежность и прочность. Ее установка не сопряжена с масштабными работами повышенной «шумности» и большим количеством строительного мусора. Следует отметить невысокую стоимость всех элементов, необходимых при монтаже дверной арки из гипсокартона, а также их широкий ассортимент в любом специализированном магазине.
Итак, возьмем «классическую» (имеющую полукруглый свод) конструкцию из этого материала за основу и расскажем о технологии ее создания.
Проектные работы
Перед тем как своими руками начинать делать дверную арку в доме, нужно провести замеры проема, в котором будет установлена конструкция, а также рассчитать ее размеры и форму.
В первую очередь замеряем внутреннее расстояние между стенами проема (ширину конструкции) и делим его пополам (x). Получившееся значение потребуется нам при изготовлении ровного полукруга дверной гипсокартонной арки. Далее, на свое усмотрение, определяем необходимую высоту «нового» проема и получаем расстояние от его верхней части до самой высокой точки арочной дуги (h).
Эти измерения потребуются нам для определения необходимого количества материала и изготовления составных элементов конструкции. Все расчеты, которые мы произвели, необходимо перенести на бумагу – это существенно облегчит монтажные работы.
Что использовать для необычного декора
Декоративная штукатурка, наверное, второй по популярности и доступности материал для оформления арочных проемов. С ее помощью, немного пофантазировав, вы сможете создать уникальный дизайн арки. Достоинства этого отделочного материала:
- простота применения, шпаклевка просто наносится на стену, не требует особых строительных навыков;
- возможность создания рельефных узоров или текстуры;
- невысокая стоимость.

Каменная отделка в интерьереШтукатурка тоже имеет недостатки:
- сложно отремонтировать отдельный участок, не меняя все оформление арки;
- в связи с рельефной текстурой за декоративной шпаклевкой сложно ухаживать;
- как и обои, декоративная шпаклевка боится лишней влаги.
Если по каким-то причинам предыдущие стройматериалы не подходят, чтобы отделать арку, попробуйте применить натуральный камень. Достоинств у этого отделочного материала множество:
- сочетается с другими строительными материалами, подчеркивая дизайн помещения;
- не боится влажной среды и довольной стоек к повреждениям, не требует ухода;
- долговечен, способен на протяжении длительного времени сохранять парвоначальный внешний вид;
- большое разнообразие текстур и цветовых вариаций.
Недостатки у данного строительного материала тоже есть:
- сложность монтажа, оформить декоративную арку камнем не удастся без знаний в области строительства;
- высокая цена не всегда позволяет использовать этот материал для отделки.

Функциональная перегородка в гостинойДополнительно декорируют гипсокартонную арку с помощью фигурной лепнины, точечных светильников или карнизов. Оформление арки «кирпичиком»:
Как разработать дизайн арки из гипсокартона: фото
Перед тем как начать строительство, не мешает просмотреть, какие арки из гипсокартона монтируют и как выглядит дизайн интерьера на фото.
● Модерн
Кривизна арки меньше, чем у классической. Концы сразу переходят в стены. Высота потолков не принципиально. Хорошо так декорировать широкие пролёты.
Форма — в виде полудуги часто с небольшими колоннами.

● Полуарка
Эффектная, современная, стильная конструкция. Причём хорошо смотрится с отделкой под классические деревянные наличники. Один из углов закругляется.
Часто арки межкомнатные из гипсокартона, как на фото, делаются с нишами и колоннами, встраивают точечную подсветку.
Но независимо от стиля и формы, их объединяет одно требование — арка обязана быть ровной! Халтурную работу не спасёт никакая вычурная форма. Если вы хотите самостоятельно построить арку и привыкли всё делать по линеечке, то воспользуйтесь формулами расчёта кривизны арок.
R = (L² +H²) / 2H
R- радиус окружности, L- половина хорды дуги, Н — высота подъёма
Если арка состоит из нескольких кривых, то для каждой придётся делать отдельные расчёты.
Останется прикинуть, сколько материала нужно. Хотя даже расчёты по формуле могут подвести и проём нужно подравнивать шпатлёвкой. Ведь формулы помогают сделать основу — шаблон конструкции. Довести детали, подогнать их под неровные стены нужно будет вручную. Даже опытные строители делают не по формулам, а ориентируясь на материалы и качество перекрытий.
Работа с дугообразным фрагментом
Арка из гипсокартона своими руками – не получится без этого элемента. Он представляет собой согнутый дугообразно фрагмент, который будет служить «крышей» арочного дверного проема. А также закроет весь внутренний каркас.

Но когда это единичное мероприятие, то можно избежать его покупки, а воспользоваться стандартным материалом. Существуют три способа (основных), которые позволяют согнуть ГКЛ:
- Берут валик (игольчатый) и хорошо им проходятся по нужному отрезку материала. Затем производят смачивание, усердствовать не нужно. Оставляют все на пару часов, после этого можно начинать сгибание ГКЛ для арок.
- Второй способ похож на первый. Но, вместо того чтобы делать отверстия иглами, их делают в виде насечек (ножом). Получаются своеобразные надрезы, которые будут ломаться по мере установки.
- Это самый сложный и долгий способ. Он требует изготовление формы, которая будет повторять очертания нужной дуги. Далее, лист постепенно гнут, понемногу смачивая и придавливая тяжелыми предметами.
Каждый, кто делает арки из гипсокартона – выбирает для себя наиболее приемлемый способ.
Итак, выбирается подходящий способ для сгибания ГКЛ. Далее, делают следующее:
- производится замер ширины и длины дуги;
- отрезается и сгибается нужный отрезок;
- плавными движениями устанавливается дугообразный фрагмент, сразу прикручивается.
Схема монтажа арки из гипсокартона
В принципе, арка своими руками – готова. Теперь можно приступать к отделочным работам.
Монтаж металлического каркаса для арки из гипсокартона
Вырежьте направляющие металлические профили нужной длины и закрепите их на стене. Вам необходимо отрезать два профиля по ширине проема и закрепить их в верхней части. С обеих боков проема также устанавливается по два профиля, но их размер будет зависеть от радиуса вырезанной ранее вами арки из гипсокартонного листа, смотрите фото ниже. Если вы фиксируете рамку из металлического профиля на бетонной стене, вы должны с помощью дрели просверлить отверстия, установить дюбели, а затем закрутить саморезы.
Если вы планируете крепить металлические профили к деревянным стенам, используйте саморезы длиной не менее 40-50 мм. Расстояние между саморезами должно быть около 10-12 см.
Крепление металлического каркаса к стене.
После крепления металлических профилей к стене вы можете продолжить процесс, установив первый лист гипсокартона. Чтобы выполнить эту операцию профессионально, воспользуйтесь электрическим шуруповертом с контролем крутящего момента. Для гипсокартона толщиной 12.5 мм мы рекомендуем вам использовать саморезы 3.5х35, а для гипсокартона толщиной 9.5 мм вполне подойдут шурупы и поменьше.
Крепление вырезанного гипсокартона к металлической раме.
Аналогичным образом обшейте гипсокартоном другую сторону каркаса. Используя шуруповерт, вкручивайте саморезы так, чтобы их шляпки были на одном уровне с поверхностью гипсокартона, в противном случае вам придется заделывать углубления шпатлевкой.
Крепление гипсокартоновой арки к металлическому профилю.
Следующий этап работы – закрепление изогнутого металлического профиля по краю гипсокартоновой арки для увеличения жесткости конструкции.
Измерьте длину дуги и вырежьте соответствующий отрезок профиля с помощью ножниц по металлу. Не забывайте использовать защитные перчатки, чтобы избежать порезов рук об острые металлические края.
Надрезание стенок металлического профиля для придания ему изогнутой формы.
Придайте профилю форму дуги и с помощью саморезов закрепите его концы в нижних частях металлической рамы.
Установка изогнутого металлического профиля.
После того как вы убедитесь, что оба конца изогнутого профиля надежно прикреплены к металлической раме, вы можете продолжить процесс, прикручивая саморезами гипсокартоновые стенки арки к изогнутой металлической направляющей.
Этот этап очень важен для создания вашей арки, так что будьте внимательны и убедитесь, что гипсокартон хорошо фиксируется на металлическом каркасе. Чтобы получить ровную поверхность, саморезы необходимо вкручивать через каждые 10-15 см.
Крепление гипсокартоновой арки к изогнутому металлическому профилю.
Помните, что каркас не завершен, пока вы не установите перпендикулярные отрезки профиля, которые должны связать боковые стенки арки между собой. Эти связующие перемычки должны быть размещены в нескольких точках.
Необходимые материалы
Стеновые арки собираются в процессе отделки и для их создания применяют такие же материалы, как для работы с гипсокартоном. Потребуются профили для сборки каркаса под обшивку, гипсокартон соответствующего типа, крепёжные материалы, шпатлёвка для выравнивания.Пример обшивки стеновой арки гипсокартоном
Подбор профиля для каркаса
Если собирается отдельное сооружение из гипсокартона своими руками, нужен полный набор профилей двух типов: направляющих и стоечных.Конструкция каркаса арки на стене И также для упрощённого придания плавных изгибов понадобится арочный вариант рейки, который можно изгибать в любую конфигурацию. Арочный профиль вполне реально заменить обычной направляющей, в которой подрезают боковые полки, что позволяет делать изгиб не хуже оригинального аналога.
Направляющие используются в качестве основы для установки стоек каркаса. Маркируется такая рейка буквами UD (ПН по отечественным сокращениям). Параметры металлического профиля: ширина 28 мм, высота боковых полок 27 мм, длина 3000-4000 мм, материл — сталь толщиной 0,5-0,6 мм. Обязательно наличие цинкового покрытия.Стоечные профиля нужны для несущих вертикальных реек каркаса, на которые будет закрепляться гипсокартон.
По всей протяжённости профиля имеются ребра жёсткости. А также обязательно цинковый слой для предотвращения коррозии.
Гипсокартон
Приобретается под условия, в которых будет эксплуатироваться стеновая арка.Пример обшивки гипсокартоном стеновой арки
- Стеновой. Такой тип листа вполне подойдёт под обшивку стен в жилых комнатах. Имеет белую лицевую сторону. Необходимая толщина стандартна – 12,5 мм;
- Влагостойкий ГКЛ. Этот гипсокартон нужно использовать при оформлении помещений с высоким уровнем влажности: кухнях и ванных. Маркируется зелёным цветом, толщина 12,5 мм;
- Огнестойкий гипсокартон. Подобный вариант ГКЛ нужен для отделки арок, оформляющих, например, порталы каминов, то есть под условия, где ожидаются более высокие температуры.
Пример финишной отделки стеновой арки из гкл
Важно не экономить на таком материале, не стоит покупать более тонкие листы с толщиной 6,5, и 9 мм. Для изгибания есть также специализированные типы гипсокартона, но с использованием некоторых технологических приёмов вполне можно придавать гнутые обводы стандартным видам материала
Крепеж и шпаклевка
В качестве крепёжных материалов нужны дюбели-гвозди, для фиксации направляющих профилей, а также монтажа прямых подвесов к стенам помещения.Процесс обшивки арки листами гипсокартона Для соединения металлических деталей каркаса используются мелкие саморезы по металлу – клопы, 11×3,6 мм. Гипсокартон крепится черными шурупами с винтовой нарезкой. Длина такого крепежа должна быть минимум 18 мм, чтобы при ввинчивании саморез зашёл в профиль на несколько миллиметров. Более короткие шурупы могут попросту отогнуть край профиля и не врезаться в металл, такое соединение будет некачественным. Отделку проводят шпаклёвкой изначально стыков, а потом всей поверхности арки. Отлично подходят варианты гипсовой шпатлёвки, лучше универсальной. Если будет отделываться полностью вся поверхность стен, то изначально кладут стартовый слой, а потом финишный завершающий.
А также подходят различные акриловые и полимерные виды шпаклёвок, но стоят они дороже от гипсовых аналогов. Смотрите в видео поэтапный процесс изготовления арки из гипсокартона на стене.




































