Особенности проектов одноэтажных домов до 150 кв.м с тремя спальнями без мансарды
Если проекты зданий до 100 м? нуждаются в расширении пространства за счет установки дополнительных конструкционных элементов, то планировка частного дома с площадью до 150 кв. м уже может обойтись без организации мансардного или цокольного этажа. Здесь можно использовать метод объединения пространства.
Дом без мансарды с площадью 100-150 кв.м с комфортом разместит семью с двумя-тремя детьми
Распространенные примеры совмещения:
- объединение санузла;
- объединение в одном помещении кладовки и котельной (этот метод встречается нередко, однако с точки зрения норм безопасности, нельзя считать такую планировку верной);
- соединение пространств гостиной и столовой, кухни и гостиной, кухни и столовой.
Лаконичный дизайн детской комнаты для девочки
Если вы используете метод совмещения пространства, будьте готовы к тому, что потребуется увеличение каждой комнаты примерно на толщину стены или перегородки, при условии, что этот показатель составляет не менее 0,1 м.
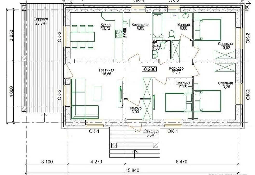
Пример планировки одноэтажного дома с тремя спальнями и объединением комнат
Ниже представлен проект дома с тремя спальнями, в одной из которых размещена гардеробная. Как видно на плане, главный вход в здание расположен по центру фасада. С обратной стороны находится терраса с угловым типом размещения, на которую обустроено два выхода – один из гостиной, второй – из хозяйской спальни.
Проект 2. Фасад одноэтажного дома и вид на главный вход
Благодаря длинному коридору, соединяющему все жилые помещения дома, ни одна из комнат не является проходной. Спальни обладают достаточной площадью для того, чтобы организовать спальное место, гардеробную и рабочую зону. Условно дом может быть разделен на две зоны: ночную и дневную. В передней части дома (где располагается вход с крыльца) размещены все помещения бытового назначения.
Проект 2. Вид на террасу и задний двор
Здесь мы видим:
- прихожую с гардеробом и входом в прачечную;
- кухню, частично открытую в сторону гостиной-столовой;
- одну общую просторную ванную комнату.
На схеме проекта видно, как удачно совмещены пространства гостиной, кухни и столовой. Этот участок может использоваться в качестве одной большой зоны для отдыха в кругу друзей и семьи. Все необходимое для приготовления ужина, самой трапезы и общения в комфортных условиях перед телевизором находится под рукой. Благодаря такому решению, в доме образовался небольшой холл, отделяющий комнаты, предназначенные для отдыха. Примечательно еще и то, что все спальни ограждены от неприятных запахов, которые могут идти с кухни.
Проект 2. Планировка дома с 3 спальнями и террасой
Второй пример удачного совмещения пространства
В некоторых случаях для комфорта может потребоваться другой вид планировки. Данный проект общей площадью в 106,7 м? подойдет для семьи, в которой есть дети разных возрастов. Это можно увидеть на схеме, проанализировав особенности размещения спален.
Удобства определяются следующими моментами:
спальня родителей обладает достаточным количеством места для установки большой кровати, она имеет отдельную гардеробную комнату, выход на большую террасу, предназначенную для совместного отдыха с семьей, оснащена телевизором;
Проект 3. Вид на фасад одноэтажного дома с гаражом и дополнительным парковочным местом
- напротив родительской спальни может располагаться комната младшего ребенка, позволяющая организовать спальное место, рабочую зону. Здесь имеется гардероб;
- комната старшего ребенка отделена от второй детской помещением санузла. В ней имеется все необходимое: гардероб, рабочий стол, спальное место;
- все помещения спален выходят в небольшой холл, где может быть установлен общий гардероб.
Проект 3. Вид на задний двор с террасой и бассейном
В этом случае помещения столовой, гостиной и кухни также совмещены между собой. К кухне примыкает небольшая комната, отведенная под кладовую. Благодаря удаленности этой зоны лишние шумы и запахи не будут создавать проблем проживающим в доме.
Особенно примечательна концепция создания гаража. Проект подразумевает наличие площади под размещение сразу двух автомобилей. Причем одно парковочное место защищено крышей и располагается прямо перед входной дверью, другое имеет вид капитального гаража с роллетами, из которого можно попасть в дом через прачечную.
Проект 3. Планировка дома с тремя спальными комнатами
Особенности проектов
Даже одноэтажный Г-образный дом прекрасно вмещает в себя 3-4 жилые комнаты, просторную кухню, смежный или раздельный санузел, кладовку, коридоры. Специалисты предлагают несколько вариантов постройки частного здания. Планировка содержит чертежи с расположением внутренних помещений, гаража, мансарды:
- для лучшего прогрева дома котельная размещается в цокольном помещении;
- между «шумной» и «тихой» зоной располагают кухню и столовую;
- если проект включает мансарду, она используется в качестве «тихой» зоны. Также на каждом уровне обустраивается санузел;
- во внутреннем дворике рекомендуется создать террасу или веранду, которая станет дополнительной зоной отдыха даже в плохую погоду;
- встроенный гараж отапливается вместе с домом, что позволяет сэкономить на проведении системы отопления;
- планировка террасы проводится в южной или юго-восточной части постройки с подветренной стороны.
Вам будет интересно: Планировка однокомнатной квартиры 35 кв. м

Угловой участок с г-образным домом чаще всего оснащается открытой террасой, что позволит проводить время на свежем воздухе. При планировке и строительстве следует помнить, что веранда является частью дома, имеет общую крышу с коттеджем. Эта комната также должна отапливаться. Если планируется разводить цветы, пристройка располагается с южной стороны.
Плюсы и минусы
Одноэтажный дом буквой Г возводится на небольших участках, где стандартные прямоугольные или квадратные постройки не оправданы. За счет необычной формы создаётся несколько полезных зон, при этом сэкономив на шумоизоляции
Дополнительно архитекторы уделяют внимание достоинствам проекта:
- Экономия на фундаменте, так как здание г-образной формы одноэтажное.
- Возвести коттедж можно самостоятельно.
- Планировка комнат с пристройками проводится в зависимости от сторон света, что позволяет построить светлый дом.
- Подключение пристроенного гаража к отоплению коттеджа.
- Простота монтажа коммуникаций: водопровода, канализации, отопления, вентиляции.
- Наличие уютного безветренного дворика.
- При желании возведение общей крыши для гаража, веранды и дома.
- Использование различных материалов для постройки стен: кирпич, шлако- и пеноблок, дерево.
- Парадный вход может располагаться как со стороны улицы, так и со стороны ландшафтной планировки участка.

Недостатком проекта является увеличение растрат на строительство и обделку стен. Также из-за крыльев повышается теплопотеря, что в будущем скажется на счетах по отоплению.
Задел на будущее: как выбрать идеальный проект одноэтажного дома с тремя спальнями
На чтение: 4 минуты Нет времени?
Мечтая о собственном доме, вы наверняка рисовали в своем изображении многочисленные варианты планировки и оформления. Когда дело доходит до непосредственного составления документов на строительство, конечно, лучше обратиться к профессионалам, но еще до заказа следует определиться с основными требованиями. Чем лучше вы продумаете свои желания, тем идеальнее получится проект. Тема этого материала Housechief.ru – проект одноэтажного дома с тремя спальнями. Это один из самых востребованных вариантов для семейных пар с детьми
Как его выбрать, на что следует обратить внимание и возможные варианты – в нашей статье

Дом с тремя спальнями – оптимальный выбор семьи с двумя детьми
Читайте в статье
Одноэтажный дом: преимущества и недостатки
Если вы решили начать строительство собственного дома, но не можете определиться, какая этажность будет наиболее оптимальной, то обязательно обратите внимание на проект дома 9. Не думайте, что одноэтажный дом – это пережитки прошлого, вовсе нет
В последнее время все больше и больше внимания жителей мегаполиса привлекают компактные коттеджи, способные обеспечить полнофункциональную площадь для проживания целой семье
В последнее время все больше и больше внимания жителей мегаполиса привлекают компактные коттеджи, способные обеспечить полнофункциональную площадь для проживания целой семье.
Типовой проект частного одноэтажного дома
Стоит отметить несколько наиболее значимых преимуществ таких сооружений, а именно:
- доступность. Так как строительство двухэтажных домов – это весьма недешевая задача, далеко не каждому человеку удается накопить необходимую сумму, чтобы стать владельцем дома своей мечты. Одноэтажные строения не только доступны, но еще и благодаря огромному разнообразию планов сооружений с мансардой, могут удивлять своими архитектурными решениями.
- комфорт и уют. Согласитесь, жить в огромном и пустом замке, даже при наличии большой семьи, нерационально. Кроме того, пустующие комнаты все равно будут требовать обогрева помещений, поэтому, это будет требовать немалых ежемесячных трат на оплату коммунальных услуг или покупку топлива для котла.
- -удобство для детей и пожилых людей. Разумеется, никакой двухэтажный дом невозможно представить без лестницы. Но она, в свою очередь, может стать немалым препятствием, а иногда даже угрозой безопасности для малышей и пожилых родственников.
Небольшой, но уютный одноэтажный дом Но, несмотря на все перечисленные преимущества, одноэтажные дома имеют определенные недостатки. Они не всегда практичны в том случае, когда у вас большое семейство. Если вы решили возвести дом, то вам наверняка, хочется обеспечить комфорт проживания для себя и родных. Именно поэтому, планировка дома 9 на 11 одноэтажный должна продумывать то количество помещений, которое понадобиться вам. Если метров площади будет недостаточно, то вы можете возвести коттедж с мансардой. Мансарда – это превосходный вариант для всех людей, которые приняли решение отказаться от возведения капитального сооружения, но все-таки хотят задействовать чердак, реализуя проект дома 9 на 11 м. Кроме того, стоит отметить также и то, что сейчас весьма не просто подобрать подходящий участок, под те чертежи, которые размещены в сети. Как правило, в таком случае, целесообразно воспользоваться услугами опытных проектировщиков, которые знают свое дело, чтобы без погрешностей рассчитать все необходимые строительные работы и уберечь себя от неоправданных трат на материалы.
Удачный проект коттеджа 9 на 11 с функциональной планировкой
С коридором
Проект дома с тремя спальными помещениями подразумевает, что в доме будут жить дети и многие родители предпочитают, чтобы детская была вдали от родительской спальни. Что не лишено смысла.
Если разделить дома на 3 части, возможно создать планировку без коридора:
- Детская;
- Кухня и зал;
- Спальня и совмещенный или раздельный санузел.
Таким образом получается, что спальные пространства разделяет гостиная и они находятся на разных сторонах дома. Минус такого проекта – спальная комната родителей находится рядом с входной дверью и санузлом, что может быть не очень удобно.
Второй вариант подобного проекта – дом с коридором. Если отдать часть помещения под коридор, то родительская спальная будет более изолированная.
Самая удобная планировка такого дома – когда вход в каждую из спален осуществляется из общего коридора
Санузел можно перенести ближе к детским и расположить его между этими двумя спальнями. Но можно сделать гостиную чуть меньше. В коридоре можно установить гардеробную для детей, что также позволит увеличить площадь спален.
Минус такого проекта – кухня и санузел расположены далеко друг от друга, а это значит, что канализационная и водопроводная система будут сложнее организованы. В свою очередь, это лишние затраты.
Преимущества одноэтажных проектов домов 12 на 12
Для начала нужно разобраться, чем такие строения привлекают людей. К достоинствам таких проектов можно отнести:
Фундамент дома 12 на 12 является важной частью строения. При этом стоимость его возведение достаточно высокая по сравнению с расценками на остальные виды работ
Чаще всего одноэтажные здания имеют упрощенный вариант фундаментальной основы
Такой фундамент не рассчитан выдерживать большой вес двух и более этажей, поэтому может иметь облегченную конструкцию и простое исполнение. Можно сэкономить при возведении стен, так как их конструкция не требует дополнительного усиления, поскольку отсутствует второй этаж. В одноэтажных зданиях инженерия достаточно простая. Здесь не требуется выполнение сложной разводки коммуникаций, системы отопления и т.д. Монтажные работы значительно упрощены и обходятся гораздо дешевле. За счет простой конструкции возведение одноэтажного здания не требует огромных затрат, а все работы выполняются в самые короткие сроки. В проекты домов 12 на 12 с одним этажом не включено наличие лестничной конструкции (кроме планировок с мансардой). Поэтому не нужно возводить дорогостоящие и сложные лестницы.
Чаще всего одноэтажные здания имеют упрощенный вариант фундаментальной основы. Такой фундамент не рассчитан выдерживать большой вес двух и более этажей, поэтому может иметь облегченную конструкцию и простое исполнение. Можно сэкономить при возведении стен, так как их конструкция не требует дополнительного усиления, поскольку отсутствует второй этаж. В одноэтажных зданиях инженерия достаточно простая. Здесь не требуется выполнение сложной разводки коммуникаций, системы отопления и т.д. Монтажные работы значительно упрощены и обходятся гораздо дешевле. За счет простой конструкции возведение одноэтажного здания не требует огромных затрат, а все работы выполняются в самые короткие сроки. В проекты домов 12 на 12 с одним этажом не включено наличие лестничной конструкции (кроме планировок с мансардой). Поэтому не нужно возводить дорогостоящие и сложные лестницы.

Одноэтажные дома таких размеров – отличный вариант для семей, состоящих из 4-5 человек. В них могут свободно разместиться три спальни, гостиная и кухня. При желании можно пристроить гараж, сделать цокольный этаж, в который переместить все коммуникационные разводки.
Проекты одноэтажных домов до 150 м2: фото и особенности
Практически любая планировка одноэтажного дома площадью 150 кв м позволит разместить следующие виды помещений:
- не меньше 3 спальных комнат (иногда 4 или 5, если дом с мансардой);
- большую гостиную, столовую и просторную кухню площадью от 8 до 15 кв. м. Эти же помещения могут быть объединены в одно общее;
- два санузла – первый внизу, второй в мансарде.
Размещение других комнат – строго индивидуальное. При наличии в семье человека, работающего на дому, в их состав может быть включён кабинет. На первом этаже располагают баню, бойлерную и, иногда, гараж. Хотя в здании общей площадью от 120 до 150 кв. м вообще может не быть мансарды.
Планировка одноэтажного частного дома площадью до 150 кв. м
Планы одноэтажного дома 10 на 12 и 12 на 12: хороший выбор для больших семей
В большинстве случаев на плане одноэтажного дома с тремя спальнями 10×12 отмечается просторная гостиная, санузел, столовая и кабинет. Часть комнат может объединяться. Например, кухня и столовая обеспечат больше пространства при отсутствии между ними перегородок. А для дополнительного увеличения пространства стоит предусмотреть расположение жилой зоны в мансарде. Здесь же будет уместно смотреться ещё один санитарный блок и гардеробная для хранения вещей, не подходящих по сезону.
Планировка дома 10 на 12
При планировке зданий такого размера – при этом параметры дома могут немного изменяться в большую или меньшую сторону (примерно так же планируются постройки 10 х 12 метров) руководствуются такими факторами:
- расположение комнат вдоль сторон света. Желательно, что стены детских и спален смотрели на юг, а большая часть их окон – на запад, чтобы утреннее солнце не будило жильцов слишком рано;
- комнаты «дневной зоны» (гостиную и столовую) можно располагать ближе к выходу или к веранде, если она включена в план;
- форма жилых помещений должна быть прямоугольной.
Нежелательно делать любую из спален или гостиную проходными. А расчёт оптимальной площади выполняется в соответствии с нормой в 8 кв. м на одного ребёнка. Для супружеских пар достаточно спальни размером около 15 кв. м. Если же в здании проживает 2 семьи, можно предусмотреть для него отдельный вход.
Фото дома 10 на 12
План одноэтажного дома 12 на 12: аналог небольшой двухэтажной постройки
Любая выбранная по типовому или индивидуально разработанному проекту планировка одноэтажного дома 12×12 м представляет собой отличную возможность расположить комнаты в соответствии с требованиями жильцов и рекомендаций специалистов. Особенности такого здания:
- комфортное размещение от 2 до 6 человек даже без мансардного этажа;
- удобное расположение жилой зоны в верхней (мансардной) части и хозяйственных помещений внизу;
- возможность временного использования мансарды только в летнее время, а, при увеличении размеров семьи, перевод её помещений в полностью жилую зону.
Размеры одноэтажного дома 12×12 м позволяют разместить внутри и веранду, и гараж на один автомобиль, и мастерскую, и бойлерную. Санузлов для такого здания может быть и два, и даже три – если количество проживающих здесь постоянно семейных пар тоже равно трём. При этом для каждой семьи может делаться отдельный вход. Ведь при устройстве ломаной крыши общая площадь дома может превышать 200 кв. м, то есть быть примерно равной трём 2-х или 3-х комнатным квартирам.
План дома 12 на 12
План одноэтажного дома 11 на 11 и разнообразие вариантов
Вместительный одноэтажный дом 11 на 11 м с мансардой легко заменит собой не меньше двух полнометражных городских трехкомнатных квартир. Если же добавить к мансардному ещё и цокольный этаж, постройка позволит с комфортом проживать в ней семье из 6–8 человек. При этом у каждой пары будет собственная спальная, а у ребёнка – детская. Средний размер гостиной такого дома – от 20 до 30 кв. м, кухни – не меньше 10 кв. м. Из-за того, что наличие мансарды позволяет не экономить на пространстве, в хозяйственной зоне можно предусмотреть небольшую сауну и даже встроенный в дом гараж. А дополнением к жилой части станет кабинет и просторная веранда.
Проект дома 11 на 11
Проекты такого размера редко применяют для дачного строительства. Но, если дача 11 на 11 всё же будет строиться, в ней не обязательно предусматривать мансарду. Для большого частного дома мансардный этаж практически обязателен, так как позволяет эффективнее использовать подкрышное пространство. Большая часть проектов предполагает создание мансарды, делающей дом почти двухэтажным.
Фото дома 11 на 11
Статья по теме:
Особенности планировки одноэтажного дома
Одноэтажный дом с 4 спальнями проект
Комфортное проживание в одноэтажном доме связано со многими факторами, на первом месте среди которых стоит планировочное решение при размещении комнат, и их взаимодействие друг с другом.
Одноэтажный дом с мансардой
На рациональное распределение пространства влияет следующее:
- Размеры помещений;
- Назначение комнат;
- Месторасположение комнат;
- Связи основных комнат между собой и прочими помещениями – верандой, коридором.
Инструкция по проектированию внутреннего пространства жилого дома заключается в следующем:
- При проектировании одноэтажного дома необходимо максимально отдалить общие и хозяйственные помещения от приватной зоны, где располагаются спальни. Часто в таких домах гостиную совмещают с кухней или оборудуют кухню-столовую с выходом на веранду или открытую террасу;
Совмещение кухни и гостиной
- С точки зрения комфорта, лучшим решением будет кухня, объединенная с просторной столовой;
Совмещенная кухня-столовая
- Подсобные помещения и санузел с ванной должны располагаться недалеко от кухни, так как желательно устройство основных инженерных узлов в одном месте;
Современный одноэтажный дом с панорамным остеклением гостиной
- Приватную зону, где находятся «тихие» помещения – спальни, располагают в противоположной стороне дома. Желательно, чтобы окна этих помещений не выходили на главный фасад, если он обращен к оживленной улице.
Дом с фронтальным гаражом
Огромный просторный дом, который обеспечивает комфорт, удобство и уют каждому его обитателю. Общая площадь тут составляет 212 м2, жилая – 178 м2, присутствует гараж на две машины, три спальни, несколько санузлов, множество подсобных помещений, где можно хранить инструменты, предметы домашнего обихода, поставить встроенные шкафы и т.д.
Внешне дом, построенный по такому проекту, нельзя назвать по-другому, как шикарный, но изюминку ему придает треугольное мансардное окно. Данный проект уникален, так как предоставляет возможность подстроить полностью все под свой вкус, вплоть до того, что обустроить полноценный второй этаж, дающий еще около 90 м2 площади. Также «переделкам» поддается большая ванная комната, которая может быть разделена на две, спальни, которые могут превратиться в кабинет, библиотеку и т.д.
Дом визуально можно поделить на две зоны: ночную и дневную. В дневной зоне просторная гостиная с хорошим естественным освещением, чему способствуют огромный застеленный дверной проем, ведущий прямо на террасу и задний двор. Это позволяет не только экономить электричество и максимально использовать естественный свет, но и создает комфорт передвижений, ведь выйти во двор можно быстро и просто, да и готовой еды с кухни прихватить.
В ночной зоне дома три спальных комнаты и два отдельных санузла, вход к которым идет не через спальни, а с общего коридора. Огромная прихожая позволит удобно расположить любую систему шкафов и бережно хранить многочисленные вещи. Кроме того, из дома предусмотрен выход в гараж, к которому примыкают мастерская. В гараже можно разместить два автомобиля. В этом доме для комфорта большой семьи продумано все до мелочей.
Проекты домов с тремя спальнями — лучшие готовые проекты домов с тремя спальнями в России
Сколько спален должно быть в доме?
Основное преимущество частного дома в его пространстве и достаточной жилой площади. Как правило, в квартирах чувствуется нехватка последней, особенно если семья большая. В 2-х, 3-х комнатных квартирах не получится больше двух спален, да и для личных вещей места недостаточно. При смене сезона начинается тасование одежды. Осенью на антресоли прячутся летние вещи, весной – зимние. А даже среднестатистической семье с двумя детками, особенно если дети разнополые, нужны три спальни: одна для родителей и две детские. А если детей больше, так и вообще говорить не о чем. В таком случае, проекты домов с тремя спальнями – просто находка. Естественно, кроме спален в доме должны быть еще санузел, прихожая, гостиная, столовая, кухня, по желанию кабинет и прочие комнаты. Даже если в семье один ребенок, третью спальню можно отвести под комнату для гостей или попросту подождать пока в семье будет пополнение.
Проект дома с тремя спальнями может предполагать любую этажность, планировку или стиль. Не имеет значения и материал, с которого строится дом. Хорошо, когда все спальни сосредоточены в одной части дома. В таком случае, получается, своего рода, зона отдыха. Это удобно тем, что грохот посуды на кухне не будет мешать спящим членам семьи. Кроме спален в этой зоне может быть ванная комната и гардероб. Если дом одноэтажный, то под спальни отводится часть дома, приблизительно половина. Во второй размещается кухня, столовая, гостиная, хозяйственные помещения и прочее. Но еще удобней, когда в доме есть мансарда или второй этаж. Тогда зона отдыха будет еще удобней. Кроме того, что второй этаж имеет лучшую звукоизоляцию, так он еще и теплее. Это связано с тем, что первый этаж выполняет функцию воздушной прослойки. На нем пол надо утеплять, желательно положить гидроизоляцию, что бы холод и сырость не тянули с подвала или от земли. А вот пол спален будет гораздо теплее.
Где и как можно купить проект с тремя спальнями?
Получается, что три спальни в частном доме – это оптимальное количество, для современной семьи с двумя детьми. Проекты домов с тремя спальнями можно посмотреть и купить на сайте нашей компании Дом4М. Мы предлагаем своим клиентам широкий ассортимент готовых проектов, но, также, можем сделать и индивидуальный. Последний будет разработан специально под заказчика. Такое проектирование начинается с изучения участка: состава грунта, ландшафта, близости грунтовых вод. Естественно, цена на индивидуальные проекты домов с тремя спальнями будет немного выше, чем на готовые, но, в целом, все цены компании экономически обоснованы и доступны. Также, при необходимости, возможна адаптация понравившегося типового проекта. Эта услуга особенно важна для такой страны, как Россия. Огромнейшие просторы, различный климат и погодные условия в разных регионах большой страны, способствуют разнообразию используемых строительных материалов. К примеру, то, что хорошо в Краснодарском крае, вряд ли подойдет на Дальнем Востоке. Возможна адаптация фундамента или переориентация каркасного дома под кирпичный, при этом внешний вид дома будет максимально сохранен. В любом случае, выбирая проект дома с тремя спальнями лучше сначала проконсультироваться со специалистами. Сотрудники нашей компании подскажут, какой проект больше подойдет к тем или иным условиям, и помогут выбрать оптимальный вариант.
Сегодня покупка любого проекта сводится к посещению сайта, нажатия кнопки «купить» и заполнения несложной формы. Получить проект можно при помощи курьерской службы, самовывозом с офиса компании или получить по почте.
dom4m.ru
Чертёж в разрезе для дачных помещений
Двухэтажный дом, как правило, имеет не много пространства, но при хорошей планировке его будет достаточно для реализации всего необходимого.
При составлении чертежа в разрезе для каркасного здания стоит обратить внимание на то, где какую комнату необходимо разместить:
- спальные помещения лучше всего размещать так, чтобы их окна смотрели в юго-восточном или восточном направлении;
- интерьер и план кухни, ванна в доме и прихожая должны быть на западе;
- детскую комнату или помещения для гостей стоит расположить в юго-восточной или южной стороне дома.
Чертежи с размерами всех этажей дома
Правильное расположение жилых помещений позволит не только получить большое количество света в нужном месте, но также создать правильный воздухообмен между помещениями.
Чертёж в разрезе будет достаточно продуманным, но в то же время простым. Именно простота является гарантом качества и удобства использования чертежа строителями или конструкторами.
Варианты планировки дома с тремя спальнями
Анализ проектов показывает, что расположение комнат отдыха может быть самым разнообразным. Часто используется вариант с размещением всех спален по одной стене. В этом случае имеются свои плюсы и минусы. К преимуществам смело можно отнести удаленность от входной двери и тамбура, что особенно актуально для регионов с суровым климатом. К минусам можно отнести то, что при недостаточной звукоизоляции некоторые члены семьи будут мешать другим. Впрочем, устраняется этот недостаток просто. При проектировании закладывается монтаж шумоизоляционного слоя.
Планировка дома 10 на 12Источник vip-1gl.ru
Когда делается планировка одноэтажного дома 10 м на 12 м с тремя спальнями либо жилья с похожими габаритами, то стоит прислушаться к еще одному совету профессионалов. Настоятельно рекомендуется как минимум две туалетные комнаты, даже если одна из них будет совсем небольшой. Достаточно установить туда унитаз и раковину. Это действительно бывает очень нужно в отдельные периоды семейной жизни. Отказавшись от этой идеи, можно впоследствии сильно пожалеть о таком решении.
Обзор визуализации проекта дома с тремя спальнями – в этом видео:
Как улучшить функциональность дома с тремя спальнями
Современный подход к формированию жилого пространства характерен реализацией оригинальных идей технического и эстетического плана. Широкий выбор отделочных материалов, механизмов, элементов мебели и аксессуаров позволяет формировать практичные, комфортные пространства. Добиться заметных результатов можно как в уже готовом доме, так и в проектируемом. Во втором варианте возможностей больше, поскольку отсутствует этап перепланировки. Все коммуникационные маршруты и конструктивные элементы выполняются по плану.
Туалетная комната в спальне
Возможны два варианта по исполнению. Если за одной стеной уже есть туалетная комната, то можно сделать второй вход туда из спальни. Небольшая перепланировка помещений не сильно ударит по семейному бюджету, но существенно повысит комфорт и удобство пользования. Второй вариант предусматривает прокладку всех необходимых коммуникаций — водоснабжение, канализацию, вентиляцию. Более затратный способ. Но он дает полную независимость пользователям, которые могут не подстраиваться под нужды других обитателей дома. Без монтажа эффективной системы вентиляции устанавливать ванну, душевую кабину в спальне не рекомендуется. Повышенная влажность – точно не лучшее условие для отдыха и сна.
Туалетная комната в спальнеИсточник myfancyhouse.com
Выход на улицу из спальни
Эта идея все чаще применяется на практике. Хорошо защищенный участок вокруг дома делает выход безопасным. Вмонтировать дополнительную дверь можно в любую спальню. Интересным выглядит это решение как в детской комнате, так и в помещении для семейной пары и пожилых людей. Устройство дополнительного входа не требует больших вложений. Можно использовать для этой цели оконный проем, расширив его до нужного размера. Популярным вариантом становится стеклянная дверь «в пол», или, как ее часто называют, французская. Общий план одноэтажного дома с 3 спальнями не изменится, а вот функциональность его существенно повысится.
Выход на улицу из спальниИсточник archilovers.com
Трансформируемая комната
Изменения назначения комнаты в большинстве случаев обеспечивается специальной мебелью и инженерными конструкциями. Трансформировать пространство можно с помощью:
- откидных, раздвижных кроватей;
- трансформирующихся столов;
- раздвижных, откатных, мобильных перегородок;
Кроме того, в современном интерьере широко используется встроенная техника. Проекторы, музыкальные центры. Производители детского и спортивного инвентаря также предлагают богатый ассортимент продукции с изменяющимися качествами. Детская игровая зона может в считанные минуты быть изменена либо вообще убрана. Некоторые модели тренажеров выпускаются в универсальном исполнении. Они не занимают много места и могут храниться в ограниченном пространстве, когда не используются по прямому назначению.
Комната-трансформерИсточник 4woodi.pl
В чем заключаются особенности проектирования дома с тремя спальнями
Прежде чем приступить к процедуре проектирования, нужно определиться с назначением всех комнат. Они могут быть детскими, комнатами для пожилых людей, гостевыми или супружескими спальнями. У каждого из этих назначений есть свои особенности: необходимо понимать, как именно они будут связаны с общей зоной, как освещены и чем оснащены.

Спальни не должны быть проходными
Важный момент – организация естественной вентиляции и освещения. Последнее правило означает, что хотя бы одна стена комнаты должна быть несущей стеной здания.
Расположение комнат – существенный момент, и существует несколько решений:
План одноэтажного дома с 3 спальнями вдоль одной из стен
Вы найдете множество типовых планировок, в которых все три спальни размещены в одной из сторон дома. Гостиная и кухня расположены отдельно, и это в своем роде удачное решение, потому что ничто не помешает сну: ни музыка в гостиной, ни грохот посуды и ароматы пищи.
Есть в такой планировке свой нюанс – супружеская спальня находится слишком близко к детским комнатам, а это не самый лучший вариант
Еще один недостаток – санузел размещен далековато от спальни, так что придется по ночам путешествовать по темному длинному коридору. Да и сам коридор – нерациональное использование пространства, согласитесь.
Тем не менее, такое расположение имеет право на существование, и вот еще один пример подобного проекта:

Планировка одноэтажного дома с тремя спальнями с отдельным расположением
Отделение родительской спальни от детских комнат диктует свои условия распределения пространства. Можно совсем отказаться от коридора, отделив треть дома под детские спальни, разместив по центру гостиную и распланировав в остальном пространстве спальню родителей и санузел.

В этом случае вы получите просторную проходную гостиную
Неплохая планировка 1 этажного дома с 3 спальнями, если не принимать во внимание необходимость отказаться от поздних вечеринок. Другая идея планировки – отделение гостиной, совмещенной с кухней, в доме квадратной формы
В этом случае гостиная не будет проходной: она граничит с родительской спальней и отделена от детских. Недостаток только в необходимости тщательно продумать проводку инженерных коммуникаций. Примеры такого размещения:
Другая идея планировки – отделение гостиной, совмещенной с кухней, в доме квадратной формы. В этом случае гостиная не будет проходной: она граничит с родительской спальней и отделена от детских. Недостаток только в необходимости тщательно продумать проводку инженерных коммуникаций. Примеры такого размещения:





































