Инструкция по сборке самодельного индукционного котла
Стоит отметить, что нередко инструкция, как сделать электрокотел индукционного типа, настолько сложна и содержит такие трудоемкие чертежи, что самостоятельная сборка оборудования выглядит довольно сомнительной. Однако мы нашли нестандартное решение.
Перед тем как самому сделать электрокотел для отопления, нужно будет приобрести индукционную печь мощностью 2,4 кВт и 3 метра профилированных труб Ø25×50 мм со стенками, толщиной в 2,5 мм.
Если рассмотреть, как будет работать эта конструкция, то сначала собираем плоскую емкость из профиля — по ней будет двигаться жидкость. А затем к трубе фиксируем индукционную печку и подключаем ее к сети. Все вместе будет выглядеть примерно как кастрюлька на печке.
Нарезку трубы нужно выполнить максимально точно. Понадобится несколько кусков по 400 мм, тщательно зачищенных от заусенцев на торцах.
Поскольку жидкость внутри такого котла будет двигаться змейкой, то желательно взять четное количество кусков трубы, чтобы входное и выходное отверстие располагались с одной стороны — так их удобнее подключать к отопительному контуру.
Далее нужно прорезать стыковочные отверстия, расположив их строго напротив друг другу. Для удобства можно сначала высверлить по краям 2 дырки сверлом Ø10 мм, и с помощью болгарки прорезать между ними щель.
Поскольку профильные трубы не идеально ровные, их нужно сначала состыковать тупыми краями с острыми и пронумеровать, чтобы потом не перепутать.
На следующем этапе стыки между трубами нужно проварить. Укладываем конструкцию на ровную поверхность, стягиваем струбциной и свариваем. Сначала делаем точечную сварку, чтобы конструкцию не повело, а затем выполняем капитальные швы.
Теперь нужно закрыть торцевую часть нашей емкости. Используем для этого стальную полосу, вырезанную из профилированных труб. Сварку выполняем аналогичным методом — сначала точечно, а затем капитально.
С противоположной стороны также привариваем полосу, не забывая об установке входного и обратного патрубков на крайних трубах. Чтобы обеспечить максимальную площадь контакта емкости с печкой, все швы нужно тщательно зачистить.
Чтобы наш котел можно было повесить на стенку, на его задней части нужно приварить 2 уголка, в которые будет помещена индукционная печка, а также петли для навешивания.
Последний этап работы — покраска. Можно использовать термостойкую краску. На этом сборочные работы завершены. Можно вешать котел и подключать его к отоплению и электросети.
При покупке индукционной печи обратите внимание, чтобы она была рассчитана на беспрерывную работу. В противном случае потребуется перезапуск системы через каждые 2 часа
Каждая из перечисленных моделей является полностью функциональной и надежной. Выбор в пользу какой-либо из них каждый сделает самостоятельно. Главное, внимательно отнестись к работе и в случае затруднений проконсультироваться со знающими людьми.
Комбинированный вариант
В обоих случаях, так или иначе, используется внешнее управление работой котла. Естественно, лучший результат по экономии электроэнергии будет достигнут при совместном использовании аккумулирующего бака, работы по низкому ночному тарифу и контроллера управления с недельным и суточным расписанием.
Аккумулирующий бак позволит накапливать тепло ночью и отдавать его в систему отопления днем, а контроллер управления сможет не только задать время ночного включения котла но и самым оптимальным образом определить затраты тепла в течение дня и недели.
Оба варианта примерно равны по стоимости и равнозначны по эффективности, а главное что положительный результат суммируется при совместном использовании. Если у котла, например, указано, что при номинальной мощности можно ожидать затраты электроэнергии на отопление дома в размере 700-950 кВт*ч, то при использовании двух озвученных оптимизаций вполне реально снизить затраты до 450-500 кВт*ч и целиком перевести их на дешевый ночной тариф. Главное, что результат будет достигнут без снижения уровня комфорта для проживающих в доме.
https://youtube.com/watch?v=OwVG-aV8WTM%3F
Особенности расположения обвязки котельного оборудования
- группа безопасности устанавливается за отопительным агрегатом, так как на этом отрезке контура при прекращении циркуляции наблюдается точка наивысшего давления рабочей среды,
- циркуляционный насос располагается перед котлом, в точке контура с минимальной температурой теплоносителя,
- расширительный бак устанавливается с выдержкой расстояния двукратного значения напора насоса, если располагается до него, в случае же размещения после – дистанция должна быть равна восьмикратному значению напора насоса.
В электрокотлах последнего поколения все элементы обвязки зачастую встроены в конструкцию.
Правила и особенности установки
Для установки электрического котла отопления своими руками необходимо тщательно изучить инструкцию, которая прилагается к изделию. Монтаж предусматривает несколько этапов:
- подготовка места установки и монтаж креплений. Поверхность, на которой устанавливается теплосиловой агрегат, необходимо отделать огнеупорной панелью. Для предотвращения перекосов кронштейны подгоняют с помощью строительного нивелира;
- заземление. В целях электробезопасности в схеме установки электрического котлапредусматривается подсоединение силового устройства к заземляющей шине. Применяется медный провод сечением от 4 мм. Проводник подключается к нулевой клемме в нижней части корпуса;
- устанавливают циркуляционный насос и расширительный бак, если они не предусмотрены в конструкции котла отопления.
При пусконаладочных работах особое внимание уделяется таким моментам, как герметичность всей системы и удаление лишнего воздуха. Далее оборудование тестируется на различных рабочих режимах
Как самому установить электрокотел в частном доме (схема)?
Современные электрокотлы, несмотря на всю их выскокотехнологичность являются довольно простыми устройства для установки. Принципиальная схема установки типового отопительного электрокотла приведена на рисунке.
схема установки электрокотла, необходимые элементы системы
Однако, по мере усложнения конструкции котла, включения в систему нагрева дополнительных контуров – усложняется и монтаж таких устройств. В развитые системы включаются не только обогревательные контуры (которых может быть несколько по числу комнат в доме), но и контур горячего водоснабжения. Каждый контур может оборудоваться индивидуальными температурными датчиками, сливными и запорными вентилями, входным фильтром для воды-теплоносителя, циркуляционные насосы.
Следовательно – монтаж системы отопления на основе электрокотла в частном доме необходимо начинать с составления подробного проекта. В проекте должна быть отражена потребная мощность нагревательного электрооборудования, рассчитано необходимое число и длина трубопроводов для организации контуров систем отопления и горячего водоснабжения, а также все периферийное оборудование.
Важно!!! Если вы начнете монтаж системы отопления без предварительной оценки потребляемой мощности и разработки проекта — вы можете допустить критическую ошибку и в итоге у вас будет либо холодный дом, либо чрезмерное потребление электроэнергии. Сэкономить в этом случае у вас вряд ли получится! Любая ошибка в просчетах сильно ударит по вашему карману!. После составления проекта и расчета мощности осуществляется ревизия системы электропитания – при необходимости прокладываются новые провода, в распределительном щитке ставиться отдельный аварийный выключатель
После составления проекта и расчета мощности осуществляется ревизия системы электропитания – при необходимости прокладываются новые провода, в распределительном щитке ставиться отдельный аварийный выключатель.
В дальнейшем монтаж системы отопления и водоснабжения производится по общим правилам строительства таких систем. При самостоятельном монтаже, как минимум на этапе расчета и составления проекта рекомендуем вам воспользоваться консультациями специалистов.
Однофазные и трехфазные электрические котлы
К выбору котла следует отнестись ответственно, поскольку нужно учитывать все нюансы, касающиеся электрообслуживания вашего дома. Электролинии не всегда способны справиться с нагрузкой, которая повышается после установки котла. Чтобы таких проблем не возникало, посетите отделение энергосбыта, к которому относитесь, и уточните (или попросите рассчитать) максимальную мощность, которую они смогут обеспечить. При расчете необходимых киловатт не забудьте про бытовые электроприборы, находящиеся у вас дома.

Схема строения одноконтурного настенного электрического котла: 1 — электрошкаф; 2 — контрольные лампы; 3 — регулятор температуры; 4 — термометр/манометр; 5 — выключатели мощности; 6 — главный выключатель; 7 — расширительный бак; 8 — кабельный ввод; 9 — предохранительный клапан; 10 — насос; 11 — обратная линия котла; 12 — штекерное соединение контура регулирования; 13 — предохранительный ограничитель температуры; 14 — предохранитель системы управления; 15 — воздушный клапан; 16 — облицовка котла с теплоизоляцией; 17 — реле давления воды; 18 — нагревательные стержни; 19 — подающая линия котла
Электрический котел устроен довольно просто: он содержит теплообменник и блок управления и регулировки. Существуют доукомплектованные модели, которые снабжены расширительным баком, фильтром и насосом.
Для отопления частных домов применяются электрокотлы небольшой мощности: однофазные и трехфазные.

Схема каскадного подключения электрического котла
Однофазный электрический котел
Однофазным считается котел, работающий от сети 220 В. Подключить его не составит труда, поскольку все дома оснащены необходимым напряжением. Мощность устройства варьируется от 6 до 12 кВт. Целесообразно использовать такой котел для площади, не превышающей 100 м?. Особенности электрического котла для отопления дома (220 В):
- работает по принципу водонагревательного прибора (бойлер, чайник);
- для работы достаточно обычной сети (220В);
- для его установки не нужно получать специальное разрешение.

Электрический котел для использования в частном доме
Трехфазный электрический котел
Трехфазный котел более мощный, чем однофазный, и подходит для установки на площади более 100 м?. Чтобы сеть могла выдержать нагрузку при эксплуатации котла, их производят трехфазными, то есть подключаются они к сети на 380 В. Особенности трехфазного котла:
мощный
Нужно брать во внимание отапливаемую площадь. На 10 м? требуется 1 кВт + 10-20% (для запаса);
работает от трех фаз (380 В), необходимо увеличивать мощность подачи тока в доме;
необходимо получение специального разрешения в энергосбыте на увеличение потребляемой мощности и установку котла;
номинальный ток, который должен быть в каждой из трех фаз, варьируется от 6,1 до 110 А. Этот показатель влияет на выбор автоматического выключателя, проводку, ее поперечное сечение (допустимые показатели указаны в таблице ниже). Правильный подбор необходимых элементов исключит возможность возгорания.
Таблица «Значения сечения кабеля и тока предохранительных автоматов»:
| Мощность котла (до указанного значения) | Значение тока предохранительных автоматов, для однофазных котлов | Значение тока предохранительных автоматов, для трехфазных котлов | Сечение кабеля для однофазных котлов | Сечение кабеля для трехфазных котлов |
| 4 кВт | 25 А | 4,0 мм? | ||
| 6 кВт | 32 А | 6,0 мм? | ||
| 10 кВт | 50 А | 10,0 мм? | ||
| 12 кВт | 63 А | 16,0 мм? | 2,5 мм? | |
| 16 кВт | 32 А | 4,0 мм? | ||
| 22 кВт | 40 А | 6,0 мм? | ||
| 27 кВт | 50 А | 10,0 мм? | ||
| 30 кВт | 63 А | 16,0 мм? | ||
| 45 кВт | 80 А | 25 мм? | ||
| 60 кВт | 125 А | 35 мм? |
Какой бы котел не устанавливался для дешевого отопления дома электричеством, в любом случае, необходимо предусмотреть резервный источник тепла.

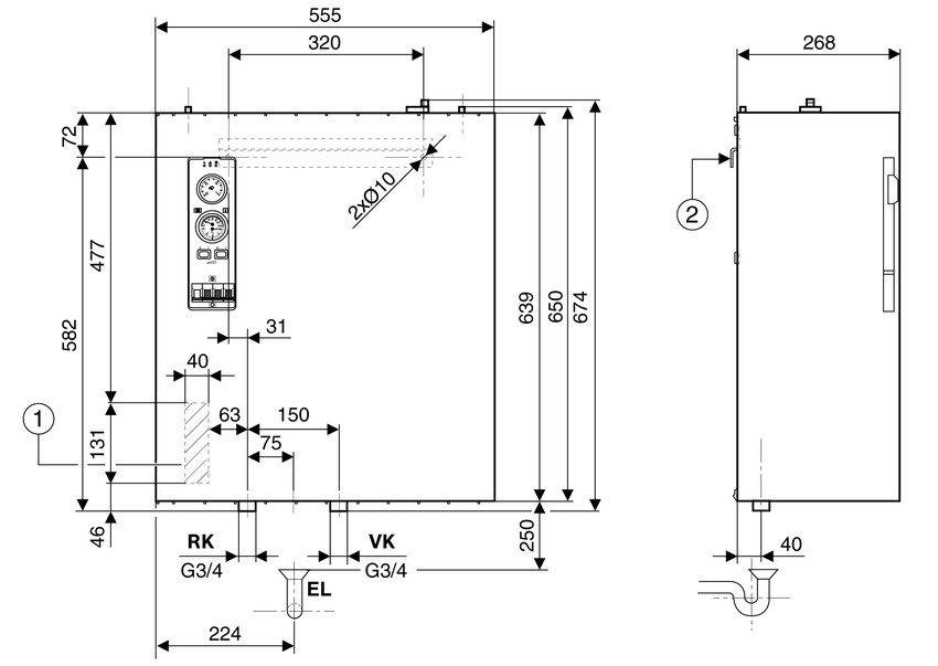
Монтажные размеры электрического котла Buderus Tronic 5000 Н
Умное отопление, контроллеры для управления электрокотлом
Самый простой способ оптимизировать работу электрического котла и, соответственно, снизить затраты электроэнергии – это установить контроллер с поддержкой недельного расписания и термодатчиков, располагаемых снаружи и изнутри дома.
Электрический котел в плане автоматизации куда проще и надежнее газового или твердотельного котла. Для газового по умолчанию устанавливается только температура теплоносителя в баке. Менять ее приходиться только вручную и чаще «на глазок». Для твердотопливного все еще хуже, ведь нужно регулярно подбрасывать уголь или дрова и конечный результат сложно проконтролировать или настроить.
Если же разобраться по сути, то постоянный и равномерный нагрев дома не нужен.
Днем, когда дома никого нет, включать отопление на полную мощность нет смысла, достаточно поддерживать, например 16-18°С и только.
Максимальная отдача нужна лишь утром и вечером, когда все дома и хочется создать комфортные условия.
Ночью опять-таки температуру можно снизить, что актуально и в плане экономии, и в плане здорового образа жизни.
В выходные, когда весь день кто-то есть дома, в течение дня поддерживается комфортная температура и только ночью можно снизить температуру батарей или теплого пола.
Речь не идет о том, чтобы постоянно сидеть в холодном доме. Достаточно учесть время, в течение которого прогревать дом сверх меры не следует, и указать электрическому котлу соответствующий режим. В дополнение к этому контроллер способен учитывать не только фактическую температуру внутри помещения, но и снаружи. Если на улице стало резко холодать, он отдаст котлу команду «повысить обороты».
У такого подхода есть два несомненных плюса даже в сравнении с использованием аккумулирующего бака:
- Стоимость контроллера ниже, чем стоимость изготовления или покупки аккумулирующего бака и дополнительного оборудования.
- Установка контроллера не требует специфических навыков и занимает несколько часов, считая вместе с настройкой.
В конечном счете, контроллеру достаточно задать такие параметры:
- оптимальная температура в помещении;
- минимальная температура в период простоя;
- расписание работы котла по дням недели и времени суток.
В некоторых системах автоматизации есть возможность установить целевую температуру даже для отдельных помещений, что еще больше снимает нагрузку на отопительное оборудование. Однако такой вариант потребует существенных стартовых вложений, что не всегда уместно.
Фактически у всех электрических котлов есть возможность подключения внешних контроллеров управления. Для самодельных устройств достаточно приобрести блок управления ТЭНами или другой нагрузкой с возможностью подключения внешних управляющих сигналов.
Выбор циркуляционного насоса
Для циркуляционного насоса важны два параметра – напор и производительность. Величина напора в большинстве случаев практически не имеет значения. Минимальный напор у самых слабых насосов составляет 2 метра, чего вполне достаточно для обеспечения нормальной работы отопительной системы любого частного дома.

Производительность насоса более важна, и для ее расчета используется следующая формула:
- Q = 0,86 * R / Dt, где
- R – суммарная мощность радиаторов или мощность котла,
- Dt – разница температур в контуре подачи и обратки (в автономных системах это значение составляет 20 градусов).
Преимущества и недостатки применения электрических котлов
Конкурентным преимуществом установки электрического котла в частном доме считается высокий уровень комфорта эксплуатации при минимуме затрат. Также среди достоинств силового оборудования отмечают следующие моменты:
- высокий уровень КПД, относительно компактные размеры, неприхотливость в эксплуатации,
- широкий диапазон мощности. Несложно подобрать модель оптимальной производительности для отопления площадей различной величины,
- не требуется разрешение для монтажа конструкции,
- безопасность эксплуатации, простота монтажа и обслуживания,
- экологичность оборудования.
Электрические котлы имеют высокий уровень КПД
К тому же модели электрических котлов отопления представлены в демократичном ценовом сегменте.
Большой минус применения электрических теплосиловых агрегатов – значительный уровень потребления электроэнергии. Чтобы нивелировать проблему, можно установить котельное оборудование с подключением к буферной емкости. Помимо дороговизны потребляемых энергоресурсов, также среди недостатков приборов отмечают необходимость заземления и риск поражения током.
Мощность
Мощность котла – важнейшая его характеристика, а значит, нужно правильно ее подобрать. Иногда ее привязывают к метражу и рассчитывают, ориентируясь на значение 1 кВт на 10 м2. Такая формула годится только для весьма приблизительной прикидки.
ПОЛЕЗНАЯ ИНФОРМАЦИЯ: Оформление гостиной обоями: дизайн интерьера
На самом деле ориентироваться надо на теплопотери. Если к примеру, они составляют 8 кВт, то нужен котел такой же мощности. В расчетах учитываются:
- площадь и высота помещения;
- степень утепления стен, пола, потолка;
- число внешних стен и их расположение по сторонам света;
- количество, габариты и тип окон;
- схема подключения батарей;
- регион проживания и другие параметры.
Тэновые электрокотлы
Лидеры производства компании ЭВАН и Теплотех. Популярность в большинстве своем, основывается на простом строении, следствием чего стала доступная цена оборудования.
В бак встроены нагреватели -ТЭН. Запускать можно либо все, либо определенное количество, зависимо от того, какая выбрана температура. Сами нагреватели – это спираль с достаточно большим удельным сопротивлением. Эта деталь находится в трубке из керамики.
В процессе нагревания она отдает свое тепло керамике. А уже та нагревает воду, поступающую в бак. Дополнительно электрокотел имеет специальную панель управления, где можно определить температурный режим. В современных моделях имеются датчики, которые «наблюдают» за работой котла и отключают его, если вдруг возникнет опасная ситуация.
В чем преимущества таких электрокотлов:
- Модели двухконтурного типа допускают подключение контура горячего водоснабжения;
- Можно применять для нагрева не только воды, но и любой иной жидкости;
- Простота конструкции позволяют выполнить несложный ремонт даже, если хозяин котла – непрофессионал в этом деле;
- Весьма бюджетен в плане приобретения;
- Хороший охват мощности.
Если объемы используемой воды действительно внушительны, то целесообразнее будет поставить бойлер для этих целей. Поскольку, в отдельных моделях во время включения кипятка, притормаживается согревание воды для отопления.
Слабости:
- Габариты подобных котлов довольно велики;
- На тэнах образовывается накипь, потому работоспособность котла со временем падает.
Что такое экономайзер и для чего он нужен
Конвекторный дымоход — изготавливаемый из высоколегированной жаропрочной стали теплообменник, устанавливаемый непосредственно на трубу отопительного котла или банной печи и используемый для повышения скорости обогрева основного пространства и эффективной подачи теплого воздуха в соседние помещения.
Использование экономайзера предпочтительно в случае регулярной эксплуатации очага в роли основного отопительного прибора. В таком случае устройство сможет взять на себя функцию радиаторного отопления, значительно повысив КПД всей отопительной системы. Максимальной эффективности при эксплуатации дымохода-конвектора можно добиться при его инсталляции на трубу твердотопливного котла.
Дымоходы конвекторного типа эффективны при организации отопления в банных помещениях. В таких случаях используются модели с возможностью перекрытия конвекционных каналов с целью направления всей вырабатываемой очагом энергии на быстрый прогрев парилки.
Однофазные и трехфазные электрические котлы
К выбору котла следует отнестись ответственно, поскольку нужно учитывать все нюансы, касающиеся электрообслуживания вашего дома. Электролинии не всегда способны справиться с нагрузкой, которая повышается после установки котла. Чтобы таких проблем не возникало, посетите отделение энергосбыта, к которому относитесь, и уточните (или попросите рассчитать) максимальную мощность, которую они смогут обеспечить. При расчете необходимых киловатт не забудьте про бытовые электроприборы, находящиеся у вас дома.
Схема строения одноконтурного настенного электрического котла: 1 — электрошкаф; 2 — контрольные лампы; 3 — регулятор температуры; 4 — термометр/манометр; 5 — выключатели мощности; 6 — главный выключатель; 7 — расширительный бак; 8 — кабельный ввод; 9 — предохранительный клапан; 10 — насос; 11 — обратная линия котла; 12 — штекерное соединение контура регулирования; 13 — предохранительный ограничитель температуры; 14 — предохранитель системы управления; 15 — воздушный клапан; 16 — облицовка котла с теплоизоляцией; 17 — реле давления воды; 18 — нагревательные стержни; 19 — подающая линия котла
Электрический котел устроен довольно просто: он содержит теплообменник и блок управления и регулировки. Существуют доукомплектованные модели, которые снабжены расширительным баком, фильтром и насосом.
Для отопления частных домов применяются электрокотлы небольшой мощности: однофазные и трехфазные.
Схема каскадного подключения электрического котла
Однофазный электрический котел
Однофазным считается котел, работающий от сети 220 В. Подключить его не составит труда, поскольку все дома оснащены необходимым напряжением. Мощность устройства варьируется от 6 до 12 кВт. Целесообразно использовать такой котел для площади, не превышающей 100 м?. Особенности электрического котла для отопления дома (220 В):
- работает по принципу водонагревательного прибора (бойлер, чайник);
- для работы достаточно обычной сети (220В);
- для его установки не нужно получать специальное разрешение.
Электрический котел для использования в частном доме
Трехфазный электрический котел
Трехфазный котел более мощный, чем однофазный, и подходит для установки на площади более 100 м?. Чтобы сеть могла выдержать нагрузку при эксплуатации котла, их производят трехфазными, то есть подключаются они к сети на 380 В. Особенности трехфазного котла:
мощный
Нужно брать во внимание отапливаемую площадь. На 10 м? требуется 1 кВт + 10-20% (для запаса); работает от трех фаз (380 В), необходимо увеличивать мощность подачи тока в доме; необходимо получение специального разрешения в энергосбыте на увеличение потребляемой мощности и установку котла;. номинальный ток, который должен быть в каждой из трех фаз, варьируется от 6,1 до 110 А
Этот показатель влияет на выбор автоматического выключателя, проводку, ее поперечное сечение (допустимые показатели указаны в таблице ниже). Правильный подбор необходимых элементов исключит возможность возгорания
номинальный ток, который должен быть в каждой из трех фаз, варьируется от 6,1 до 110 А. Этот показатель влияет на выбор автоматического выключателя, проводку, ее поперечное сечение (допустимые показатели указаны в таблице ниже). Правильный подбор необходимых элементов исключит возможность возгорания.
Таблица «Значения сечения кабеля и тока предохранительных автоматов»:
| Мощность котла (до указанного значения) | Значение тока предохранительных автоматов, для однофазных котлов | Значение тока предохранительных автоматов, для трехфазных котлов | Сечение кабеля для однофазных котлов | Сечение кабеля для трехфазных котлов |
| 4 кВт | 25 А | 4,0 мм? | ||
| 6 кВт | 32 А | 6,0 мм? | ||
| 10 кВт | 50 А | 10,0 мм? | ||
| 12 кВт | 63 А | 16,0 мм? | 2,5 мм? | |
| 16 кВт | 32 А | 4,0 мм? | ||
| 22 кВт | 40 А | 6,0 мм? | ||
| 27 кВт | 50 А | 10,0 мм? | ||
| 30 кВт | 63 А | 16,0 мм? | ||
| 45 кВт | 80 А | 25 мм? | ||
| 60 кВт | 125 А | 35 мм? |
Какой бы котел не устанавливался для дешевого отопления дома электричеством, в любом случае, необходимо предусмотреть резервный источник тепла.
Монтажные размеры электрического котла Buderus Tronic 5000 Н
На что обратить внимание при выборе котла для частного дома
Первым пунктом должен быть далеко не внешний вид или марка, пусть и самая известная и надежная. Лучший электрический котел это тот, который обеспечит эффективный обогрев дома.
- Прежде всего учитывают мощность и способ подключения к электросети. Отопительный электрический котел может быть однофазным (220 В) с мощностью не больше 7-12 кВт или трехфазным (380 В) с любой мощностью.
- Определяются с внутренней конструкцией и необходимыми функциями.
- Будет ли котел работать только для обогрева или должен обеспечивать дом горячей водой. Это влияет на выбор одноконтурной или двухконтурной модели и возможности ее подключения в общую систему.
- Единственным или дополнительным будет электроотопление.
- Регулировка мощности бывает плавная и ступенчатая, а в самых дешевых агрегатах ее может не быть вовсе.
- По способу установки котлы бывают напольные и настенные. Настенные редко используют, если система отопления подразумевает большой объем теплоносителя, дома с площадью более 120-150 м2.
Электрический котел для нагрева воды
Как подготовить электрокотел к работе
После того как установка электрокотла в систему отопления завершена, можно приступать к его запуску. Для начала следует заполнить контур теплоносителем. Вы можете выбрать антифриз или воду. Антифриз закачивается через кран подпитки. Подробнее об этом можно почитать в статье о том, как залить антифриз в систему отопления. Вода заливается аналогично, если только в контуре нет подпитки от водопровода. В корпус котла вмонтирован манометр, который показывает уровень давления. На его шкале цветом указан допустимый диапазон работы. Нормой считается значения в зеленой зоне от полуторы до двух атмосфер.
После того как удалось правильно врезать электрокотел в систему отопления с подпиткой от водопровода, нужно подготовить его к работе:
- открываем кран холодной воды, немного;
- следим за показаниями манометра;
- при достижении давления в пределах нормы перекрываем кран подпитки;
- вверху котла есть воздухоотводчик, которым нужно стравить воздух;
- затем добавить еще теплоносителя;
- согнать воздух с батарей;
- проверить давление, в случае необходимости еще добавить воды.
Все, нагреватель готов к работе. Чтобы тэны не так сильно обрастали накипью, которая существенно уменьшает их КПД, лучше использовать подготовленную воду.
Подводя итоги можно сказать, что главное в подключении электрического котла – это обеспечить надежность проводки. Даже при правильном подключении к контуру и электросети, проводка может не выдержать высокой нагрузки, так как нагреватель – это очень мощный прибор, который потребляет много электроэнергии. Надо использовать медные провода. Желательно установить отдельный блок предохранителей на нагреватель. При подключении к контуру нужно делать правильную обвязку и следить, чтобы все стыки были герметичными.
Общие сведения об электрических котлах
Теплосиловые агрегаты этой категории привлекают высоким КПД и неприхотливостью в эксплуатации, поэтому пользуются особой популярностью среди потребителей. Производители электрических котлов предлагают следующие виды оборудования:
- ТЭНовые электрокотлы. Работа отопительного устройства обеспечивается нагревательным элементом в теплообменнике. Прибор выделяется простотой монтажа и подключения, удобством эксплуатации.
- Электродные устройства. Теплоноситель прогревается в процессе прохождения электричества через воду с солями. Подача тока вызывает движение частиц воды, их энергия превращается в тепло. Электроды со временем растворяются в рабочей среде, поэтому требуется периодическая замена элементов.
- Индукционные котлы отопления. Теплообменник представляет собой диэлектрическую трубу с ферромагнитным стержнем.
При работе последнего устройства возникают вихревые токи, и образуется тепловая энергия.




































