Выбор сырья для строительства
Для возведения беседки можно выбрать один из двух типов бревен из бруса:
- Клееный. Не восприимчив к плесени, вредителям и влаге. Он считается долговечным и надежным материалом, обладает хорошими показателями эстетичности и доступен в цене. Клееный брус больше подойдет для открытых беседок.
- Профилированный. Профилированный брус позволяет быстро и просто построить беседку за счет пазовой системы крепления. Этот вариант больше подойдет тогда, когда беседка будет застекленной. Такая система крепления не даст образоваться щелям, поэтому мостиков холода не возникнет.
Наиболее оптимальная толщина материала 100х100 мм, при этом можно выбирать как сосновый брус, так и сырье из другой основы. Если же планируется остекление, то можно использовать сечение 150х150 мм.
Делаем все по закону
По окончании всех строительных работ каркасную пристройку к дому следует узаконить. Владельцы, зачастую с опозданием начинают задумываться об узаконивании своей постройки. Но более дальновидный хозяин понимает, что это следует сделать перед началом работ. Самовольно сооруженную пристройку гораздо сложнее легализовать, нежели все согласовать перед началом работ.
Если вы уже возвели строение, то появится необходимость обращаться в суд, решение которого не всегда однозначно и, в случае проигрыша дела, придется сносить шедевр архитектурного строения. Самое неприятное, что это придется делать за свой счет. Можно, конечно, не ставить никого в известность и получать удовольствие от использования неучтенных квадратных метров, но это чревато тем, что впоследствии вы не сможете свою собственность продать, сдать в аренду, а также завещать или дарить.
Во избежание неловких моментов, стоит к походу в суд подготовиться основательно, собрать все необходимые (и не только) документы, в ряду которых самыми важными являются:
- Документ на право собственности землей;
- На право собственности жилых помещений;
- Бумага из БТИ;
- Разрешительный акт из ЖКХ;
- Выписка из домовой книги о зарегистрированных гражданах в вашем доме;
- План каркасного пристроя;
- Проект дома;
- Съемка пристроенного сооружения в масштабе 1:500;
- Одобрение соседей (в случае если строение будет граничить с их наделом земли);
- Справка от эпидемиологической службы;
- В некоторых случаях может потребоваться фотография участка, основного строения и самой пристройки.
После подачи искового заявления следует ожидать ответ, который придет по почте. Чтобы быть уверенным, что ваш иск дошел по адресу, следует позвонить и уточнить доставку, делается это, как правило, через 10 рабочих дней.
Судьи имеют право отклонить прием искового заявления только в 2 случаях:
- Уже принятое решение по поводу вашего запроса;
- Или же неграмотно составленное исковое заявление. При втором варианте отказа следует подать повторный иск.
На время судебного разбирательства ответчиком становится муниципалитет, истцом же в данном случае является сам собственник жилья, к которому осуществлен пристрой. В случае положительного решения суда для владельца ему следует взять в Росрегистрации платежный документ для оплаты госналога, внести деньги и получить все причитающиеся документы по узакониванию самовольного сооружения.
Если говорить о расходах, то порядка 10 000 рублей уйдет на услуги юристов, сбор информации и т. д. Госпошлина в этом случае равняется, в среднем, 500 рублей, в Градостроительном кадастре запись будет стоить около 20 000 руб., и не более 60 000 руб. стоит судебная строительно-техническая экспертиза. Подсчитав все эти расходы, мы понимаем, что окромя затрат на саму постройку, ее узаконивание потребует, в среднем, 100 000 рублей.
Поэтому настоятельно рекомендуется легализовать строение до его возведения, это будет проще, быстрее и легче, а главное — на порядок дешевле.
Особенности присоединения пристройки к деревянному дому
Перед тем как начинать строительство пристройки к деревянному дому, следует внимательно осмотреть стены основной постройки. Если есть прогнившие брёвна, то их следует заменить. Неплохо обработать стену веществами от возникновения плесени, прокрасить краской или лаком. На этом этапе следует продумать – будет ли утепление этой стены между домом и пристройкой.
Схема технологии устройства столбчатого фундамента под пристройку из пеноблоков
Затем следует правильно срастить фундамент, который принадлежит деревянному дому и новый. Для этого в старый фундамент вставляется арматура длиной около метра.
Вторая часть арматуры зашивается в фундамент для пристройки к дому. Если фундамент столбчатый, то крайний столб присоединяется к деревянному дому таким же способом.
Многие строители не рекомендуют сразу делать жёсткую привязку стен из ячеистого бетона к зданию. Это связано с тем, что после усадки могут образоваться трещины в соединении.
Схема пристройки дополнительной комнаты к жилому дому
Расстояние между строениями лучше всего заложить минеральной ватой, затем можно сделать деревянные планки и обшить конструкцию сайдингом. Такой подход позволит не только спасти дом от перекоса, но и сохранит всё тепло внутри помещения.
Крыша постройки из ячеистого бетона должна быть ниже, чем кровля основного здания. Такой подход позволит избежать проблем после усадки, к тому же, атмосферные осадки не будут попадать на части основного здания.
Теперь можно перейти к утеплению. Использовать можно практически любой доступный материал. Только не стоит забывать о том, что пеноблоки требуют обязательной установки пароизоляции.
Схема мелкозаглубленного фундамента под пристройку из пеноблоков
Подведём итоги:
- К деревянному зданию пристраивать сооружение из пеноблоков можно;
- Фундамент постройки может быть столбчатым и ленточным, монолитный не рекомендуется;
- Нужно дождаться усадки ленточного фундамента;
- Стены устанавливаются из пеноблоков, можно использовать дополнительные укрепляющие элементы (раствор, арматура);
- Проходы устанавливаем при помощи деревянных подпорок и перемычек с ложбиной;
- Крышу делаем не жёсткой конструкции, из деревянных балок;
- Стены к основному зданию присоединяем без жёсткого крепления;
- Крыша пристройки должна быть ниже покрытия дома.
Форма и предназначение пристройки

Первое, что придется решить владельцу дома, — расположение нового помещения. Где будет находиться пристройка, зависит от его предназначения. Если это зона отдыха, она обязательно располагается с солнечной стороны. На входе обычно делают террасу, веранду или крыльцо. Склад может быть с любой стороны. Гараж имеет больше требований: к нему обязателен доступ и возможность проложить асфальт, иначе ландшафт участка сильно пострадает.
Ни у одного типа пристройка нет строго регламентированной формы. Чаще всего делают стандартные четырехугольные строения, однако даже гараж или крыльцо могут быть, например, круглыми. Дизайн зависит только от фантазии владельца коттеджа. Решить, какой формы будет новое помещение, нужно до составления чертежей. То же относится к площади. Не зная эти цифры, закупить оптимальное количество материалов не получится.
Внимание! Если планируется пристройка с фундаментом, нужно учесть тип ландшафта. Для ухабистой местности подходят не все основания.
Инструменты и материалы для создания каркасного пристроя к дому
Разрешение из БТИ получено. Теперь необходимо подготовить инструменты и материалы для строительства. Вам потребуются:
- цементный раствор;
- деревянные доски;
- песок;
- мелкие камушки;
- ОСБ-плиты;
- утеплитель;
- гидроизоляция;
- шпаклевка;
- краска для ОСБ-плиты;
- материал для устройства крыши;
- деревянная или металлическая дверь (по желанию хозяина);
- окно в пластиковой или деревянной раме (в случае необходимости);
- линолеум, керамические плиты или ламинат для отделки пола;
- перфоратор;
- строительный миксер;
- валики и кисти;
- гвозди и саморезы;
- монтажная пена;
- строительный степлер;
- лопата;
- металлические трубы диаметром 15-20 см, длиной 2,7-3 м.
Цементный раствор реализуют в пакетах по 25 килограммов каждый. Правила использования указаны на упаковке товара. Цена – 700 до 2 тысяч рублей, одни из лучших производителей — «Силка», «Макссил», «Мапей».

Основание пристройки должно быть прочным и устойчивым, поэтому для фундамента выбирайте качественный цемент, а не дешевую смесь
Деревянные доски понадобятся сначала для создания опалубки фундамента. Затем ими можно будет застелить залитый цементом пол, чтобы утеплить его и смягчить. Для подобных целей лучше всего подойдут ель, сосна, дуб. Толщина доски – не менее 5 миллиметров. Длину выбирайте в зависимости от площади каркасной пристройки к дому.
Выбирайте ОСБ толщиной не менее 7 миллиметров с размерами 100 × 100 сантиметров. Сама плита должна быть гладкой и однотонной. Это говорит о высоком качестве изделия.
Как утеплитель можно использовать минеральную вату или пенополистирол. Первый вариант дешевый, но материал быстро приходит в негодность. Пенополистирол имеет длительный срок эксплуатации (до 20 лет). Реализуется в виде плит, размеры одной — 200 × 100 сантиметров.
Выбирайте изделия от 10 миллиметров толщиной от компаний: «Пеноплекс», «Экстрол», «ТехноНиколь».

Пенополистерол для утепления пристройки к дому предпочтительнее, чем минвата. Он не впитывает жидкость, не боится перепадов температур
Гидроизоляция нужна обязательно. В качестве таковой можно использовать полимерный рулонный материал. Толщина – не менее 5 миллиметров.
Цена за квадратный метр – около 500 рублей. Среди фирм пользователи рекомендуют отдавать предпочтение следующим: «Боларс», «Пенетрон», «Полилен», «Зубр».
Шпаклевка и краска нужны для наружной и внутренней отделки. Узнать о выборе краски подробнее можно здесь.
На крышу можно положить металлочерепицу. Это прочный и устойчивый к погодным катаклизмам материал, который прослужит долго, к тому же он выглядит стильно, стоит недорого.
За квадратный метр вы заплатите 200-400 рублей. Толщина черепицы должна быть не менее 5 миллиметров.
Важно: проще всего создать каркасный пристрой к дому с помощью ОСБ. Такая комната будет теплой и прочной, если правильно утеплить ее
Конечно, возвести стены можно из кирпича, пеноблоков или деревянных брусьев. Но это гораздо дороже и энергозатратней.
Сколько взять материала для стен и пола? Какова сумма затрат? Все зависит от размеров самого пристроя.
Определиться с видом помещения помогут чертежи, представленные ниже:

С помощью такого чертежа можно создать простой пристрой к дому с односкатной крышей. Используйте собственные размеры

Такой чертеж пристройки к дому поможет просто и быстро возвести дополнительную комнату или, например, кладовую
Руководство по строительству
Расчеты
Перед тем как начать строительство пристройки к зданию, ее необходимо формально легализировать в специальной инстанции независимо от ее назначения. Провести расчеты, составить смету необходимого материала и выяснить стоимость будущего сооружения являются первоначальными задачами. Для этих целей можно обратиться к специалистам или рассчитать все самому. Для расчета материала необходимо рассчитать квадратуру пристройки.
Расчет производится по следующей формуле: (периметр) х (высоту) = общая квадратура помещения.
Но если в пристрое планируются окна и двери, то их нужно вычесть из общей квадратуры, а именно: (общая квадратура помещения) – ((высота оконного проема х ширина) х на количество + (высота дверного проема х ширина) х количество) = квадратура для расчета количества стройматериалов.

Выбор разновидности строения
Существует ряд известных видов пристроек. По статистике самыми распространенными пристройками являются следующие:
- боковая пристройка с соединенной либо отдельной крышей;
- надстройка в виде мансарды;
- второй этаж.
Как строить?
Чтобы сделать пристройку к кирпичному дому, следует придерживаться следующего алгоритма действий:
приступить к строительству следует с разметки территории. Ради этого устраняют верхнюю прослойку почвы, зону разравнивают и делают разметку;
следом обозначают границы пристроя в соответствии с планом. По углам будущего строения забивают колышки и натягивают шнур;
всякое строение требует прочного основания дома
Фундамент для строительства не рекомендовано объединять с основным зданием, так как они располагают разным уровнем усадки;
между фундаментом здания и пристройкой следует сохранить дистанцию около 5 см;
при постройке основы нужно принимать во внимание задуманный вес конструкции и свойства почвы. При постройке на мягком грунте вероятен сдвиг основания дома, что может привести к отделению пристройки от стен здания
Облегченный фундамент отнюдь не выдерживает веса кирпичных стенок, по этой причине кирпичную пристройку на таком основании строить не рекомендовано. Предпочтительней всего подобрать ленточную основу пристройки;


- перед заливкой бетона копают траншею, масштабы которой выбираются в зависимости от характеристик строящейся конструкции;
- в ров закладывают опалубку подходящей конструкции, что делается из сбитых меж собою досок;
- бетон приготовляется с трех составляющих песка, одной составляющей цемента и шести составляющих щебня;
- основание под пристройку затопляют послойно. Верх пристройки сглаживают мастерком и оставляют вплоть до полного затвердения;
- если необходимо в короткий срок возвести пристройку, можно остановиться на выборе каркасной системы, которая легко собирается и складывается с деревянного каркаса и панелей;
- отделка может осуществляться сразу после постройки. При потребности пристройку можно преобразовать.




Пристройка из кирпича – это наиболее сложная в осуществлении, но построить ее собственными руками можно, придерживаясь следующего алгоритма:
- до начала возведения стен необходимо проверить ровность поверхности основания дома. В случае если она не очень ровная, возможно нарушение стен при усадке;
- привязывание пристройки к стене дома выполняется при помощи отверстий, что проделываются через каждые 3 ряда. В них подставляется металлический каркас;
- при постройке кирпичной пристройки к зданию арматура будет держаться в швах кладки;
- для соблюдения дистанции между кирпичами используется арматура, но она не должна быть очень крупного диаметра;
- уже после того, как стенки выгнаны, их верх закрепляют бетонным пояском. После затвердения раствора приступают к постройке перекрытий.


Добротность пристроя зависит от избранного проекта и использованных материалов. Пристройка к кирпичному дому может быть сделана из монтажных панелей, дерева либо кирпича. Построить его собственными руками способен каждый человек, обладающий минимум навыков в сфере строительства, а главное – правильно закрепить конструкцию.
Более подробно о том, как выполнить данные работы своими руками, смотрите в следующем видео.
Утепление и подвод коммуникаций
Жилое помещение и теплую веранду необходимо качественно утеплить. Теплоизоляции подвергаются следующие конструктивные элементы пристройки:
- стены – наружное или внутреннее утепление;
- пол – утепление синтетическими утеплителями в процессе монтажа;
- перекрытия – минвата или каменная вата укладывается при устройстве крыши.
Для утепления стен можно использовать минеральную (базальтовую) вату в плитах или рулонах. Под слой теплоизоляции обязательно укладывается паробарьер. К утеплению пристроек из бруса предъявляются те же требования, что и при теплоизоляции брусовых коттеджей.
Перед финишной отделкой на готовое сооружение проводятся все необходимые коммуникации. Для веранды или террасы достаточно подведения электричества. Если в пристройке будет располагаться кухня или санузлы, то требуется подведение водоснабжения, газа и организация водоотведения. Все это указывается в проекте и учитывается в процессе строительства пристроя.
Возведение стен пристройки
Для связи стен двух зданий лучше не использовать жесткое соединение. Разница в возрасте старой и новой стены могут привести к неравномерной просадке и появлению трещин. Между стенами здания оставьте расстояние в 2-3 см, которое после возведения стен заполните вспененным полиуретаном.
Каркасные стены
Необходимыми материалами для возведения каркасных стен является качественная древесина и крепежные уголки. Каркас устанавливаем к основанию пристройки на несущие элементы, установленные ранее.
Для легкости и эффективности сборки рекомендуется деревянные элементы собрать на земле, а потом установить:
- Первыми смонтируйте угловые стойки, фиксируя их усиленными стальными уголками. Промежуточные брусья скрепите или методом полной врубки, или таким же способом как угловые балки.
- Промежуточные брусья дополнительно закрепите временными укосами, которые надо снять после полного монтажа стен пристройки.
- Верхний ярус каркаса закрепите аналогично с нижней частью. Для лучшей прочности каждый брус можно зафиксировать раскосами с двух сторон.
- После установки каркаса проведите обшивку внешних стен пристройки с помощью деревянных досок или листов фанеры.
Крепить деревянные элементы с помощью уголков быстрее и надежней, чем методом полной или частичной вырубки толщины бруса
Кирпичные стены
Технология возведения кирпичных стен включает такие этапы:
- Перед началом строительства выровняйте фундамент с помощью цементно-песчаной стяжки. Сверху уложите слой рубероида для гидроизоляции. Первый ряд кирпичей уложите на рубероид без помощи раствора.
- Арматурные прутья мелкого диаметра прикрепите к кирпичным рядам главного дома. Просверлите отверстия через каждые два ряда кирпича. В процессе кирпичной кладки пристройки выступающая арматура из стен главного дома окажется в швах между новым уложенным кирпичом.
- Параллельно стене натяните веревку, которая поможет возвести кирпичные ряды максимально ровно. Между каждым третьим рядом кирпича можно уложить арматурную сетку, которая уменьшит усадку и увеличит прочность стен.
После возведения стен свяжите их сверху бетонным поясом. Бетонный раствор залейте в возведенную армированную опалубку.
Кладку первого ряда начинают от угла, а толщина стен зависит от функций будущей пристройки
Выбор материалов для пристройки к каменному дому

Пристраивание дополнительных помещений к жилому дому из кирпича, пеноблоков или железобетонных плит требует организации мощного основания. Пристраиваемые конструкции целесообразнее строить из более легких материалов, чтобы не провоцировать перекос несущих стен и подвижку грунта.
К каменному дому можно сделать пристройку из:
- ОСП-панелей на каркасе. Легкую постройку ставьте на сваи из блоков, винтовых опор. Остов выстраивайте из бруса или бревна. Стены собирайте из внешней обшивки, утеплителя, гидро-, пароизоляции и внутренней зашивки;
- ЖБИ-панелей. Оборудуйте качественный фундамент в виде ленты, монолитного фундамента. Стены с оконными и дверными проемами соберите отдельными сегментами, поднимайте с помощью спецтехники;
- бревна или бруса. Под пристраиваемую коробку организуйте ленточное основание, бетонную сплошную заливку или поле из винтовых свай. Собранный сруб потребует усадки в течение 1 года. Приступайте к утеплению и отделке только спустя 12 месяцев;
- пеноблоков. Пристройку возводите на ленточный или бетонный монолитный фундамент. Стены стройте по принципу кирпичной кладки с промазыванием рядов строительным раствором и армированием.
В зависимости от задач, которые будет выполнять конструкция, пристройку необходимо утеплять, электрифицировать, оборудовать вентиляцией, водопроводом, канализацией, отоплением.

Чем отличается веранда от террасы: основные отличия, фото
Возведение пристройки из бруса
Сооружение фундамента
Специфика устройства фундамента под пристройку из бруса заключается в том, что он должен иметь связь с основанием основного строения. Любое новое строения со временем дает усадку, поэтому существует риск возникновения трещин в местах соединения двух конструкций.
Чтобы избежать такого негативного явления, применяют металлические связки или дают выдержку под осадку нового основания. Должна иметься связь между новой и старой конструкциями.
Важно, чтобы заглубление и конструкции обоих оснований было одинаковым. Если есть препятствия для возведения монолитной конструкции, прибегают к независимым сооружениям с устройством деформационного шва. При сооружении столбчатого фундамента влияние конструкций друг на друга будет минимальным
Этого можно достичь при правильном выборе высоты и сопряжении столбов основания
При сооружении столбчатого фундамента влияние конструкций друг на друга будет минимальным. Этого можно достичь при правильном выборе высоты и сопряжении столбов основания.
Сооружение фундамента
Все остальные мероприятия по строительству фундамента аналогичны объему работ при возведении любого другого сооружения. При этом учитываются рельеф местности, уровень грунтовых вод и глубина промерзания, обязательно организуют гидроизоляцию.
Возведение стен: технология процесса
Пристройка отличается тем, что одна из стен – общая со стеной дома. Поэтому требуется возвести только три стены. В некоторых случаях конфигурация дома позволяет сделать пристройку из бруса с двумя стенами.
Соединение двух деревянных конструкций не составляет большого труда. Для этого используют металлические крепежные детали.
Возведение стен
При выполнении работ по возведению пристройки учитывайте следующие рекомендации.
Если сооружение предназначено для проживания круглый год, то минимальный размер бруса составляет 200х200 мм.
Вследствие того, что брус довольно массивный материал, все конструкции из него подвержены усадке. Поэтому требуется надежное и прочное соединение нового сооружения со старым. Для этого используют металлические скобы, которые позволяют достичь качественного соединения.
Усадки требует около года до полного завершения. Продолжительность этого процесса зависит от габаритов пристройки, качества древесины и состояния основного сооружения.
По окончании усадки скобы демонтируют со старых мест и переносятся на новые позиции. В ходе усадки здания производят мероприятия по утеплению. С этой целью используется любой доступный утеплитель, например, минеральная вата или войлок.
Для более привлекательного внешнего вида пристройки из бруса и дополнительной защиты от потерь тепла используются специальные нащельники. При усадке происходит их некоторое деформирование, поэтому их со временем демонтируют и повторно фиксируют.
При подборе размеров материала необходимо исходить из того, что зазор на стыках должен быть минимальным. В идеальном случае зазоров быть не должно.
Устройство кровли
Технология монтажа крыши для пристройки из бруса не имеет отличий от принятых в строительстве способов выполнения этого вида работ. Они ведутся по следующему алгоритму:
- Создается стропильная система, на которую приходится нагрузка конструкции.
- Устраивается обрешетка или укладывается настил.
- Осуществляется облицовка фронтонов.
- Производится подшивка карнизов.
- Монтируются ветровые элементы.
- Укладывается кровля методом, соответствующим характеристикам материала.
Материал кровли выбирается соответствующий тому, который покрывает крышу главной постройки. Но ограничений нет, и возможен дизайнерский подход.
Если крыша пристройки расположена ниже, чем у главного здания, то ее следует выполнить с большим углом наклона. Это создаст условия для беспрепятственного удаления осадков с поверхности.
Правильное соединение двух крыш
Соединение крыш обеих построек не является обязательным условием, но больше подходит при создании летней веранды. Если помещение планируется использовать в течение года как жилье, то без привязки этих конструкций не обойтись. Только в этом случае обеспечивается требуемый уровень теплоизоляции.
Крыша частично разбирается, и перекрытия связываются металлическими уголками. Завершив это мероприятие, устраивается теплоизоляционный слой и монтируется кровля.
В случае сооружения пристройки в двух уровнях требуется устройство системы водоотвода.
Этапы строительных работ
Деревянному дому требуется достаточно легкий фундамент, который не будет нести на себе серьезную нагрузку. Можно использовать ленточную конструкцию. Для этого достаточно отрыть ров на глубину 10-20 см, собрать арматурный каркас и залить получившееся основание бетоном.
Сборка стен деревянного дома не требует много времени, так как обычно стройматериал для этого выпускается уже готовым для монтажа и соединяется в единую конструкцию с помощью шлицев и пазов
При этом стоит обратить особое внимание на межшовное соединение стен. В древности оно выполнялось с помощью мха и лишайника, сейчас же для этого применяются составы на основе полимеров
Для крепления пристраиваемых стен используются металлические скобы или же винты с пластинами. Стоит учитывать и геологические особенности той местности, где планируется возводить строение. Дело в том, что основная постройка с течением времени может при некоторых условиях дать усадку, это является нежелательным эффектом.
Кроме того, если материал для стен деревянного дома не прошел обработку против влаги и пожара еще на заводе, стоит провести ее на месте сборки строения. Это сделать несложно, так как достаточно просто промазать дерево соответствующим составом.
Пошаговая инструкция
1. Монтаж фундамента
Схема вариантов столбчатого фундамента под каркас
Первый этап строительства — фундаментные работы. Обычно для пристройки устраивают отдельный фундамент, который нужно при помощи специальной закладной арматуры сцепить с основанием старого дома.
Схема армирования ленточного фундамента
Конечно, наиболее предпочтительный вариант – это общее основание, заложенное ещё на этапе строительства первого дома, однако, так далеко из наших соотечественников мало кто заглядывает, что, впрочем, по-житейски вполне понятно и объяснимо. При закладке нового фундамента необходимо обеспечить максимальную идентичность не только по форме, но и по глубине залегания обеих конструкций.
Схема устройства пола каркасного дома
Если добиться полноценной монолитности невозможно, то между двумя фундаментами нужно оставить так называемый деформационный шов, чтобы при подвижках грунта по весне на стенах пристройки и в самом основании не образовались трещины.
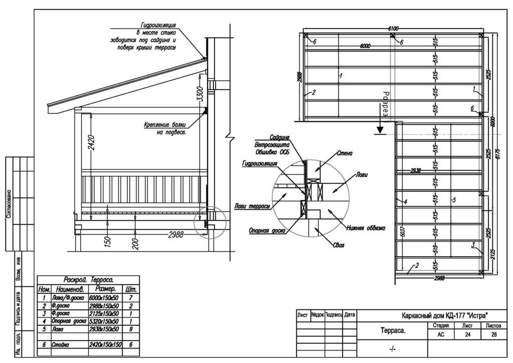
2. Монтаж обвязочного бруса
Обвязка — второй этап возведения пристройки. Толщина стен каркасников обычно равняется 20 см. В пристройках же редко размещают жилые комнаты, что позволяет сократить толщину стены до 10 см. Поэтому диаметр бруса для обвязки и сечение вертикальных стоек тоже будет составлять 10 см.
Монтаж обвязочного бруса
Ниже на рисунке представлена возможная схема монтажа нижней обвязки пристройки:
3. Монтаж каркаса
Монтаж каркаса
При сборке каркаса наибольшее внимание нужно уделить креплению стоек. Рисунок ниже поясняет его особенности
Шаг между вертикальными стойками рекомендуется делать в 60 см, тогда при укладке плит минерального утеплителя не возникнет никаких трудностей. Соответственно, и расстояние между лагами пола и стропилами тоже нужно принять за 60 см.
4. Монтаж верхней обвязки и установка балок перекрытия
Монтаж верхней обвязки и установка балок перекрытия
Крепление верхней обвязки производится по тому же принципу, что и нижней. Вид сбоку представлен на рисунке ниже.
5. Обшивка и утепление потолка
Потолок, как и стены внутри, лучше всего обшить вагонкой. Это наиболее благоприятный с ценовой и эстетической точек зрения вариант. Сосновая евровагонка прослужит как минимум 30 лет, а при должном уходе и того больше. Для утепления потолка в целях экономии можно использовать керамзит, насыпав его сверху слоем в 10–12 см.
Сборка стропильной системы
Возможный вариант монтажа стропильной системы приведён на рисунке ниже:
7. Обшивка кровли
Обшивка кровли
Процесс крепления кровельного материала не отличается какими-либо нюансами, кроме одного: верхняя часть листов должна оказать под кровельным материалом основного здания. Для этого может потребоваться снять часть креплений. Примерная схема кровельного «пирога» представлена на рисунке ниже.
Закупка стройматериалов и подготовка инструментов
Чтобы определиться с количеством строительных и отделочных материалов, крепежа и утеплителя, составляется проект будущей пристройки с размерами. По нему рассчитывается общая смета запланированных работ. Здесь учитывается этажность постройки, общая площадь, количество оконных и дверных проёмов. Учитывая, что пристрой будет использоваться в качестве комнаты или кухни, в смету включаются расходы на подведение коммуникаций.

Из инструментов могут потребоваться:
- рулетка;
- болгарка;
- крепёжные элементы;
- уголок;
- молоток;
- ножовка по дереву;
- строительный уровень;
- перфораторная дрель;
- шуруповёрт.
Фундамент
Пристройку из бруса нельзя устанавливать просто на землю, такие строения требуют прочного основания, поэтому без заливки фундамента здесь не обойтись. В большинстве случаев для пристроенных сооружений используются ленточные фундаменты как наиболее простой и практичный вариант.

Это обязательное требование, игнорировать которое нельзя. Если пренебречь армированием, фундамент пристройки со временем может просесть или съехать, что повлечёт за собой дополнительные финансовые затраты на реставрацию.
Заливается ленточный фундамент по такой схеме:
- выполняется разметка территории;
- выкапывается ров заданной глубины и ширины;
- ставится опалубка;
- выполняется армирующая связка;
- внутреннее пространство опалубки заполняется бетоном.

Дальнейшие работы проводятся после того, как бетонная смесь наберёт необходимую прочность. Начальная стадия схватывания обычно занимает 2–3 дня, этого оказывается достаточно, чтобы фундамент мог выдерживать давление возводимых стен без риска деформации.
Перед началом дальнейшего строительства фундамент защищается от грунтовых вод гидроизолирующим слоем. Для этих целей подойдёт рубероид или специальные мастики на битумной основе.
Возведение стен
В целом этот этап не отличается от строительства обычного деревянного дома из профилированного бруса.
Элементы конструкции складываются венцом, при необходимости фиксируются между собой металлическими перемычками. При возведении стен не стоит забывать о способности древесины к линейному расширению, поэтому все участки крепления и соединения элементов способом шип-паз подразумевают оставление небольшого зазора. Для этих целей оставляется и деформационный шов, который впоследствии заполняется монтажной пеной.

Если основное строение тоже выполнено из древесины, дом и пристройку можно связать между собой металлическими скобами, которые устанавливаются через 2–3 венца.
Крыша
Вне зависимости от того, жилым будет пристрой или временным, кровлю рекомендуется делать односкатной, чтобы обеспечить беспрепятственное стекание дождевой воды. Если речь идёт о веранде или летней комнате, соединять крышу пристройки с основной кровлей необязательно. Здесь можно обойтись монтажом дополнительного бруса, который придаст конструкции определённую жёсткость и прочность.

Жилую пристройку правильно будет подвести под общую крышу, чтобы исключить пробелы в теплоизоляции. Для этого демонтируется часть основной кровли перекрытия деревянного дома и пристройки связываются между собой, укладывается слой гидро- и теплоизоляции, настилается кровельный материал.
Внутренняя отделка
Это завершающий этап строительства, который остаётся на усмотрение домовладельца. Брус имеет довольно презентабельный внешний вид, поэтому вполне можно обойтись без внутренней отделки.

Если такая необходимость возникла, профессиональные отделочники рекомендуют выждать 10–12 месяцев, пока деревянный пристрой усядется на положенное место. Иначе может произойти деформация финишного покрытия.
Перед проведением внутренней отделки имеет смысл уложить гидроизоляционный слой и утеплитель, только после этого приступать к финишной отделке.
Виды конструкций
Далее будут рассмотрены несколько вариантов того, как сделать своими руками пристройку к деревянному дому: примеры из разных материалов с фото, а также пошаговая инструкция и чертежи для каркасной пристройки.
Из бруса
Для строения из этого материала наличие фундамента является обязательным условием. Оцилиндрованный брус может похвастаться эстетичным внешним видом. Однако его не так уж часто выбирают для жилых построек. Все потому, что у него небольшой недостаток – этот материал довольно тяжелый, поэтому через некоторое время случится усадка.

И все же нельзя не учесть достоинства оцилиндрованного бруса:
- быстрое использование в ходе работы;
- доступная цена;
- экологичность.
Не стоит забывать про обвязку из того же материала, которая должна быть расположена в верхней части постройки.

Вот несколько советов от специалистов для упрощения монтажа из бруса:
- Крепежные элементы лучше всего выбирать из оцинкованного металла.
- Обязательна обработка антисептиком, а также специальным огнеупорным раствором.
- Теплоизолировать материал будет лучше только с внутренней стороны помещения.
- Чтобы сократить период усадки, лучше заниматься строительными работами в холодный сезон.
Также специалисты утверждают, что, если дом из камня, то для стыковки такой пристройки потребуются подвижные уплотнения. Тогда можно будет устранить сквозняки и уменьшить потерю тепла.
Кирпичная
Если дополнительное помещение запланировано из кирпича, то для укрепления стыковки потребуется штробление (для дальнейшей закладки арматуры).

Кирпич – материал, который отличается долговечностью. Из него можно построить все что угодно
Но важно подобрать крепкий фундамент.
Основные моменты, которые следует учесть:
- деревянная постройка должна быть целой и ровной, без гнили либо признаков трухлявости;
- кирпичную кладку нужно выполнять, соблюдая все зазоры, соответствующие технологии;
- фундамент для кирпича подойдет ленточный;
- чтобы объединить пристройку с основным строением, потребуются швеллеры П-образной формы.
Из пеноблоков
Пеноблок – это относительно недорогой стройматериал, обладающий высоким уровнем теплоизоляции, благодаря своей пенистой структуре. А большая величина блоков позволяет существенно сокращать сроки стройки.
Кроме того, пристройка получится намного легче, и потому не будет нуждаться в возведении укрепленного фундамента. Но это не означает, что его можно использовать вообще без фундамента.

Пристройка из пеноблоков к дому получит следующие плюсы:
- малая вероятность возгораний;
- низкая цена и простота использования;
- прочность и долговечность;
- усиленная тепло/звукоизоляция;
- экологически чистый материал.

К минусам пеноблоков относят:
- высокую способность данного материала впитывать водяные пары из воздуха;
- не очень красивый внешний вид.
Потому для многих вопрос о том, что использовать – каркас или пеноблоки – даже не стоит. Однако данные недостатки очень просто устраняются при помощи правильной гидроизоляции и облицовки внешней стороны элементами декоративного свойства.

Основной риск возведения подобной постройки связан с тем, что разнящиеся материалы неоднородно смещаются рядом друг с другом под влиянием негативного воздействия окружающей среды. Профессионалы не советуют прикреплять пристройку к стене дома, а лучше делать это близко к нему, утеплив стыки.
Строительство пристройки к деревянным домам из пеноблоков можно начинать, как только застынет фундамент. Он выстилается рубероидом, а также используется раствор цемента с песком для первичного ряда. Блоки начинают укладывать с угла. Все дальнейшие ряды скрепляются между собой посредством особого клеевого состава.

























































